Nybyggnation » Bungalow » Ciudad Quesada/Ro

Bungalow · Nybyggnation Ciudad Quesada/Rojales, Doña Pepa

Egenskaper

Bungalow · Nybyggnation Ciudad Quesada/Rojales, Doña Pepa

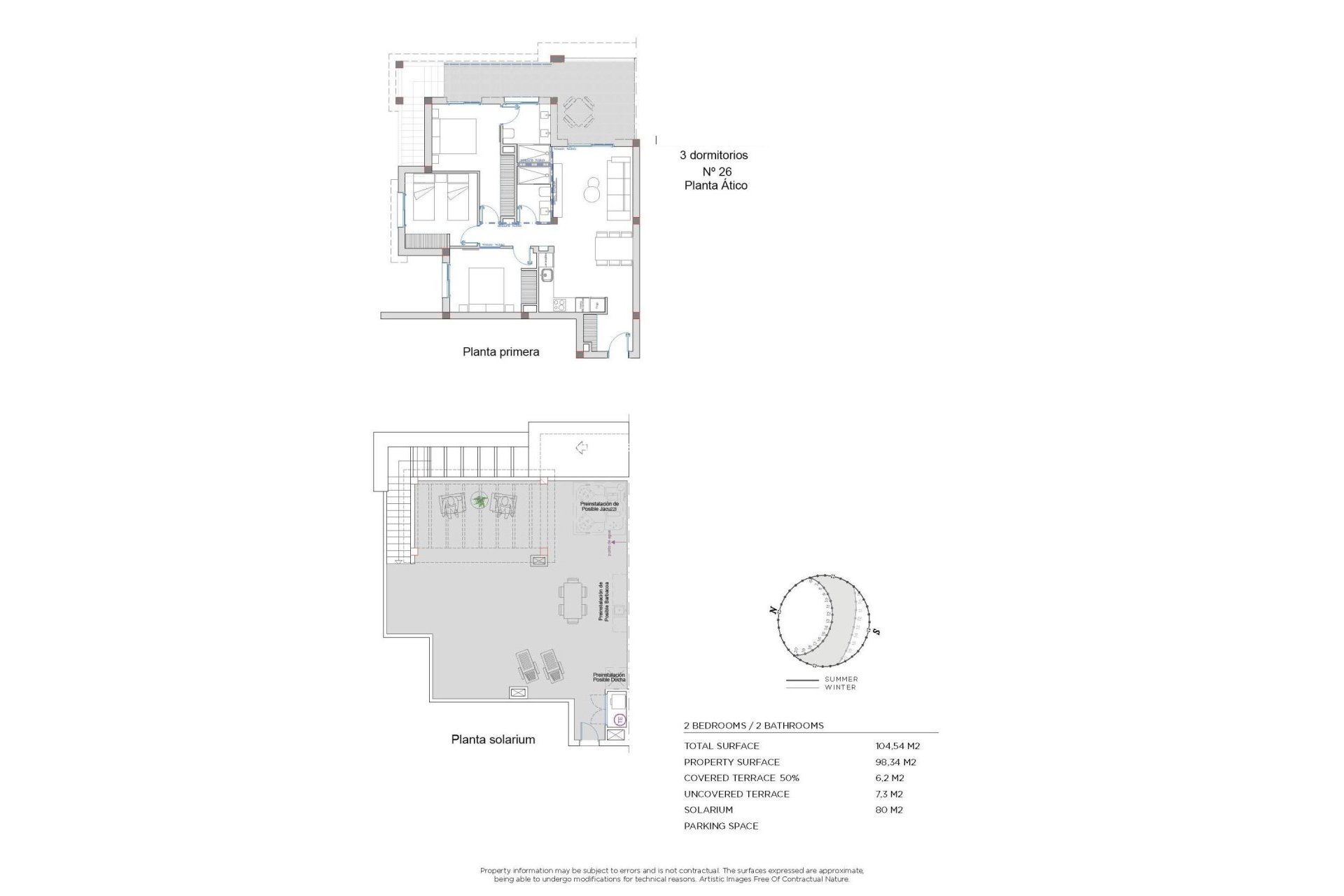
  • Meter 108m2
  • Sovrum 3
  • Badrum 2
  • Pool Ja
Sovrum:3
Badrum: 2
Byggd: 108m2
Användbar: 102m2
Pool: Ja
Avstånd till strand: 6000 Mts.
Energi~~POS=TRUNC: A
Solarium: Ja
Gemensam pool
Gated
Antal parkeringsplatser: 1
Nära skolor
Nära Commercial Center
Dubbelrum: 3
Luftkonditionering: Förinstallerad
Plats: Landsbygd, Urbanisering
Strand: 6000 meter
Användbart byggutrymme: 102 Msq.
Parkeringsplats
Terrass: 105 Msq.
Förvaring / Trastero

Beskrivning

Karta

Börja ett nytt liv

Responsable del tratamiento: Red Palm Estate SL, Finalidad del tratamiento: Gestión y control de los servicios ofrecidos a través de la página Web de Servicios inmobiliarios, Envío de información a traves de newsletter y otros, Legitimación: Por consentimiento, Destinatarios: No se cederan los datos, salvo para elaborar contabilidad, Derechos de las personas interesadas: Acceder, rectificar y suprimir los datos, solicitar la portabilidad de los mismos, oponerse altratamiento y solicitar la limitación de éste, Procedencia de los datos: El Propio interesado, Información Adicional: Puede consultarse la información adicional y detallada sobre protección de datos Aquí.
Red Palm Estate
WhatsApp