Nybygg » Bungalow » Ciudad Quesada/Rojales

Moderne middelhavsleiligheter i Ciudad Quesada, Costa Blanca Ciudad Quesada/Rojales, Doña Pepa

€390.000
Ref. TLRS-18618

Kjennetegn

Moderne middelhavsleiligheter i Ciudad Quesada, Costa Blanca Ciudad Quesada/Rojales, Doña Pepa

Moderne middelhavsleiligheter i Ciudad Quesada, Costa Blanca

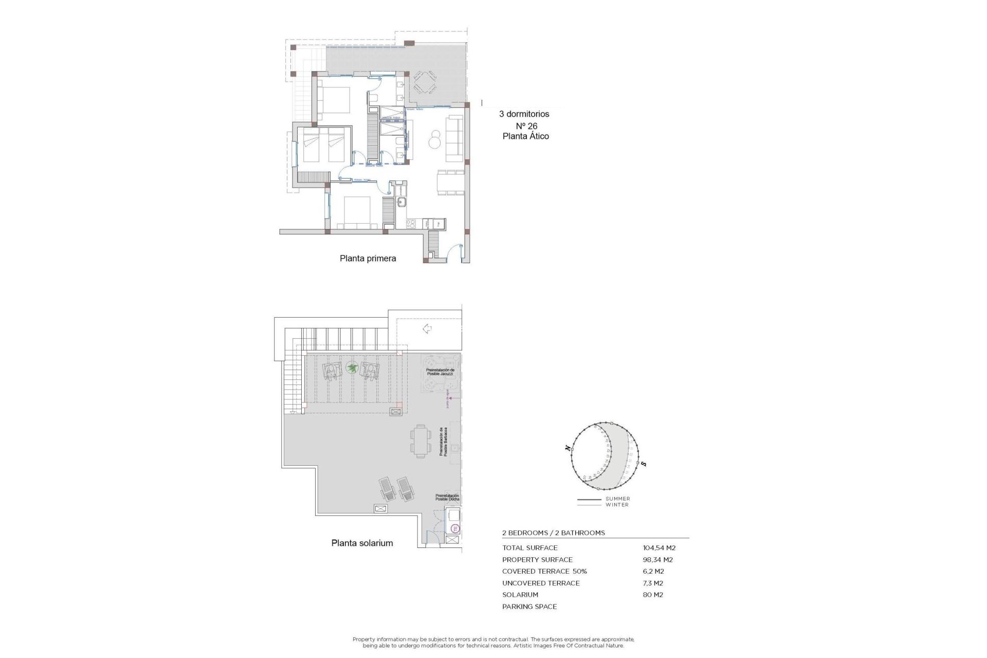
  • Meter 108m2
  • Soverom 3
  • Baderom 2
  • Basseng Ja
Soverom:3
Baderom: 2
Bygget: 108m2
Nyttig: 102m2
Basseng: Ja
Avstand til strand: 6000 Mts.
Energi~~POS=TRUNC: A
Solarium: Ja
Felles basseng
Gated
Antall parkeringsplasser: 1
Nær skoler
Nær kommersielle senter
Dobbeltrom: 3
Klimaanlegg: Forhåndsinstallert
Sted: Landlig, Urbanisering
Strand: 6000 meter
Brukbar byggeplass: 102 Msq.
Parkeringsplass
Terrasse: 105 Msq.
Oppbevaring / Trastero

Beskrivelse

Kart

Starte ett nytt liv

Foreta en forespørsel

Responsable del tratamiento: Red Palm Estate SL, Finalidad del tratamiento: Gestión y control de los servicios ofrecidos a través de la página Web de Servicios inmobiliarios, Envío de información a traves de newsletter y otros, Legitimación: Por consentimiento, Destinatarios: No se cederan los datos, salvo para elaborar contabilidad, Derechos de las personas interesadas: Acceder, rectificar y suprimir los datos, solicitar la portabilidad de los mismos, oponerse altratamiento y solicitar la limitación de éste, Procedencia de los datos: El Propio interesado, Información Adicional: Puede consultarse la información adicional y detallada sobre protección de datos Aquí.
Red Palm Estate
WhatsApp