Nybyggnation » Lägenhet » Estepona »

Lägenhet · Nybyggnation Estepona, Reinoso

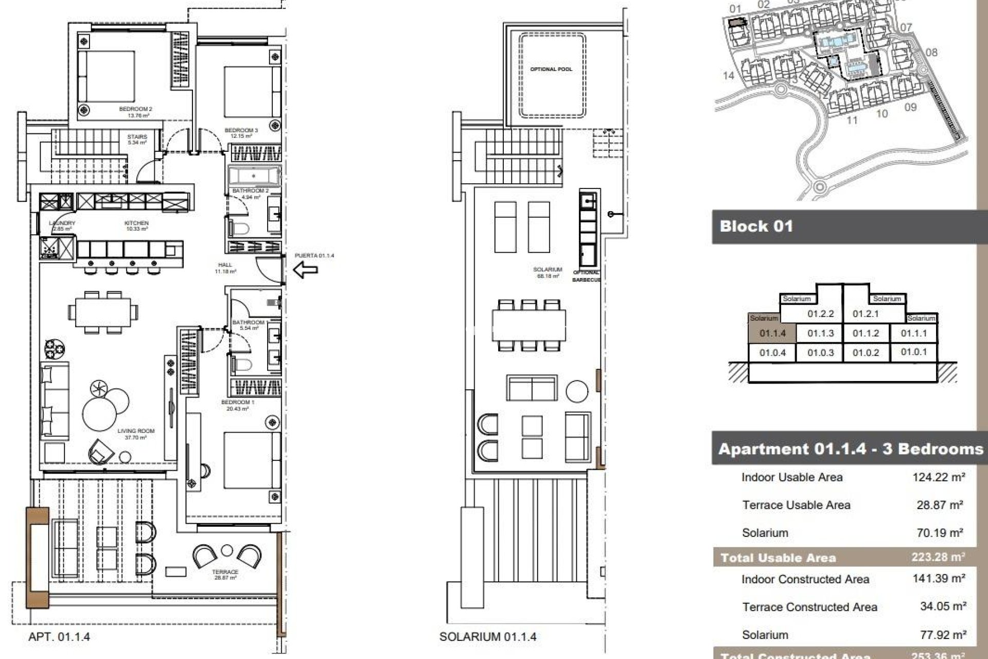
Egenskaper

Lägenhet · Nybyggnation Estepona, Reinoso

  • Meter 141m2
  • Sovrum 3
  • Badrum 2
  • Pool Ja
Sovrum:3
Badrum: 2
Byggd: 141m2
Användbar: 124m2
Pool: Ja
Avstånd till strand: 500 Mts.
Energi~~POS=TRUNC: B
Parkeringsplats
Uppvärmning: Ja, luftkonditionering: Ja, förinstallerad
Terrass: 76 Msq.
Förvaring / Trastero
Solarium: 68 Msq.
Nära busslinje
Gemensam pool
Jacuzzi
Gym
Gated
Antal parkeringsplatser: 1
Nära skolor
Nära Commercial Center
Dubbelrum: 3
Hiss/hiss
Plats: Urbanisering
Strand: 500 meter
Användbart byggutrymme: 124 Msq.

Beskrivning

Karta

Börja ett nytt liv

Responsable del tratamiento: Red Palm Estate SL, Finalidad del tratamiento: Gestión y control de los servicios ofrecidos a través de la página Web de Servicios inmobiliarios, Envío de información a traves de newsletter y otros, Legitimación: Por consentimiento, Destinatarios: No se cederan los datos, salvo para elaborar contabilidad, Derechos de las personas interesadas: Acceder, rectificar y suprimir los datos, solicitar la portabilidad de los mismos, oponerse altratamiento y solicitar la limitación de éste, Procedencia de los datos: El Propio interesado, Información Adicional: Puede consultarse la información adicional y detallada sobre protección de datos Aquí.
Red Palm Estate
WhatsApp