Nybygg » Leilighet » Estepona » Reino

NYBYGD BOLIGKOMPLEKS I ESTEPONA Estepona, Reinoso

€1.065.000
Ref. TLRS-56866

Kjennetegn

NYBYGD BOLIGKOMPLEKS I ESTEPONA Estepona, Reinoso

NYBYGD BOLIGKOMPLEKS I ESTEPONA

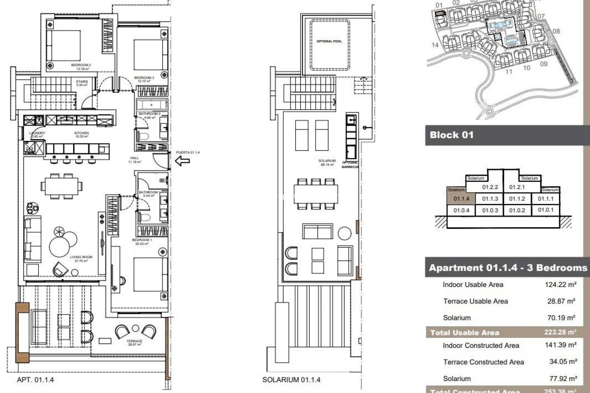
  • Meter 141m2
  • Soverom 3
  • Baderom 2
  • Basseng Ja
Soverom:3
Baderom: 2
Bygget: 141m2
Nyttig: 124m2
Basseng: Ja
Avstand til strand: 500 Mts.
Energi~~POS=TRUNC: B
Nær bussrute
Felles basseng
Jacuzzi
Gym
Gated
Antall parkeringsplasser: 1
Nær skoler
Nær kommersielle senter
Dobbeltrom: 3
Heis/heis
Sted: Urbanisering
Strand: 500 meter
Brukbar byggeplass: 124 Msq.
Parkeringsplass
Oppvarming: Ja, Aircondition: Ja, forhåndsinstallert
Terrasse: 76 Msq.
Oppbevaring / Trastero
Solarium: 68 Msq.

Beskrivelse

Kart

Starte ett nytt liv

Foreta en forespørsel

Responsable del tratamiento: Red Palm Estate SL, Finalidad del tratamiento: Gestión y control de los servicios ofrecidos a través de la página Web de Servicios inmobiliarios, Envío de información a traves de newsletter y otros, Legitimación: Por consentimiento, Destinatarios: No se cederan los datos, salvo para elaborar contabilidad, Derechos de las personas interesadas: Acceder, rectificar y suprimir los datos, solicitar la portabilidad de los mismos, oponerse altratamiento y solicitar la limitación de éste, Procedencia de los datos: El Propio interesado, Información Adicional: Puede consultarse la información adicional y detallada sobre protección de datos Aquí.
Red Palm Estate
WhatsApp