Lyxigt bostadsområde i Torremolinos: Ett mästerverk från Medelhavet
Oöverträffat läge i Torremolinos
Detta exceptionella bostadsområde ligger i ett av de mest eftertraktade områdena i Torremolinos och erbjuder en idealisk balans mellan lugn och bekvämlighet. Beläget bara några minuter från Medelhavskusten, har detta samhälle enkel tillgång till stora transportvägar och ligger inom en kort bilresa från de bästa bekvämligheterna. Sunny View School ligger tvärs över gatan, medan naturreservatet Pinar del Moro erbjuder en fridfull, grön miljö. Invånarna drar också nytta av närheten till offentliga skolor, stormarknader och idrottsanläggningar på Municipal Sports Center.
- Torremolinos strand: 5 minuter med bil
- Málagas flygplats: 10 minuter med bil
- Málagas stadskärna: 15 minuter med bil
- Tågstation: 15 minuters gångavstånd
Modern design med medelhavskänsla
Detta banbrytande bostadskomplex är utformat för att få ut det mesta av regionens avundsvärda klimat och naturliga omgivningar. Stora fönster i alla bostäder bjuder in rikligt med solljus och friska medelhavsbrisar, medan expansiva terrasser erbjuder hisnande panoramautsikt över Costa del Sol. Varje element i designen fokuserar på att maximera komfort och livsstil och blandar moderna arkitektoniska linjer med Medelhavets naturliga skönhet.
Premiumfaciliteter för komfort och avkoppling
Bostadskomplexet erbjuder en rad förstklassiga bekvämligheter för att förbättra livsstilen för sina invånare. Omsorgsfullt anlagda trädgårdar omger fastigheten och erbjuder två stora utomhuspooler, idealiska för avkoppling eller underhållning av gäster. Det fullt utrustade gymmet ser till att fitness förblir en del av din dagliga rutin, medan den strategiskt utformade layouten av komplexet garanterar både integritet och enkel åtkomst till alla gemensamma utrymmen.
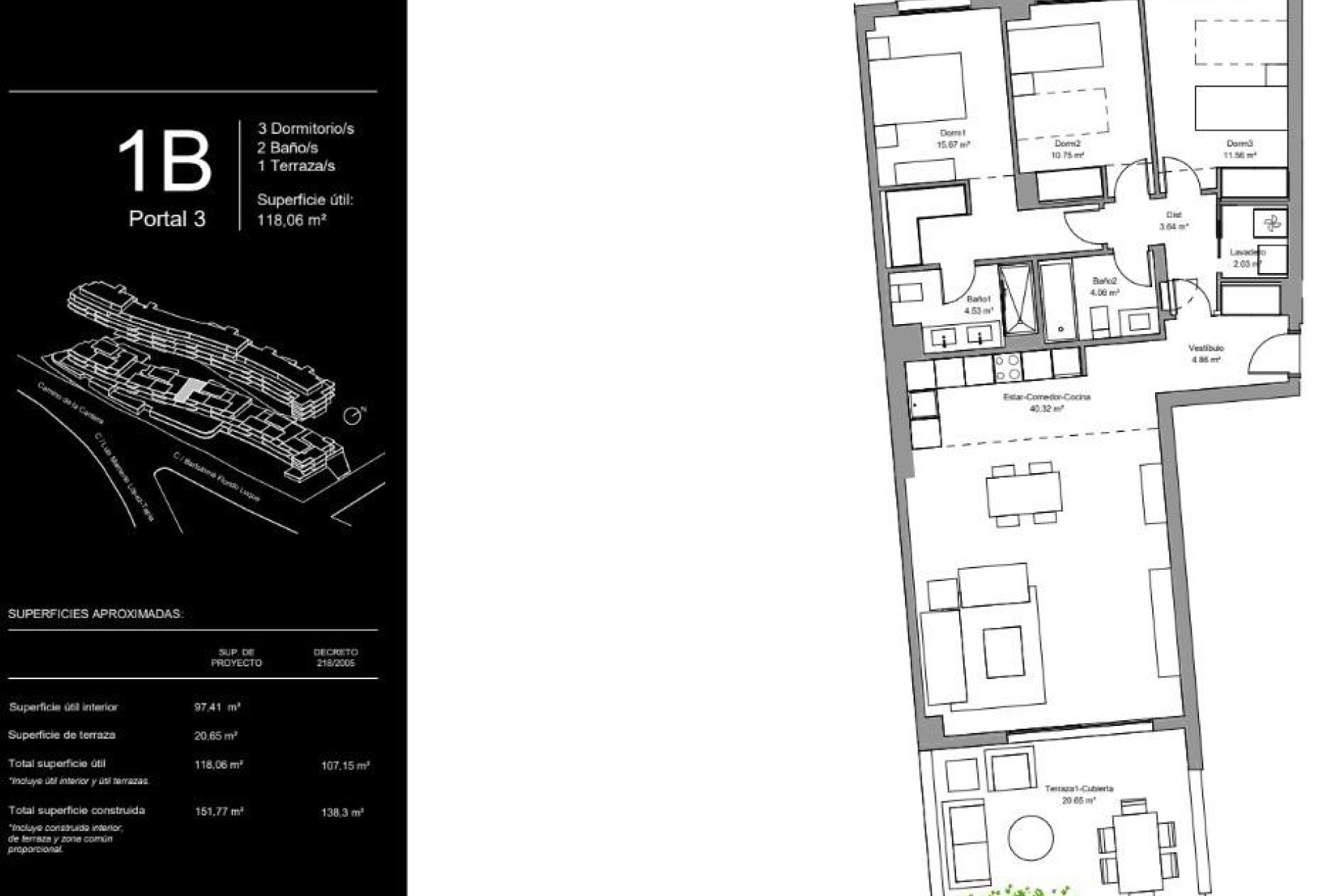
Rymliga och mångsidiga bostäder
Bostäderna i det här exklusiva området har 1, 2, 3 eller 4 sovrum och alla är utformade med fokus på funktionalitet, integritet och stil. De öppna planlösningarna integrerar kök och vardagsrum, medan de stora terrasserna sömlöst förbinder inomhus- och utomhusutrymmena. Oavsett om du väljer en takvåning med en privat terrass eller ett hem på bottenvåningen med tillgång till trädgården, har varje bostad högkvalitativa ytbehandlingar som gör varje stund hemma speciell.
Hållbar livsstil och energieffektivitet
Hållbarhet är kärnan i denna utveckling. Varje bostad är utformad med energieffektivitet i åtanke och utnyttjar naturligt ljus för att minimera behovet av artificiell belysning och förbättra den totala komforten. Användningen av ett aerotermiskt system säkerställer att både varmvatten och luftkonditionering tillhandahålls på ett miljövänligt sätt, vilket bidrar till att minska energiförbrukningen och främja en grönare livsstil.
Oslagbar utsikt och utomhusliv
För den som vill uppleva Medelhavshimlens skönhet är takvåningarna en absolut höjdpunkt. Med panoramaterrasser som erbjuder fantastisk utsikt över Torremolinos kustlinje kan du njuta av solen från gryning till skymning. Oavsett om det är att se soluppgången över horisonten eller att titta på månens reflektion på havet, erbjuder dessa hem en sällsynt och oförglömlig levnadsupplevelse.
Detta bostadskomplex i Torremolinos representerar höjdpunkten av modern design och kombinerar estetik, funktionalitet, hållbarhet och lyx. Varje hem är noggrant utformat för att uppfylla de högsta standarderna för komfort och stil, vilket säkerställer att det inte bara är en plats att bo, utan ett utrymme att trivas.
Med sitt perfekta läge, sin exceptionella design och sitt engagemang för hållbarhet är det här den perfekta platsen för dem som söker en lyxig livsstil på den vackra Costa del Sol.
410