Luksusboligkompleks i Torremolinos: Et mesterverk fra Middelhavet
Uovertruffen beliggenhet i Torremolinos
Dette eksepsjonelle boligkomplekset ligger i et av de mest ettertraktede områdene i Torremolinos, og tilbyr en ideell balanse mellom ro og bekvemmelighet. Dette området ligger bare noen minutter fra Middelhavskysten, og har enkel tilgang til viktige transportruter og en kort kjøretur fra de beste fasilitetene. Sunny View School ligger rett over gaten, mens naturreservatet Pinar del Moro tilbyr et fredelig, grønt miljø. Beboerne drar også nytte av nærheten til offentlige skoler, supermarkeder og idrettsanlegg på det kommunale sportssenteret.
- Torremolinos-stranden: 5 minutter med bil
- Málaga lufthavn: 10 minutter med bil
- Málaga sentrum: 15 minutter med bil
- Togstasjon: 15 minutters gangavstand
Moderne design med middelhavspreg
Dette banebrytende boligkomplekset er designet for å få mest mulig ut av regionens misunnelsesverdige klima og naturomgivelser. Store vinduer i alle boligene inviterer inn rikelig med sollys og frisk middelhavsbris, mens store terrasser byr på fantastisk panoramautsikt over Costa del Sol. Hvert eneste element i designet fokuserer på å maksimere komfort og livsstil, og blander moderne arkitektoniske linjer med Middelhavets naturlige skjønnhet.
Førsteklasses fasiliteter for komfort og avslapning
Boligkomplekset tilbyr en rekke førsteklasses fasiliteter for å forbedre livsstilen til beboerne. Eiendommen er omkranset av en omsorgsfullt anlagt hage med to store utendørsbassenger, som er ideelle for avslapping og underholdning for gjester. Det fullt utstyrte treningsstudioet sørger for at treningen forblir en del av den daglige rutinen, mens den strategisk utformede utformingen av komplekset sikrer både privatliv og enkel tilgang til alle fellesområder.
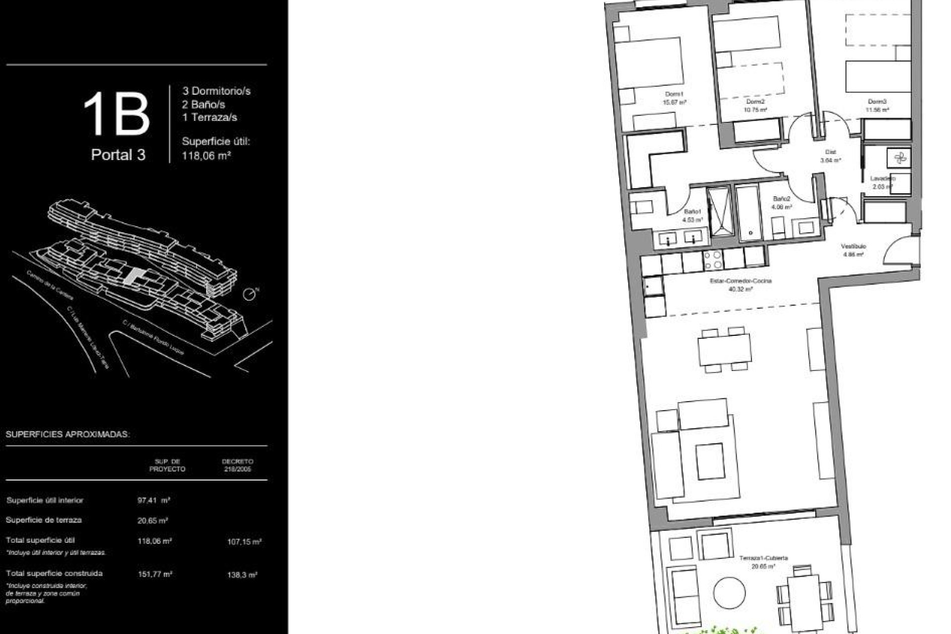
Romslige og allsidige boliger
Boligene i dette eksklusive prosjektet har 1, 2, 3 eller 4 soverom, og alle er utformet med fokus på funksjonalitet, privatliv og stil. De åpne oppholdsrommene integrerer kjøkken og stue, mens de store terrassene skaper en sømløs forbindelse mellom innendørs og utendørs oppholdsrom. Enten du velger en toppleilighet med egen terrasse eller en bolig i første etasje med utgang til hagen, er alle boligene av høy kvalitet, noe som gjør hvert øyeblikk hjemme til noe helt spesielt.
Bærekraftig livsstil og energieffektivitet
Bærekraft er kjernen i dette prosjektet. Alle boligene er utformet med tanke på energieffektivitet, og det naturlige lyset utnyttes for å minimere behovet for kunstig belysning og øke den generelle komforten. Bruken av et aerotermisk system sørger for at både varmtvann og klimaanlegg leveres på en miljøvennlig måte, noe som bidrar til å redusere energiforbruket og fremme en grønnere livsstil.
Uovertruffen utsikt og utendørsliv
For de som ønsker å oppleve Middelhavets skjønnhet, er toppleilighetene et absolutt høydepunkt. Med panoramaterrasser med fantastisk utsikt over Torremolinos' kystlinje kan du nyte solen fra morgen til kveld. Enten det er å se soloppgangen over horisonten eller å betrakte månens refleksjon i havet, tilbyr disse boligene en sjelden og uforglemmelig boopplevelse.
Dette boligkomplekset i Torremolinos representerer det ypperste innen moderne design, og kombinerer estetikk, funksjonalitet, bærekraft og luksus. Hvert eneste hjem er omhyggelig utformet for å oppfylle de høyeste standarder for komfort og stil, slik at det ikke bare er et sted å bo, men et sted å trives.
Med sin perfekte beliggenhet, eksepsjonelle design og forpliktelse til bærekraft er dette det ideelle stedet for deg som ønsker en luksuriøs livsstil på den vakre Costa del Sol.
410