NYBYGGT BOSTADSOMRÅDE I ESTEPONA
Ett projekt med utsikt över havet och bergen och vars arkitektur smälter in i omgivningen för att skapa en egen livsmiljö, där solen och Medelhavet markerar tidens gång
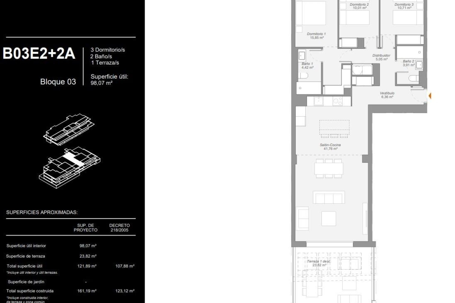
Komplexet består av lägenheter med 2 och 3 sovrum med stora terrasser, takvåningar och lägenheter på bottenvåningen med trädgård.
Bland de mycket kompletta gemensamma faciliteterna bör man särskilt nämna de två utomhuspoolerna, samarbetsutrymmet, det fullt utrustade gymmet och bastun med duschutrymme.
Bostad beläget i Estepona, ett av de mest attraktiva hörnen av Costa del Sol. Staden har blivit en av de mest eftertraktade platserna på Costa del Sol, tack vare sin livskvalitet och sitt breda utbud av fritids- och livsstilsaktiviteter. Men staden är fortfarande trogen sina rötter och är full av andalusisk charm. Ett överflöd av högkvalitativa golfklubbar i området, motiverar varför detta är känt som "Costa del Golf". Det spektakulära
naturliga landskapet är den perfekta miljön för en mängd olika utomhussporter på både land och hav. Dessutom gör det oslagbara klimatet, med 325 soldagar i genomsnitt per år, tillsammans med det skyddade läget, denna stad till en förebild för livskvalitet i Spanien och Europa.
Residential har utmärkt tillgänglighet till de viktigaste vägarna i provinsen, vilket gör det bara 10 minuter från Puerto Banus och mindre än 45 minuter från Malaga flygplats.
Kvaliteten på stränderna, deras tjänster och fantastiska tillgänglighet har erkänts med ett rekordantal blå flaggor.
410