Nouvelle construction » Appartements » Este

NOUVEAU COMPLEXE RÉSIDENTIEL À ESTEPONA Estepona, La Resina Golf

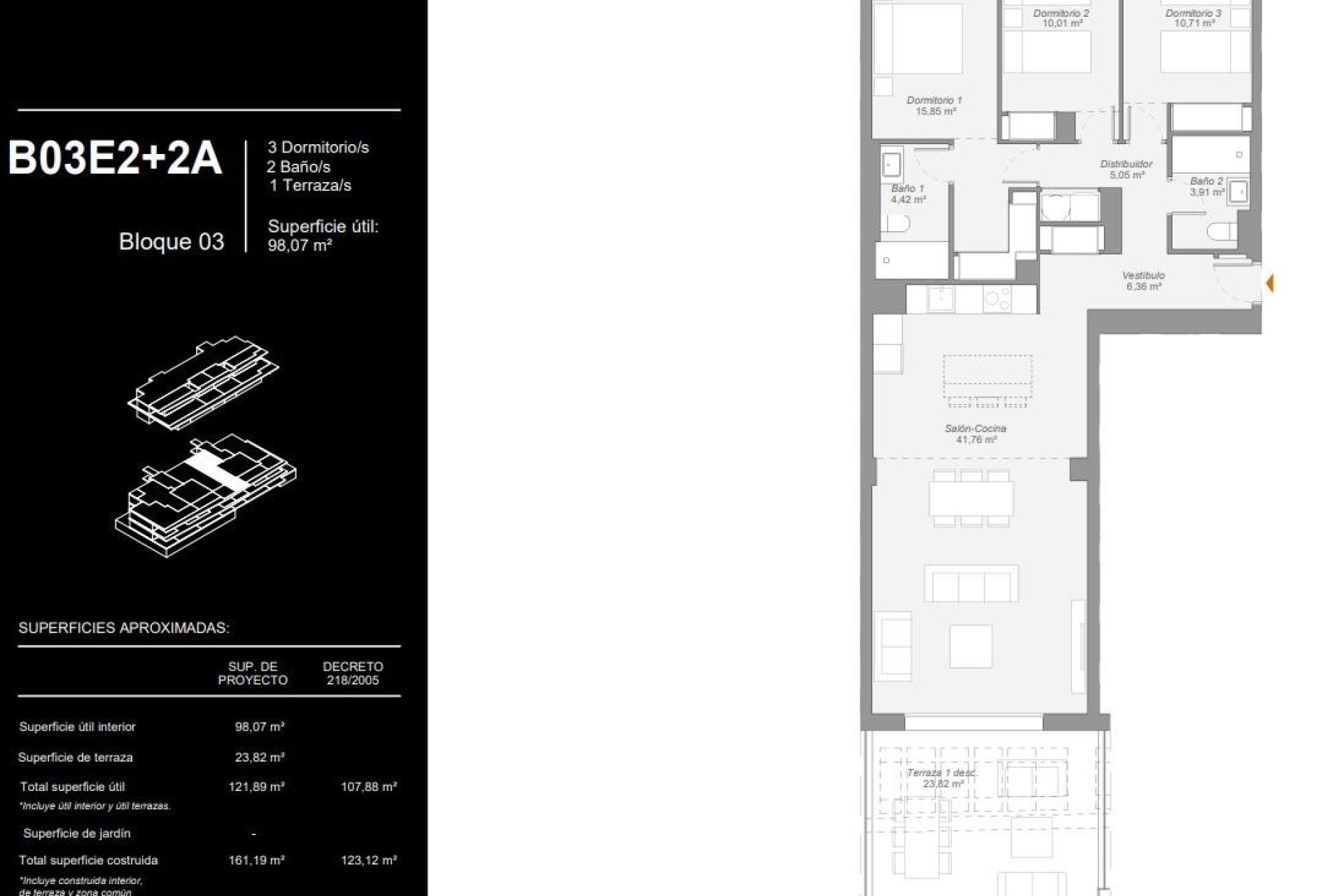
Les caractéristiques

NOUVEAU COMPLEXE RÉSIDENTIEL À ESTEPONA Estepona, La Resina Golf

NOUVEAU COMPLEXE RÉSIDENTIEL À ESTEPONA

  • Mètres 123m2
  • Chambres 3
  • Salles de bain 2
  • Piscine Oui
Chambres:3
Salles de bain: 2
Construit: 123m2
Utile: 103m2
Piscine: Oui
Distance à la plage: 2000 Mts.
Énergie: A
Climatisation : Oui
Plage : 2000 mètres
Terrasse : 25 m².
Place de parking
Espace de construction utilisable : 103 m².
Piscine commune
Salle de sport
Fermé
Nombre de places de stationnement : 1
Près du Golf / Propriété du Golf Resort
Vues : Mer
Près des écoles
Près du centre commercial
Chambres doubles : 3
Ascenseur/Ascenseur
Emplacement : Côtier, Urbanisation

La description

Carte

Commencez une nouvelle vie

Faire une enquête

Responsable del tratamiento: Red Palm Estate SL, Finalidad del tratamiento: Gestión y control de los servicios ofrecidos a través de la página Web de Servicios inmobiliarios, Envío de información a traves de newsletter y otros, Legitimación: Por consentimiento, Destinatarios: No se cederan los datos, salvo para elaborar contabilidad, Derechos de las personas interesadas: Acceder, rectificar y suprimir los datos, solicitar la portabilidad de los mismos, oponerse altratamiento y solicitar la limitación de éste, Procedencia de los datos: El Propio interesado, Información Adicional: Puede consultarse la información adicional y detallada sobre protección de datos Aquí.
Red Palm Estate
WhatsApp