NYBYGGT BOSTADSOMRÅDE NÄRA ESTEPONA
Nybyggnation av ett exklusivt bostadsområde beläget i Cancelada, ett av de bästa områdena i Esteponas nya Golden Mile.
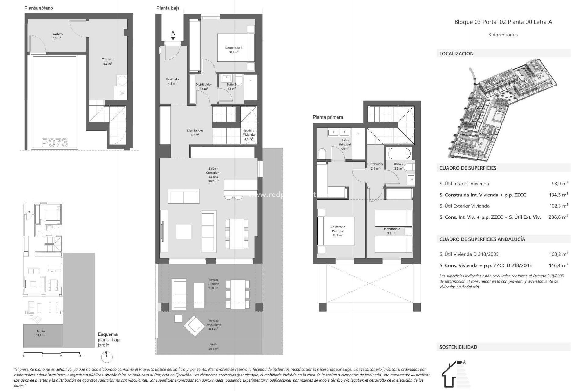
Bostadskomplexet har 82 fastigheter fördelade på 4 våningar, mestadels duplex, med 2 och 3 sovrum med terrasser och / eller trädgårdar, samt takvåningar med solarium.
Alla fastigheter kommer att ha förråd och garage, och i de flesta av dem kan du njuta av fantastisk utsikt över Medelhavet.
Anläggningen har en pool, perfekt för att njuta av de mer än 320 soldagar och bra väder som Costa del Sol har att erbjuda, både ensam och med familjen. Du kommer också att ha tillgång till ett utrustat inomhusgym, utomhussportområde, 2 petanquebanor och det exklusiva klubbhuset i Cancelada.
Beläget i ett privilegierat läge, bredvid Estepona, bara några minuter från stranden och nära golfbanor. Bara 10 minuter från Marbella och 45 minuter från Malagas internationella flygplats.
Du kan njuta av en verklig livskvalitet, med en genomsnittlig årstemperatur på 20º och mer än 320 soldagar per år. Du kommer att njuta av ett brett utbud av golfbanor, kilometervis av lugn kustlinje, sol, natur och gastronomin i området, från dess internationella restauranger till dess välkomnande lokala kök.
Här kombineras traditionen med kullerstensgator, vitkalkade hus och uteplatser med färgglada blommor med modernitet och de bästa fritidsanläggningarna på Costa del Sol. Staden har ett privilegierat läge mellan havet och bergen, vilket gör den till ett av de mest attraktiva turistmålen i provinsen.
410