NYBYGD BOLIGKOMPLEKS I NÆRHETEN AV ESTEPONA
Nybygget er et eksklusivt boligkompleks som ligger i Cancelada, et av de beste områdene på Esteponas nye Golden Mile.
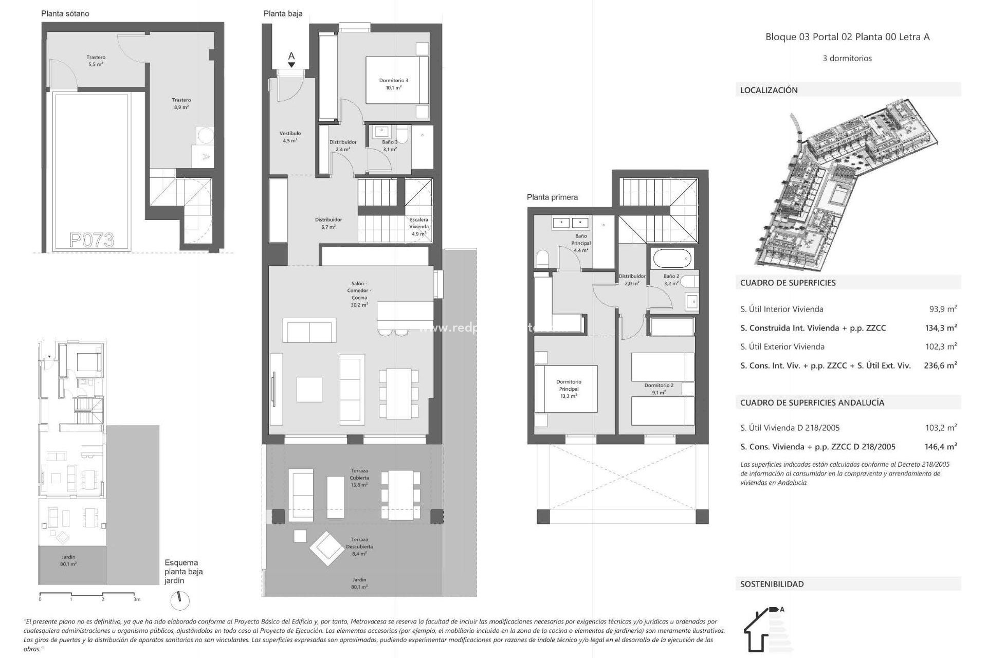
Boligkomplekset har 82 boliger fordelt på 4 etasjer, for det meste tosidig, med 2 og 3 soverom med terrasser og / eller hager, samt toppleiligheter med solarium.
Alle leilighetene har bod og garasje, og de fleste har fantastisk utsikt over Middelhavet.
Anlegget har et svømmebasseng, ideelt for å nyte de mer enn 320 soldagene og det gode været som Costa del Sol har å by på, både alene og sammen med familien. Du har også tilgang til et utstyrt innendørs treningsstudio, et utendørs idrettsområde, 2 petanquebaner og det eksklusive klubbhuset i Cancelada.
Leiligheten har en privilegert beliggenhet ved siden av Estepona, bare noen få minutter fra stranden og i nærheten av golfbaner. Bare 10 minutter fra Marbella og 45 minutter fra Malaga internasjonale lufthavn.
Her kan du nyte en ekte livskvalitet, med en gjennomsnittlig årstemperatur på 20º og mer enn 320 soldager i året. Her kan du nyte et bredt utvalg av golfbaner, kilometervis med rolig kystlinje, sol, natur og områdets gastronomi, fra internasjonale restauranter til innbydende lokale retter.
Her kombineres tradisjonen fra de brosteinsbelagte gatene med hvitkalkede hus og uteplasser med fargerike blomsterpotter med modernitet og de beste fritidsfasilitetene på Costa del Sol. Den privilegerte beliggenheten mellom havet og fjellene gjør byen til et av de mest attraktive turistmålene i provinsen.
410