LYXIG NYBYGGD VILLA MED HAVSUTSIKT I EL PARAISO GOLF, NÄRA ESTEPONA
Byggt med material av högsta kvalitet, tar vi hand om varje detalj i projektet från början av dess utförande tills vi levererar det till kunden. De inre utrymmena har en unik och exklusiv design för varje hem och kombinerar modern och samtida stil med högsta prestanda.
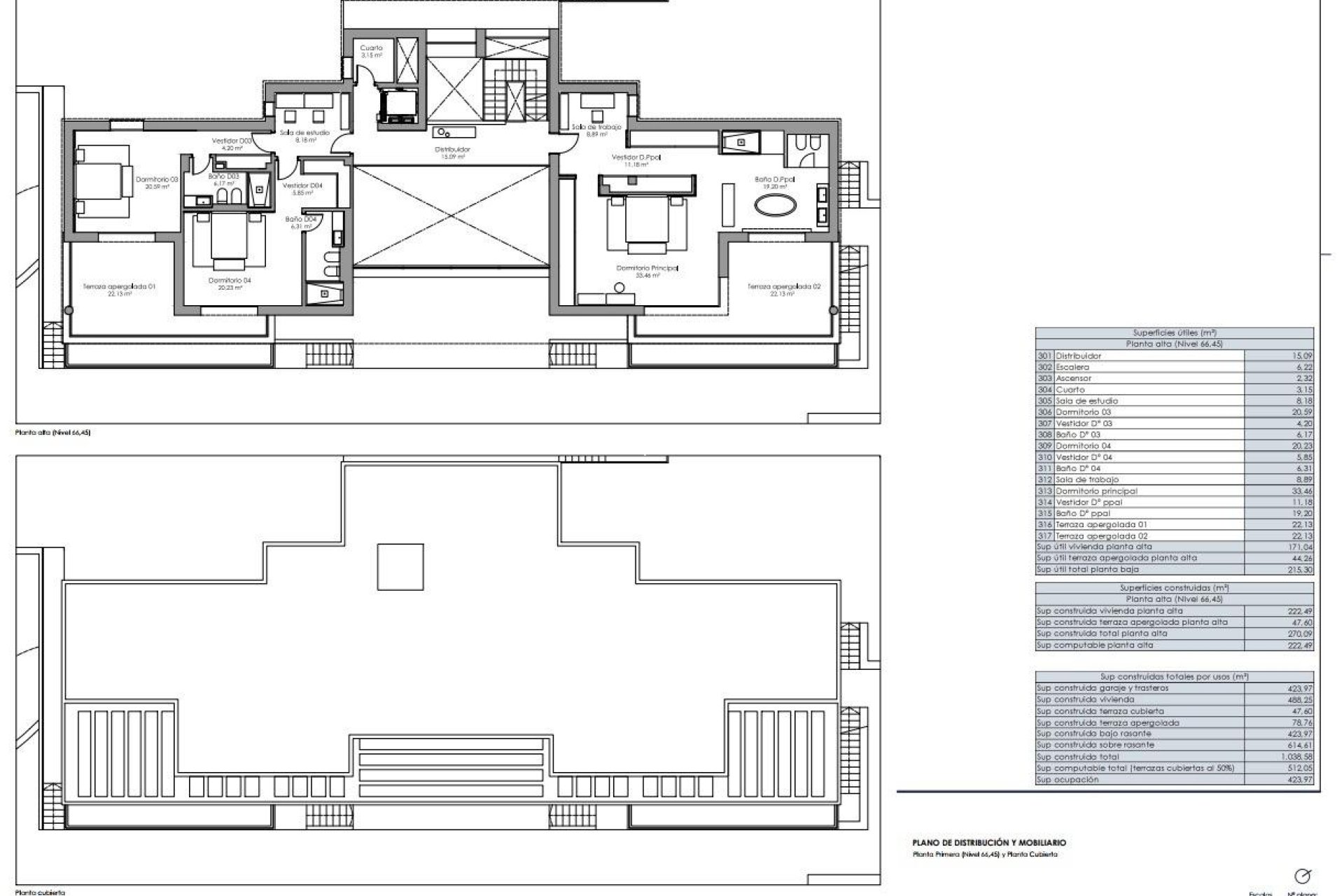
6 sovrum
7 badrum
Byggd storlek 1038 m2
Tomtstorlek 1915 m2
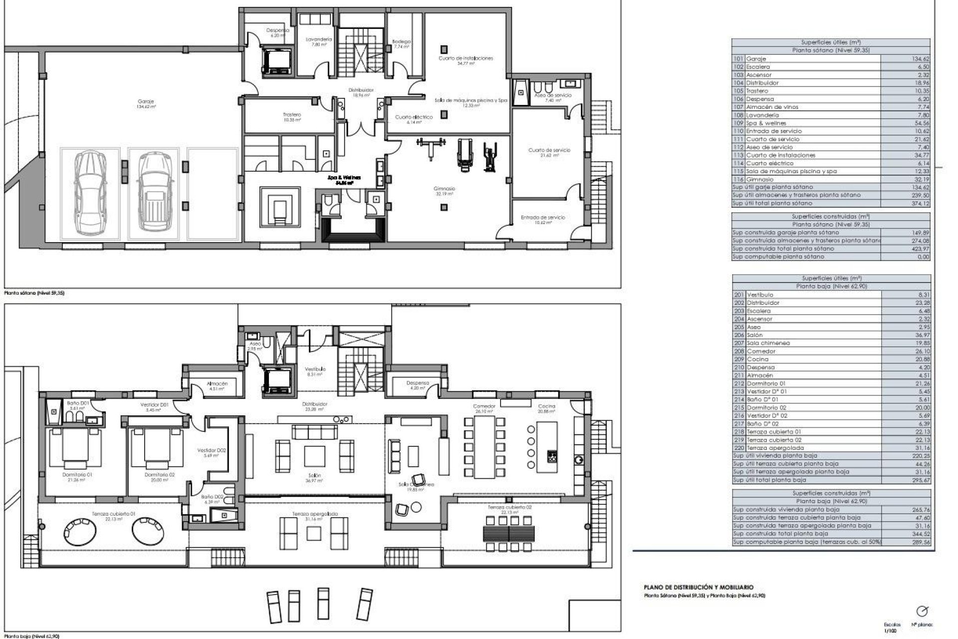
När du tar dig ner till nedre våningen väntar en värld av fritid och avkoppling. Här finns en vinkällare, ett fullt utrustat gym och ett avkopplande spa med bastu. Hissen gör att du enkelt kan förflytta dig mellan de olika våningarna. Gästrummet, tvättstugan, skafferiet och omklädningsrummet har utformats för att tillgodose alla dina behov.
Det privata garaget har kapacitet för 3 fordon, vilket garanterar säkerhet och en enkel och bekväm åtkomst.
Lyxiga kvaliteter:
ECO-konstruktion med mycket låg energiförbrukning.
Modern och tidsenlig design, rymlig, ljus och öppen.
Toppkvalitet PORCELAIN STONEWARE golv, mått 120x120cm, imitation marmor. Sovrum, huvudbadrum och övre distributörer kommer att vara av första kvalitet LAMINERAT TRÄ, vit ekfärg.
Glas med inre luftkammare för bättre termisk och akustisk isolering.
Kök av högsta kvalitet, enligt projektdesign. Med CENTRAL ISLAND, SILESTONE bänkskiva, apparater av högsta märke.
Golvvärme i hela huset. Gemensam aerotermisk utrustning med varmvattensystemet. Värmepumpssystem av märket DAIKIN eller liknande, som möjliggör uppvärmning, kylning och varmvatten. Utomhusenhet placerad på taket eller i icke-synliga utomhusområden.
Bred privat parkering på första våningen för 3 fordon.
Stort förråd och förråd i källaren.
Elektrisk grind vid ingången till fastigheten med fjärröppning för fordonsåtkomst. Privat anlagd trädgård med privat pool.
Automatiskt bevattningssystem.
Hemautomationssystem: förinstallation för CONTROL 4-system och 10 ″ inbyggd display.
410