NYBYGGET LUKSUSVILLA MED HAVUTSIKT I EL PARAISO GOLF, NÆR ESTEPONA
Vi bygger med materialer av høyeste kvalitet, og vi tar vare på alle detaljer i prosjektet fra begynnelsen av utførelsen til vi leverer det til kunden. Interiøret har en unik og eksklusiv design for hvert hjem, og kombinerer moderne og tidsriktig stil med den høyeste ytelsen.
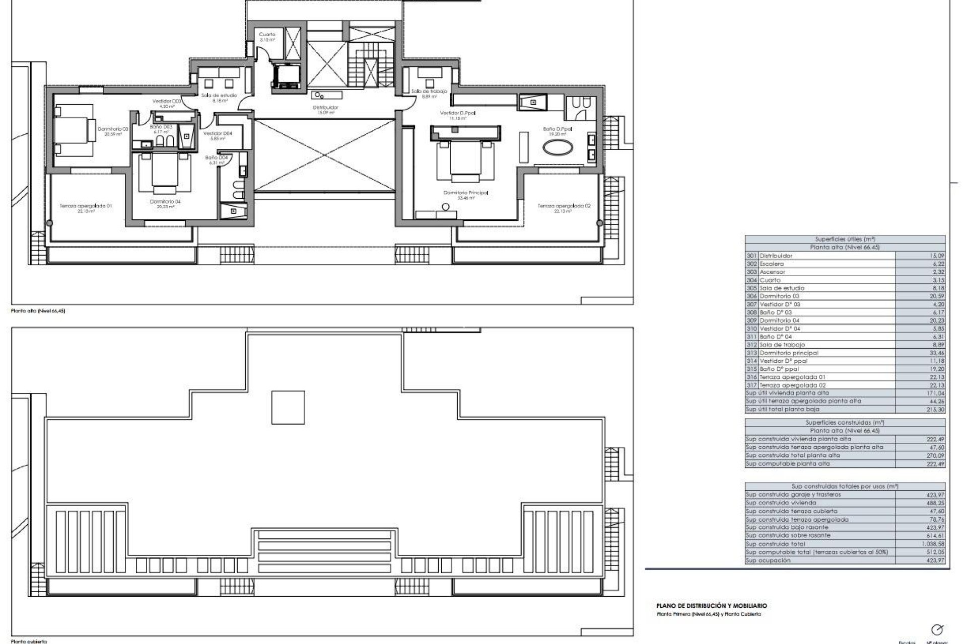
6 soverom
7 bad
Bygget størrelse 1038 m2
Tomtstørrelse 1915 m2
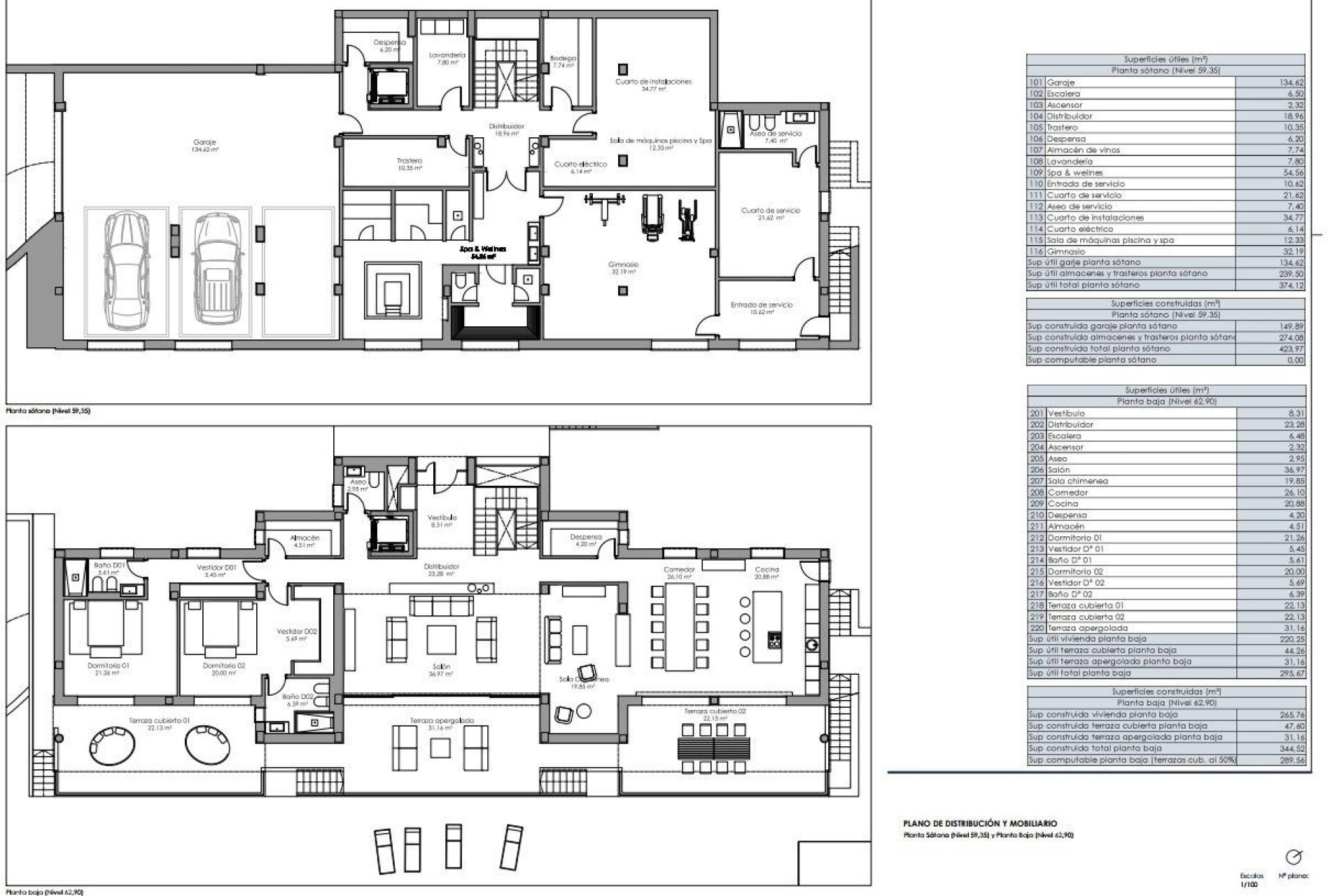
I underetasjen venter en verden av fritid og avslapning. Her finner du en vinkjeller, et fullt utstyrt treningsstudio og et avslappende spa med badstue. Heisen gjør det enkelt å bevege seg mellom de ulike nivåene. Gjesterom, vaskerom, spiskammer og omkledningsrom er designet for å møte alle dine behov.
Den private garasjen har plass til tre biler, noe som garanterer sikkerhet og enkel og komfortabel adkomst.
Luksus kvaliteter:
ECO-konstruksjon med svært lavt energiforbruk.
Moderne og moderne design, romslig, lys og åpen.
Topp kvalitet PORCELAIN STONEWARE gulv, dimensjoner 120x120cm, imitert marmor. Soverom, hovedbad og øvre distributører vil være av første kvalitet LAMINERT TRE, hvit eikfarge.
Glass med innvendig luftkammer for bedre termisk og akustisk isolasjon.
Kjøkken av topp kvalitet, i henhold til prosjektdesign. Med CENTRAL ISLAND, SILESTONE benkeplate, topp merkevare apparater.
Gulvvarme i hele huset. Felles aerotermisk utstyr med varmtvannssystemet. Varmepumpesystem av merket DAIKIN eller lignende, som tillater oppvarming, kjøling og varmt vann til husholdningen. Utendørsenhet plassert på taket eller i ikke-synlige uteområder.
Bred privat parkering i første etasje for 3 biler.
Stor bod og bod i kjelleren.
Elektrisk port ved inngangen til eiendommen med fjernåpning for tilgang til kjøretøy. Privat anlagt hage med privat svømmebasseng.
Automatisk vanningssystem.
Hjemmeautomatiseringssystem: forhåndsinstallasjon for CONTROL 4-system og 10 ″ innebygd skjerm.
410