Lyxigt boende i Cascada de Camoján, Marbella: En oas av avskildhet och elegans.
Exklusivt läge på Marbellas Golden Mile.
Cascada de Camoján ligger inbäddat i den berömda Golden Mile i Marbella och är en elitbostadsenklav som firas för sin lyxiga atmosfär, frodiga naturlandskap och känsla av lugn. Cascada de Camoján är känt för sina hisnande bergs- och havsutsikter och erbjuder invånarna en privat och lugn livsstil bort från stadens livliga energi samtidigt som det är nära till viktiga bekvämligheter. Detta exklusiva område kombinerar naturlig skönhet med sofistikerat boende, vilket gör det till ett av de mest prestigefyllda områdena i Marbella.
Närhet till Marbellas viktigaste attraktioner.
Denna herrgård i Cascada de Camoján är bekvämt beläget bara 5 km från Marbellas charmiga centrum, där exklusiva butiker, fina restauranger och ett pulserande nattliv väntar. De orörda stränderna i Marbella ligger inom 4 km, vilket ger snabb tillgång till soldränkta stränder och aktiviteter vid havet. Området ligger också nära flera världsberömda golfbanor, inklusive Marbella Golf Country Club, cirka 10 km bort, vilket gör det till ett paradis för golfentusiaster. För resenärer ligger Málagas internationella flygplats bara 55 km från residenset, vilket gör det enkelt för internationella besökare att ta sig hit.
Ett arkitektoniskt underverk som blandar lyx med natur.
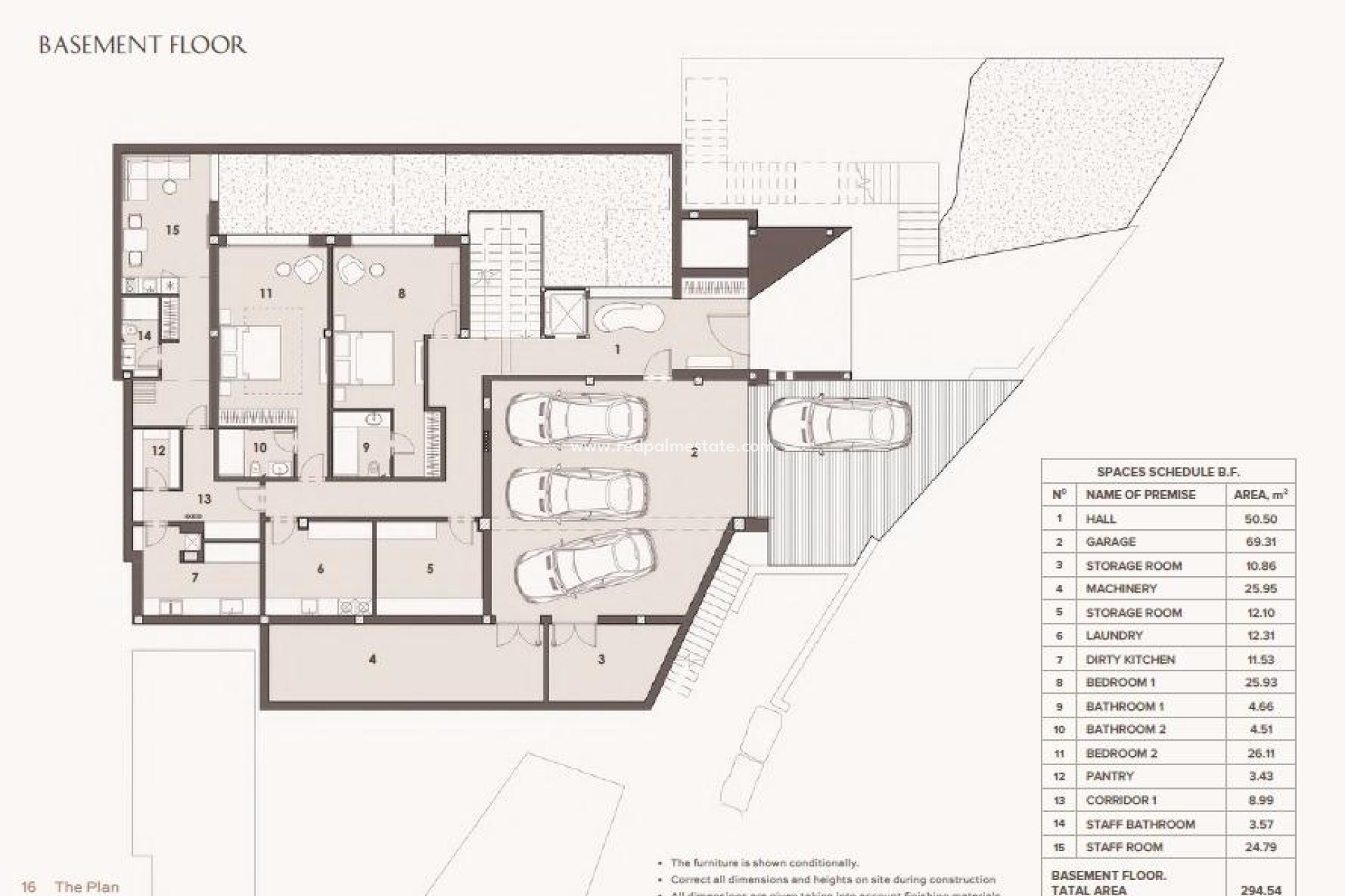
Denna fantastiska herrgård är ett arkitektoniskt mästerverk, utformat för att integreras sömlöst med sin naturliga omgivning. Med sex sovrum och sju badrum har fastigheten gott om utrymme för både intima sammankomster och större underhållning. Villan har expansiva inomhus- och utomhusområden, från täckta terrasser till ett inbjudande solarium och en stor poolterrass perfekt för solbad. Det stora sovrummet har direkt tillgång till en privat terrass med vidsträckt utsikt över Medelhavet.
Perfekt för underhållning och avkoppling.
Denna bostad är utformad för lyxig komfort, med unika designelement, avancerade material och en rymlig layout som är perfekt för familjesammankomster och underhållning. En välutrustad grillplats möjliggör uteservering, medan det stora solariumet och terrassen vid poolen erbjuder utrymmen för att varva ner och njuta av Marbellas solsken. Cascada de Camoján erbjuder en oöverträffad boendeupplevelse som kombinerar elegans, avskildhet och tillgång till Marbellas finaste bekvämligheter.
410