Vie luxueuse à Cascada de Camoján, Marbella : Un havre d'intimité et d'élégance.
Situation exclusive sur le Golden Mile de Marbella.
Nichée dans le célèbre Golden Mile de Marbella, Cascada de Camoján est une enclave résidentielle d'élite célébrée pour son ambiance luxueuse, ses paysages naturels luxuriants et son sentiment de sérénité. Connue pour ses vues époustouflantes sur la montagne et la mer, Cascada de Camoján offre à ses résidents un mode de vie privé et tranquille, loin de l'énergie trépidante de la ville, tout en restant proche des principales commodités. Ce quartier exclusif allie beauté naturelle et vie sophistiquée, ce qui en fait l'un des quartiers les plus prestigieux de Marbella.
Proximité des principales attractions de Marbella.
Cette maison de maître à Cascada de Camoján est idéalement située à seulement 5 km du charmant centre-ville de Marbella, où se trouvent des boutiques haut de gamme, des restaurants raffinés et une vie nocturne animée. Les plages immaculées de Marbella se trouvent à moins de 4 km, ce qui permet un accès rapide aux rivages baignés de soleil et aux activités de bord de mer. La région est également proche de plusieurs terrains de golf de renommée mondiale, dont le Marbella Golf Country Club, à environ 10 km, ce qui en fait un paradis pour les amateurs de golf. Pour les voyageurs, l'aéroport international de Malaga n'est qu'à 55 km de la résidence, ce qui facilite l'accès aux visiteurs internationaux.
Une merveille architecturale mêlant luxe et nature.
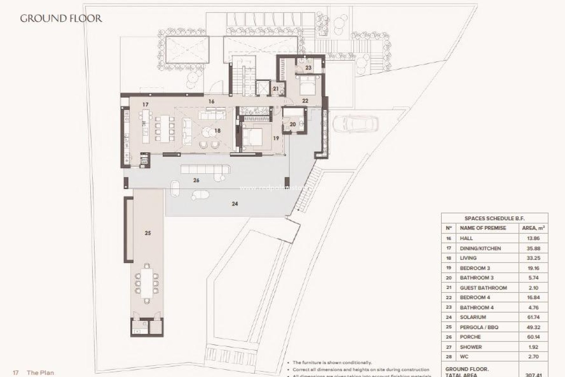
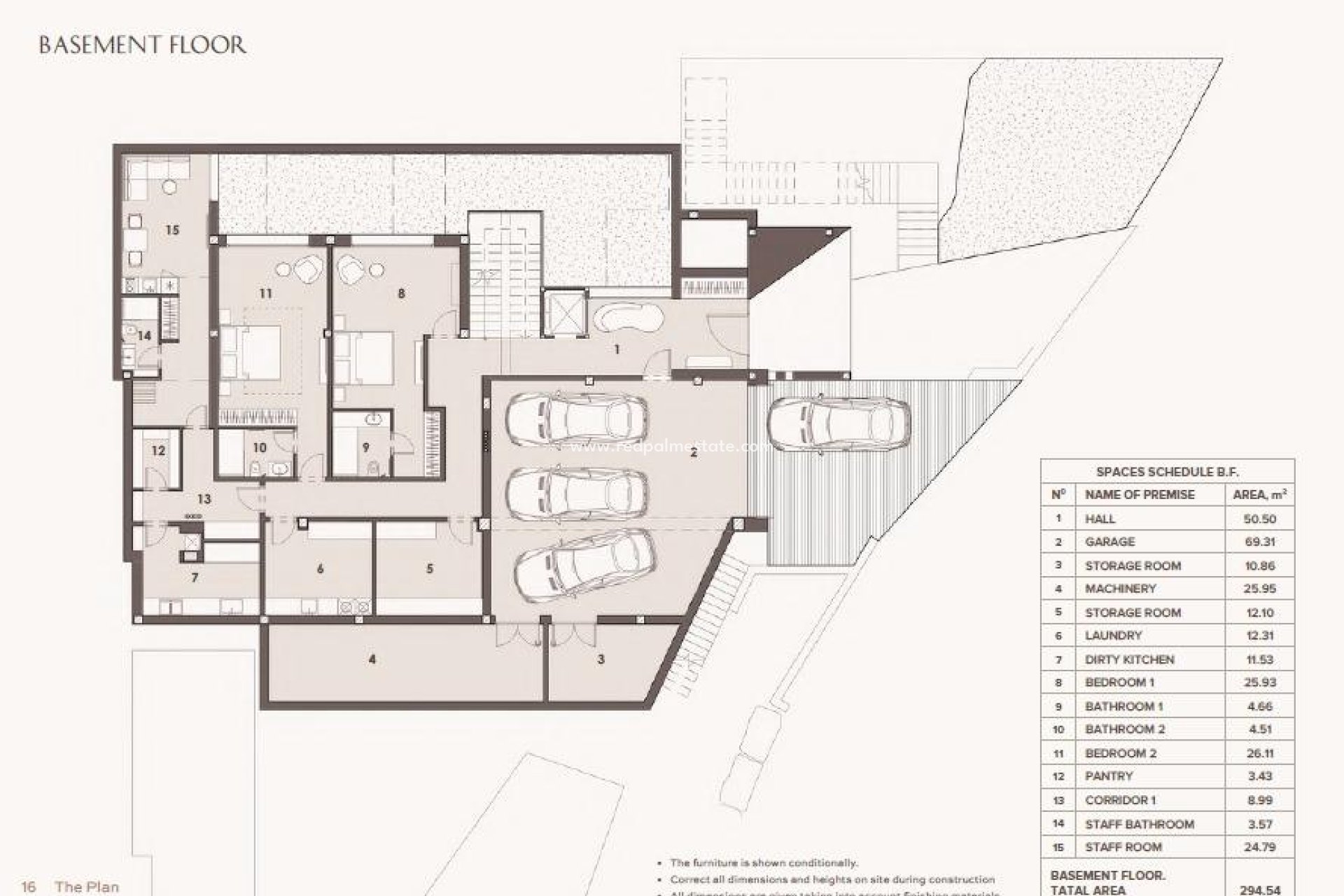
Ce superbe manoir est un chef-d'œuvre d'architecture, conçu pour s'intégrer parfaitement à son environnement naturel. Avec ses six chambres et ses sept salles de bains, la propriété offre suffisamment d'espace pour accueillir aussi bien des réunions intimes que des réceptions plus importantes. Le manoir dispose de vastes espaces intérieurs et extérieurs, allant des terrasses couvertes à un solarium accueillant, en passant par une grande terrasse au bord de la piscine, idéale pour prendre un bain de soleil. La chambre principale dispose d'un accès direct à une terrasse privée, offrant une vue imprenable sur la Méditerranée.
Idéal pour se divertir et se détendre.
Cette résidence est conçue pour un confort luxueux, avec des éléments de design uniques, des matériaux haut de gamme et un agencement spacieux parfait pour les réunions de famille et les réceptions. Un espace barbecue bien aménagé permet de dîner en plein air, tandis que le vaste solarium et la terrasse au bord de la piscine offrent des espaces pour se détendre et profiter du soleil de Marbella. La Cascada de Camoján offre une expérience de vie inégalée, alliant élégance, intimité et accès aux meilleures commodités de Marbella.
410