Lyxiga nybyggda radhus i Río Real, Marbella
Exklusivt område med förstklassiga bekvämligheter
Inbäddat i det prestigefyllda Río Real-området i Marbella, erbjuder denna fantastiska utveckling 27 radhus och parhus, utformade för att leverera den perfekta kombinationen av lyx och komfort. Dessa överdådiga hem har rymliga interiörer, privata trädgårdar och privata pooler på taket med soldäck, allt kompletterat med spektakulär utsikt över Medelhavet.
Solariet på övervåningen med privat pool och soldäck är den perfekta platsen att varva ner och njuta av Marbellas strålande solsken.
Elegant design och layout
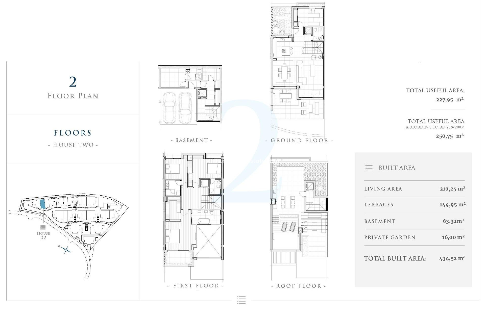
Varje radhus har en design på flera nivåer, så att du fullt ut kan njuta av panoramautsikt över havet från olika punkter i fastigheten. Med två tillgängliga layoutalternativ kan du välja mellan 4 eller 5 sovrum fördelade på källare, bottenvåning, första våningen och ett solarium. De expansiva interiörerna har avancerade ytbehandlingar, stora fönster och öppna planlösningar, som sömlöst blandar inomhus- och utomhusutrymmen. Varje hem har också ett privat underjordiskt garage för extra bekvämlighet.
Bekvämligheter i världsklass på ett utmärkt läge
Komplexet är utformat med fokus på välbefinnande och fritid och erbjuder en mängd olika gemensamma bekvämligheter, bland annat:
En utomhuspool omgiven av lummiga trädgårdar.
Ett fullt utrustat gym för att upprätthålla din aktiva livsstil.
En bastu och ett turkiskt bad för ultimat avkoppling.
Ett massagerum för att öka ditt välbefinnande. Utrymme för gemensamt arbete.
Promenadstråk som ger enkel tillgång till alla bostäder.
Närhet till viktiga platser av intresse
Beläget bara 5 minuter från den orörda Río Real-stranden, placerar detta samhälle dig nära några av Marbellas mest eftertraktade attraktioner och bekvämligheter:
Marbella centrum: 10 km
Puerto Banús marina: 16 km
Santa Clara Golf Club: 3 km
La Cañada Köpcentrum: 8 km
Málaga flygplats: 50 km
Detta exceptionella läge kombinerar lugnet i Río Real med enkel tillgång till Marbellas livliga livsstil, känd för sina fina restauranger, exklusiva shopping och fritidsalternativ i världsklass.
Hem som är redo att flytta in
Dessa radhus är nyckelfärdiga och erbjuder dig möjligheten att omedelbart njuta av en oöverträffad livsstil i ett av Marbellas mest prestigefyllda områden.
Schemalägg din visning idag
Upptäck den perfekta blandningen av lyx, komfort och bekvämlighet på Río Real. Kontakta oss nu för att ordna ett besök och säkra ditt drömhem i Marbella!
410