Nybyggnation » Radhus » Marbella » El

Radhus · Nybyggnation Marbella, El Ingenio

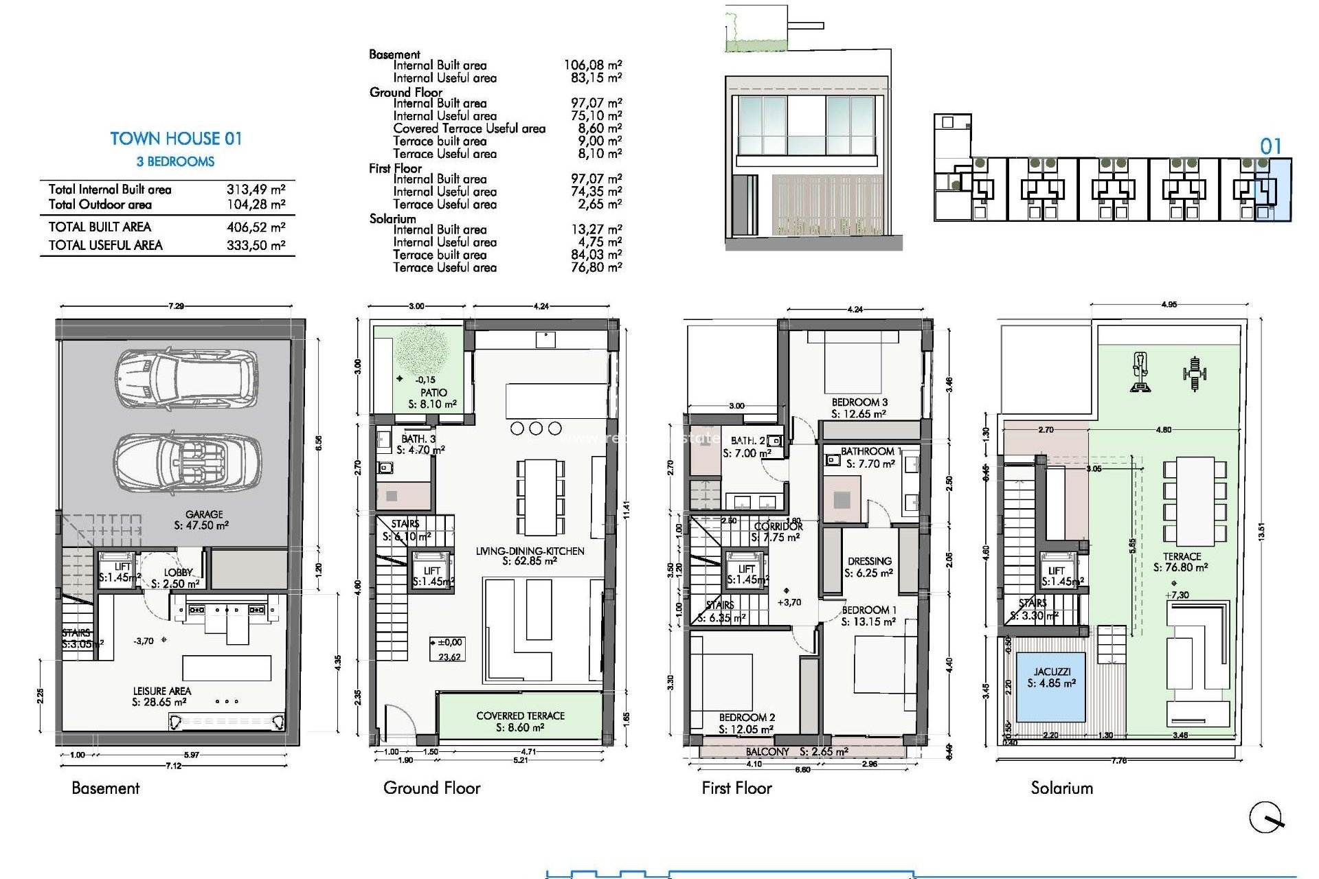
Egenskaper

Radhus · Nybyggnation Marbella, El Ingenio

  • Meter 313m2
  • Sovrum 3
  • Badrum 3
Sovrum:3
Badrum: 3
Byggd: 313m2
Användbar: 237m2
Avstånd till strand: 800 Mts.
Energi~~POS=TRUNC: B
Solarium: Ja
Centralvärme
Uteplats
Gated
Nära skolor
Nära Commercial Center
Dubbelrum: 3
Hiss/hiss
Strand: 800 meter
Plats: Kustnära, Urbanisering
Antal parkeringsplatser: 2
Underbyggnad / källare
Parkeringsplats
Terrass: 94 Msq.
Förvaring / Trastero
Användbart byggutrymme: 237 Msq.
Nära busslinje

Beskrivning

Karta

Börja ett nytt liv

Responsable del tratamiento: Red Palm Estate SL, Finalidad del tratamiento: Gestión y control de los servicios ofrecidos a través de la página Web de Servicios inmobiliarios, Envío de información a traves de newsletter y otros, Legitimación: Por consentimiento, Destinatarios: No se cederan los datos, salvo para elaborar contabilidad, Derechos de las personas interesadas: Acceder, rectificar y suprimir los datos, solicitar la portabilidad de los mismos, oponerse altratamiento y solicitar la limitación de éste, Procedencia de los datos: El Propio interesado, Información Adicional: Puede consultarse la información adicional y detallada sobre protección de datos Aquí.
Red Palm Estate
WhatsApp