Nybyggda villor på Vistabella Golf Resort – Orihuela
Upplev modernt medelhavsliv i hjärtat av Costa Blanca med dessa fantastiska nybyggda villor på Vistabella Golf Resort. Beläget mellan San Miguel de Salinas och Los Montesinos, i kommunen Orihuela, erbjuder detta exklusiva bostadsområde lyx, komfort och ett oslagbart läge för både golfentusiaster och livsstilsorienterade.
Två olika villamodeller
Köpare kan välja mellan två eleganta modeller:
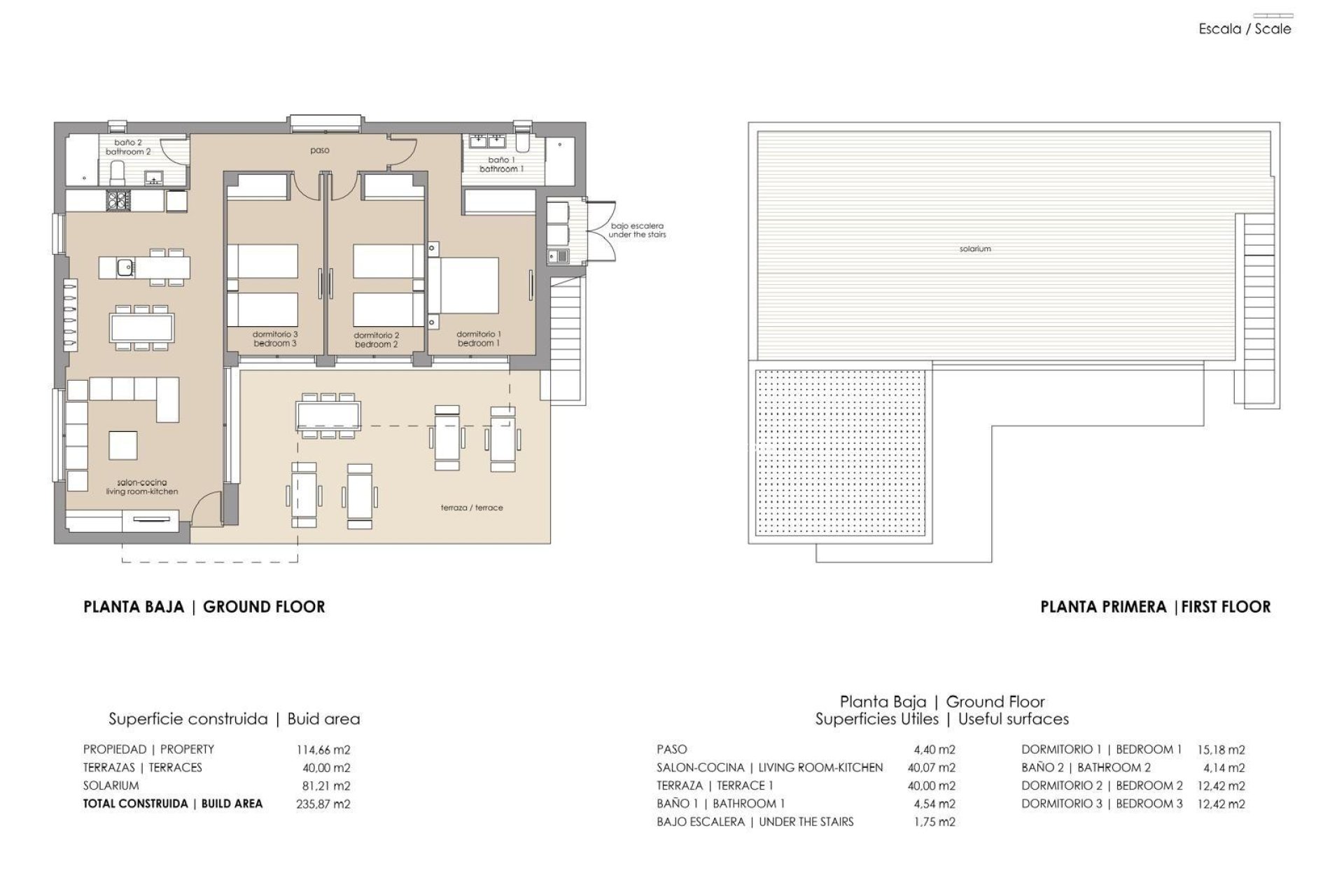
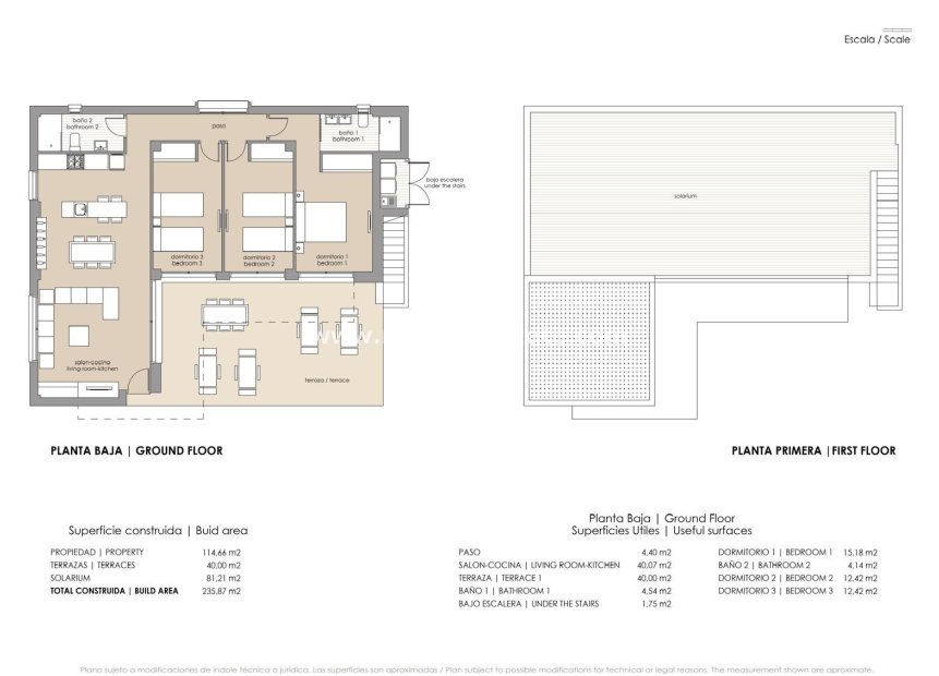
Enplansvillor med 3 sovrum, 2 badrum och takterrass.
Tvåvåningsvillor med 4 sovrum, 3 badrum och solterrass på första våningen.
Båda modellerna ligger på tomter på cirka 300 m² och har privat pool och parkering på tomten.
Premiumkvalitet och modern komfort
Varje villa har lyxig finish, inklusive fullt installerad luftkonditionering, utrustat kök med vitvaror, utomhusbelysning, elektriska fönsterluckor och eleganta duschväggar i badrummen. Kombinationen av stil och funktionalitet garanterar ett hem som är både vackert och praktiskt.
Exklusiv livsstil på golfresort
Vistabella Golf Resort är en gated community med en 18-håls golfbana, paddeltennisbanor, en bowlingbana, en stormarknad och ett brett utbud av barer och restauranger. Framtida uppgraderingar kommer att göra resorten till en riktig 5-stjärnig destination, med planerade tillägg som en champagnebar, sushibar, spahotell, konstgjord strand, tennisbana, fotbollsplan och gourmetbar.
Förstklassigt läge på Costa Blanca
Resorten erbjuder utmärkt tillgång till regionens bästa stränder, golfbanor och tjänster. Avstånd till viktiga sevärdheter:
La Mata-stranden: 18 km
Guardamar del Segura-stranden: 20 km
Torrevieja: 15 km
Alicante flygplats: 55 km
Murcia flygplats: 68 km
Villamartín Golf: 12 km
Las Colinas Golf & Country Club: 14 km
Ditt drömhem väntar
Oavsett om det är som permanentbostad, semesterhus eller uthyrningsinvestering, erbjuder dessa nybyggda villor på Vistabella Golf Resort exceptionellt värde i ett av Spaniens mest eftertraktade kustområden.
Kontakta oss idag för att boka en visning och säkra din plats i detta lyxiga golfsamhälle.
410