Villas neuves au Vistabella Golf Resort – Orihuela
Découvrez la vie moderne à la méditerranée au cœur de la Costa Blanca avec ces superbes villas neuves au Vistabella Golf Resort. Situé entre San Miguel de Salinas et Los Montesinos, dans la municipalité d'Orihuela, ce complexe exclusif offre luxe, confort et un emplacement imbattable pour les amateurs de golf et ceux qui recherchent un certain art de vivre.
Deux modèles de villas distincts
Les acheteurs peuvent choisir entre deux designs élégants :
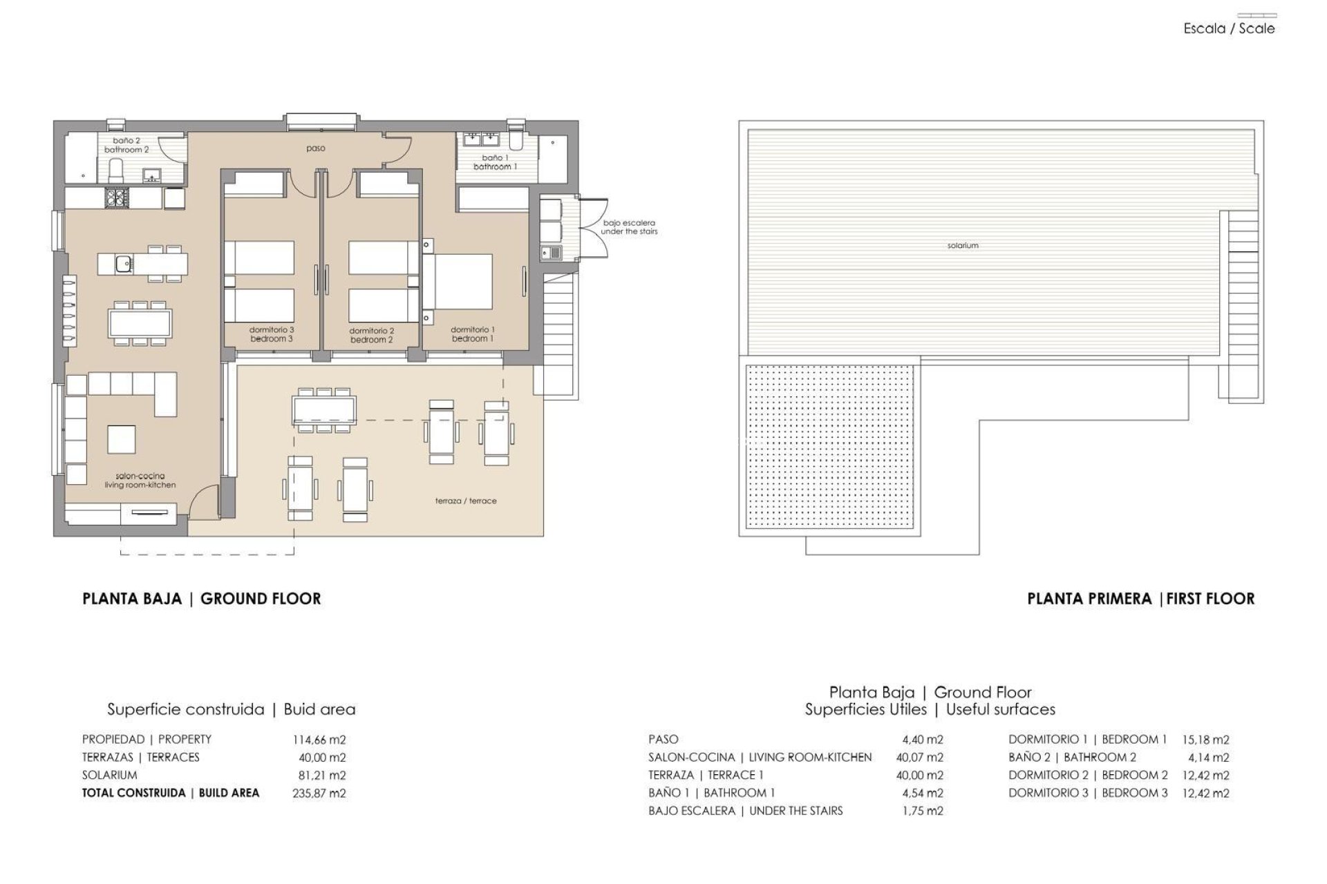
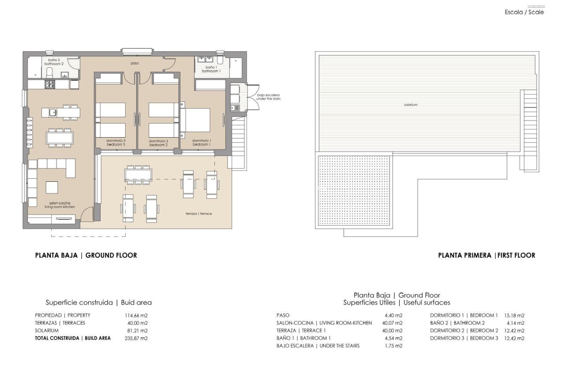
Villas de plain-pied avec 3 chambres, 2 salles de bains et un solarium sur le toit.
Villas à deux étages avec 4 chambres, 3 salles de bains et une terrasse solarium au premier étage.
Les deux modèles sont construits sur des terrains d'environ 300 m² et comprennent une piscine privée et un parking sur place.
Qualité supérieure et confort moderne
Chaque villa est dotée de finitions luxueuses, notamment la climatisation réversible, une cuisine équipée avec appareils électroménagers, l'éclairage extérieur, des volets électriques et d'élégantes parois de douche dans les salles de bains. L'alliance du style et de la fonctionnalité garantit une maison à la fois belle et pratique.
Un style de vie exclusif dans un complexe de golf
Vistabella Golf Resort est une communauté fermée avec un parcours de golf 18 trous, des courts de paddle-tennis, un terrain de boules, un supermarché et un large choix de bars et de restaurants. De futurs aménagements feront de ce complexe une véritable destination 5 étoiles, avec notamment un bar à champagne, un bar à sushis, un hôtel spa, une plage artificielle, un court de tennis, un terrain de football et un bar gastronomique.
Emplacement privilégié sur la Costa Blanca
Le complexe offre un excellent accès aux meilleures plages, terrains de golf et services de la région. Les distances vers les principaux points d'intérêt sont les suivantes :
Plage de La Mata : 18 km
Plage de Guardamar del Segura : 20 km
Torrevieja : 15 km
Aéroport d'Alicante : 55 km
Aéroport de Murcie : 68 km
Villamartín Golf : 12 km
Las Colinas Golf & Country Club : 14 km
La maison de vos rêves vous attend
Que ce soit comme résidence permanente, maison de vacances ou investissement locatif, ces villas neuves du Vistabella Golf Resort offrent un rapport qualité-prix exceptionnel dans l'une des zones côtières les plus prisées d'Espagne.
Contactez-nous dès aujourd'hui pour organiser une visite et réserver votre place dans ce luxueux complexe de golf.
410