Nouvelle construction » Villa » Orihuela Co

Villas neuves au Vistabella Golf Resort – Orihuela Orihuela Costa, Vistabella Golf Entre Naranjos

Les caractéristiques

Villas neuves au Vistabella Golf Resort – Orihuela Orihuela Costa, Vistabella Golf Entre Naranjos

Villas neuves au Vistabella Golf Resort – Orihuela

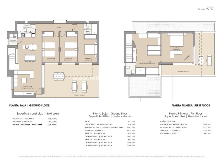
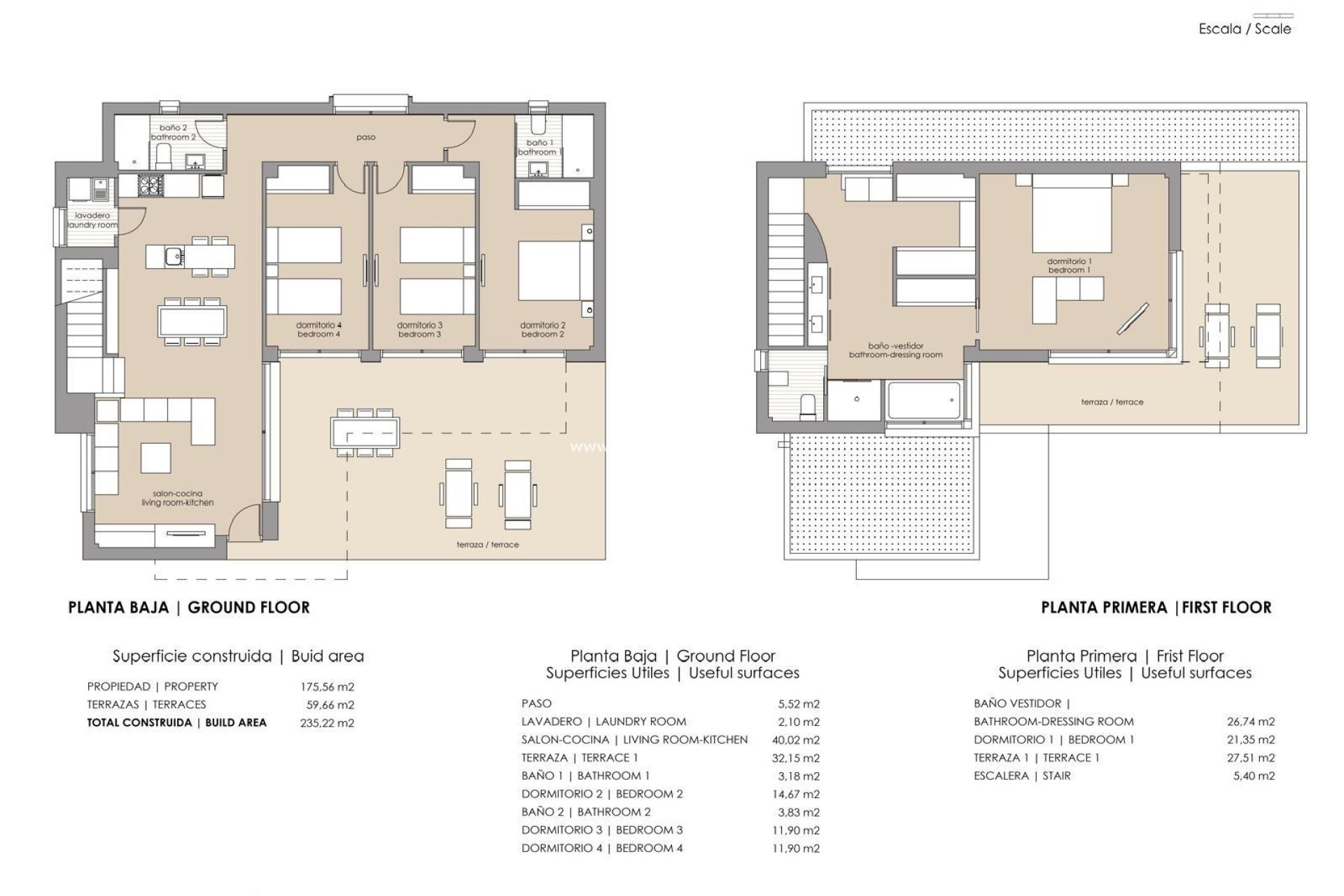
  • Mètres 175m2
  • Intrigue 305m2
  • Chambres 4
  • Salles de bain 3
  • Piscine Oui
Chambres:4
Salles de bain: 3
Construit: 175m2
Utile: 120m2
Intrigue: 305m2
Piscine: Oui
Distance à la plage: 14000 Mts.
Énergie: B
Piscine privée
Solarium : Oui
Fermé
Nombre de places de stationnement : 1
Près du Golf / Propriété du Golf Resort
Près des écoles
Près du centre commercial
Plage : 14 000 mètres
Chambres doubles : 4
Localisation : Urbanisation
Espace de construction utilisable : 120 m².
Place de parking
Terrasse : 59 m².

La description

Carte

Commencez une nouvelle vie

Faire une enquête

Responsable del tratamiento: Red Palm Estate SL, Finalidad del tratamiento: Gestión y control de los servicios ofrecidos a través de la página Web de Servicios inmobiliarios, Envío de información a traves de newsletter y otros, Legitimación: Por consentimiento, Destinatarios: No se cederan los datos, salvo para elaborar contabilidad, Derechos de las personas interesadas: Acceder, rectificar y suprimir los datos, solicitar la portabilidad de los mismos, oponerse altratamiento y solicitar la limitación de éste, Procedencia de los datos: El Propio interesado, Información Adicional: Puede consultarse la información adicional y detallada sobre protección de datos Aquí.
Red Palm Estate
WhatsApp