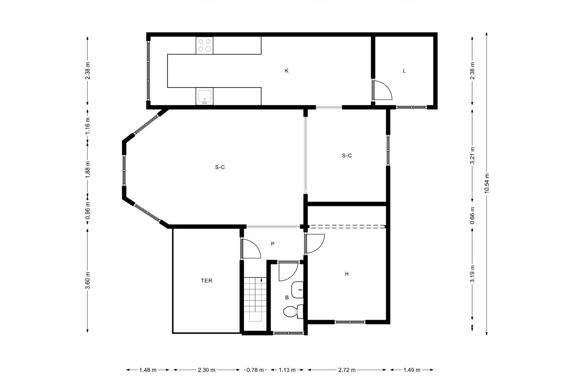
Välkommen till ditt nya hem i Orihuela Costa, i det charmiga området Las Mimosas! Detta spektakulära hus presenteras som möjligheten du har väntat på att leva ditt drömliv i en paradisisk miljö.Med en generös yta på 161 kvadratmeter och en tomt på mer än 300 kvadratmeter är detta hem en oas av utrymme och avskildhet. Dessutom garanterar dess läge bara 3000 meter från stranden dig njutningen av havet och solen alltid till hands. Njut av rymligheten i detta 5 sovrum hem, med fördelen av ett rum på bottenvåningen för extra komfort. På denna våning hittar vi också ett badrum. Den första våningen erbjuder 3 sovrum och 2 badrum, 1 badrum. På golvet i solariet finner vi det femte sovrummet mycket ljust. Denna fastighet är redo för dig att flytta in och känna dig som hemma från första stund. Det utrustade köket låter dig ge fritt spelrum åt din kulinariska kreativitet, och den sydöstra orienteringen ger dig ojämförlig naturlig ljusstyrka hela dagen. Ytterligare bekvämligheter i detta hus är otaliga. Njut av bekvämligheten med rinnande vatten, komforten med luftkonditionering och säkerheten i ett larmsystem. Inbyggda garderober, ett skafferi och en tvättstuga gör det enkelt att organisera din vardag. Huset är fullt möblerat, vilket innebär att du kan flytta in utan komplikationer och börja njuta av dina utrymmen från dag ett. Trädgården, med sina träd och en grillplats, blir den perfekta miljön för dina familjesammankomster och utomhusstunder. Koppla av och fördjupa dig i vattnet i din privata pool eller gå med i gemenskapen i den gemensamma poolen. Solariet erbjuder dig ett hörn av lugn för dina stunder av reflektion, medan den klara utsikten och medelhavsbrisen smeker din själ. Läget för detta hus är helt enkelt exceptionellt, med köpcentra, sjukhus, parker, stormarknader och barnområden i närheten. gör vardagen extremt bekväm. Samhällsavgifterna är endast 402 euro per år, vilket garanterar ett oklanderligt underhåll av de gemensamma utrymmena. Kort sagt, detta hus i Orihuela Costa är mycket mer än en fastighet; Det är en livsstil. Ett liv av komfort, skönhet och lugn väntar dig här. Missa inte detta tillfälle och kontakta oss idag för att besöka ditt nya hem!