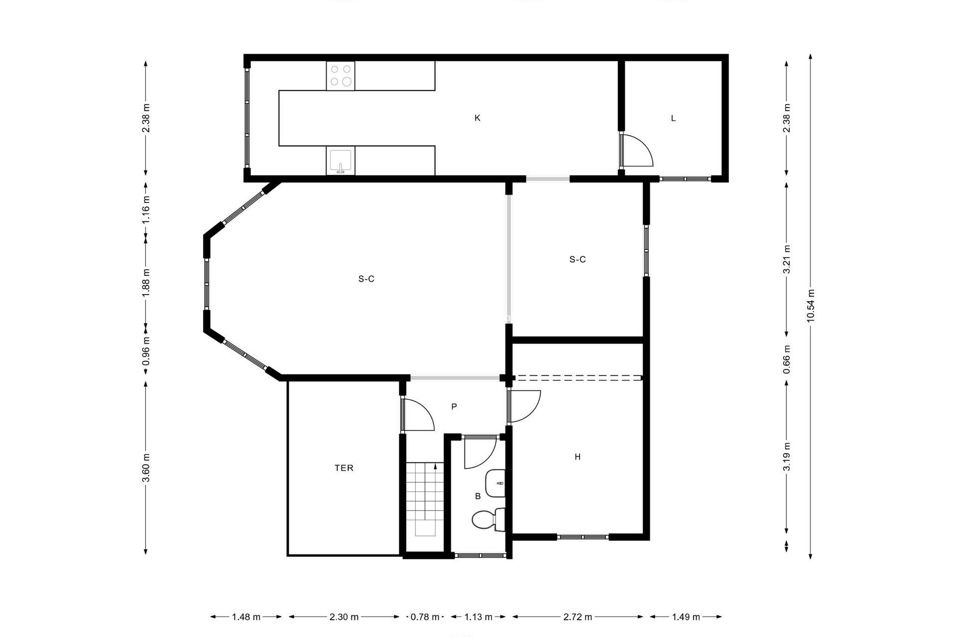
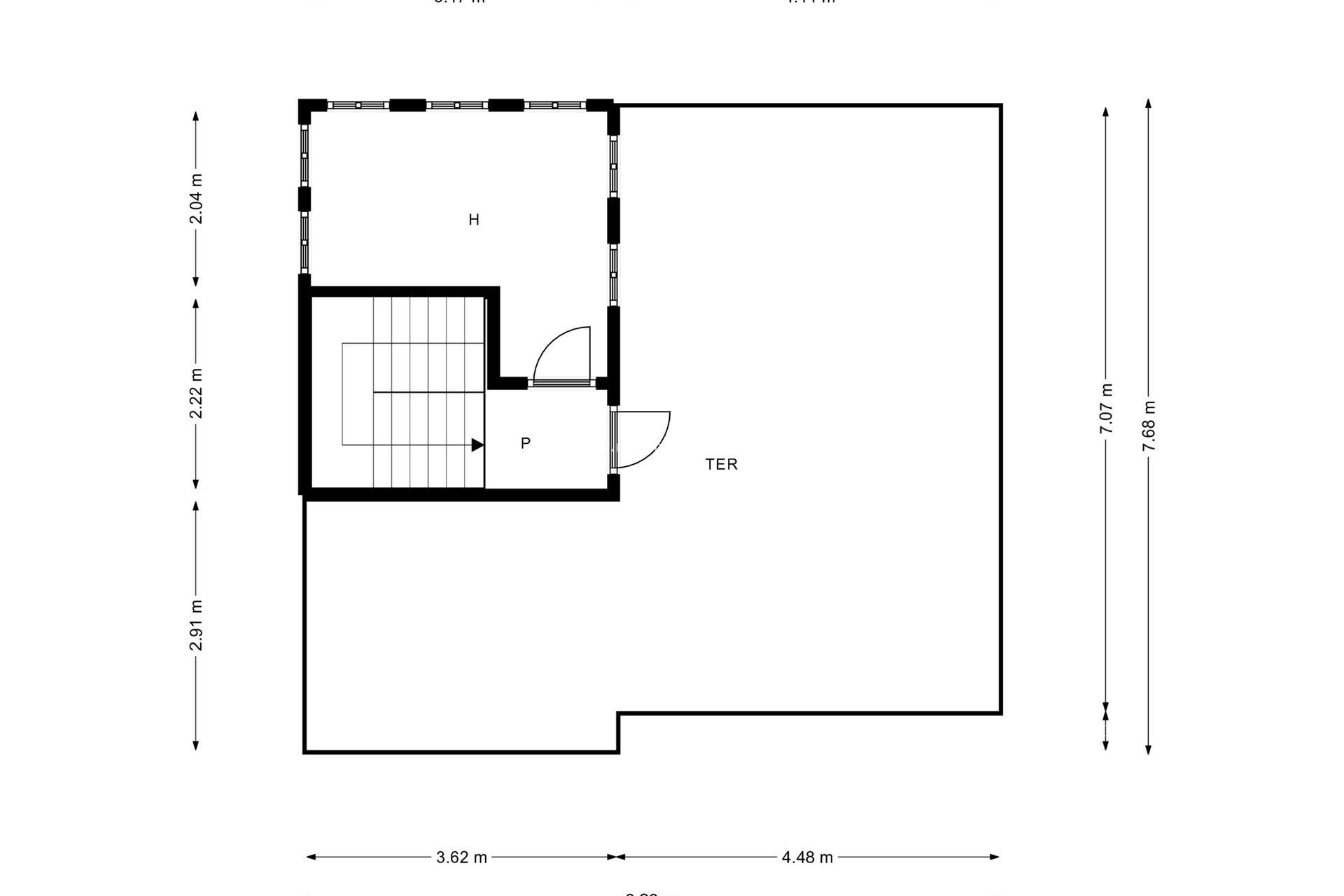
Velkommen til ditt nye hjem i Orihuela Costa, i det sjarmerende området Las Mimosas! Dette spektakulære huset presenteres som muligheten du har ventet på for å leve ditt drømmeliv i et paradisisk miljø.Med et sjenerøst areal på 161 kvadratmeter og en tomt på mer enn 300 kvadratmeter er dette huset en oase plass og privatliv. I tillegg garanterer beliggenheten kun 3000 meter fra stranden deg gleden av havet og solen alltid ved fingertuppene. Nyt romsligheten til dette 5-roms huset, med fordelen av et rom i første etasje for større komfort. De 2 badene og toalettet sørger for at morgenene blir en problemfri tur. Denne eiendommen er klar til å flytte inn og føle deg hjemme fra første stund. Det utstyrte kjøkkenet lar deg gi fritt spillerom til din kulinariske kreativitet, og sør-øst-orienteringen gir deg uforlignelig naturlig lysstyrke hele dagen. Ekstra bekvemmeligheter i dette huset er utallige. Nyt bekvemmeligheten av rennende vann, komforten med klimaanlegg og sikkerheten til et alarmsystem. Innebygde garderober, et pantry og et vaskerom gjør det enkelt å organisere hverdagen. Huset er fullt møblert, noe som betyr at du kan flytte inn uten komplikasjoner og begynne å nyte plassene dine fra dag én. Hagen, med sine trær og en grillplass, blir den perfekte rammen for familiesammenkomster og utendørs øyeblikk. Slapp av og fordyp deg i vannet i ditt private basseng eller bli med i fellesskapet i fellesbassenget. Solariet tilbyr deg et hjørne av ro for dine øyeblikk av refleksjon, mens den klare utsikten og middelhavsbrisen kjærtegner sjelen din. Beliggenheten til dette huset er rett og slett eksepsjonell, med kjøpesentre, sykehus, parker, supermarkeder og barneområder i nærheten , som gjør hverdagen ekstremt behagelig. Fellesavgiftene er bare 402 euro per år, noe som garanterer upåklagelig vedlikehold av fellesarealene. Kort sagt, dette huset i Orihuela Costa er mye mer enn en eiendom; Det er en livsstil. Et liv med komfort, skjønnhet og ro venter deg her. Ikke gå glipp av denne muligheten og kontakt oss i dag for å besøke ditt nye hjem!