Moderne leiligheter med ett soverom i Mijas Costa – komfort, stil og god verdi
Moderne boende i Las Lagunas, Mijas Costa
Oppdag et spennende nytt boligprosjekt med 116 stilige leiligheter med ett soverom i Las Lagunas, Mijas Costa – et av de mest dynamiske og fremtidsrettede områdene på Costa del Sol. Dette området tilbyr den perfekte balansen mellom rolig boligmiljø og urbane bekvemmeligheter, med alle nødvendige tjenester bare noen minutter unna. Beboerne har nærhet til kjøpesentre, skoler, helsestasjoner, idrettsanlegg og et bredt utvalg av restauranter.
Smart design og funksjonelle rom
Disse leilighetene er designet med tanke på moderne livsstil og har åpen planløsning som maksimerer både plass og komfort. Det lyse interiøret har naturlige materialer og varme farger, som skaper en koselig og innbydende atmosfære. Stuen, kjøkkenet og soverommet flyter sammen i et sømløst, harmonisk design, med terrassen som en naturlig forlengelse av det innvendige rommet – ideelt for å nyte middelhavslivet og friluftslivet hele året.
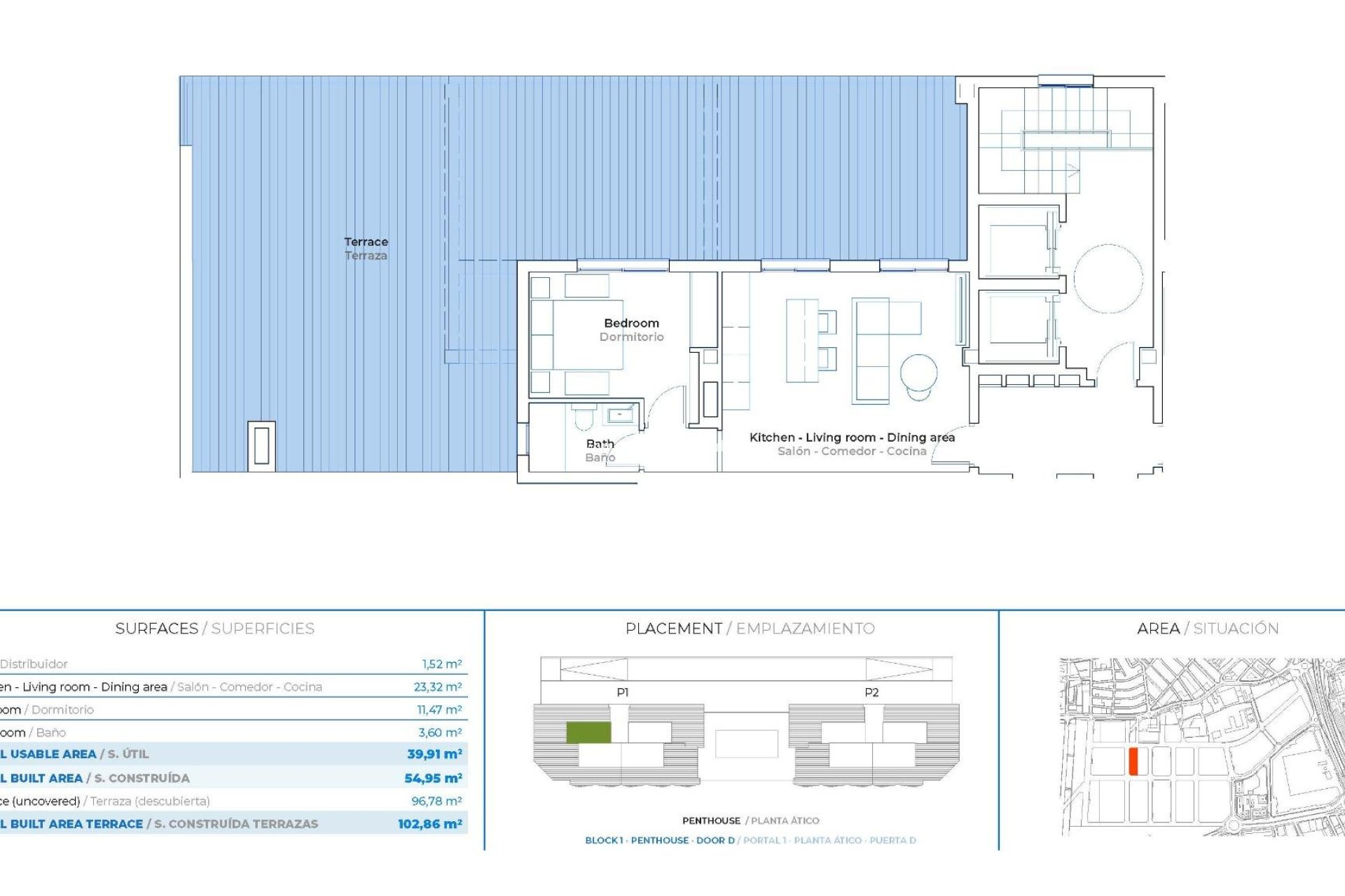
Velg mellom første eller mellomste etasje med terrasse, eller penthouse med store private terrasser som er perfekte for soling eller selskap.
Hver leilighet inkluderer:
Fullt utstyrt kjøkken med hvitevarer
Klimaanlegg via kanaler
En privat parkeringsplass inkludert
Førsteklasses fasiliteter for en balansert livsstil
Bebyggelsen er bygget rundt et sentralt felles svømmebasseng med en chill-out-bar i tropisk stil, som tilbyr den perfekte rammen for avslapning og sosialt samvær. Det er også et eget grillområde for samlinger med familie og venner. Beboerne vil også ha tilgang til et fullt utstyrt treningsstudio, som støtter en sunn og aktiv livsstil uten å forlate hjemmet.
For profesjonelle eller studenter tilbyr et felles arbeidsområde et moderne og praktisk miljø for fjernarbeid eller studier, noe som forsterker forpliktelsen til en livsstil der komfort, fritid og produktivitet eksisterer side om side.
Viktige avstander:
Strendene i Mijas Costa: 2 km
Miramar kjøpesenter: 1 km
Fuengirola sentrum: 4 km
Chaparral Golf Club: 5 km
Málaga-Costa del Sol flyplass: 25 km
Marbella: 25 km
Invester i hjertet av Costa del Sol
Dette boligprosjektet representerer en unik mulighet for førstegangskjøpere, investorer eller pensjonister som ønsker et godt tilknyttet, livlig samfunn med utmerkede fasiliteter og god verdi. Enten det er som bolig eller utleieinvestering, er disse moderne leilighetene i Mijas Costa designet for å tilpasse seg dagens livsstil.
Kontakt oss i dag og sikre deg en plass i et av de mest lovende områdene på Costa del Sol.
410