Obra nueva » Apartmentos » Mijas » La

Modernos apartamentos de un dormitorio en Mijas Costa Mijas, Las Lagunas de Mijas

Características

Modernos apartamentos de un dormitorio en Mijas Costa Mijas, Las Lagunas de Mijas

Modernos apartamentos de un dormitorio en Mijas Costa

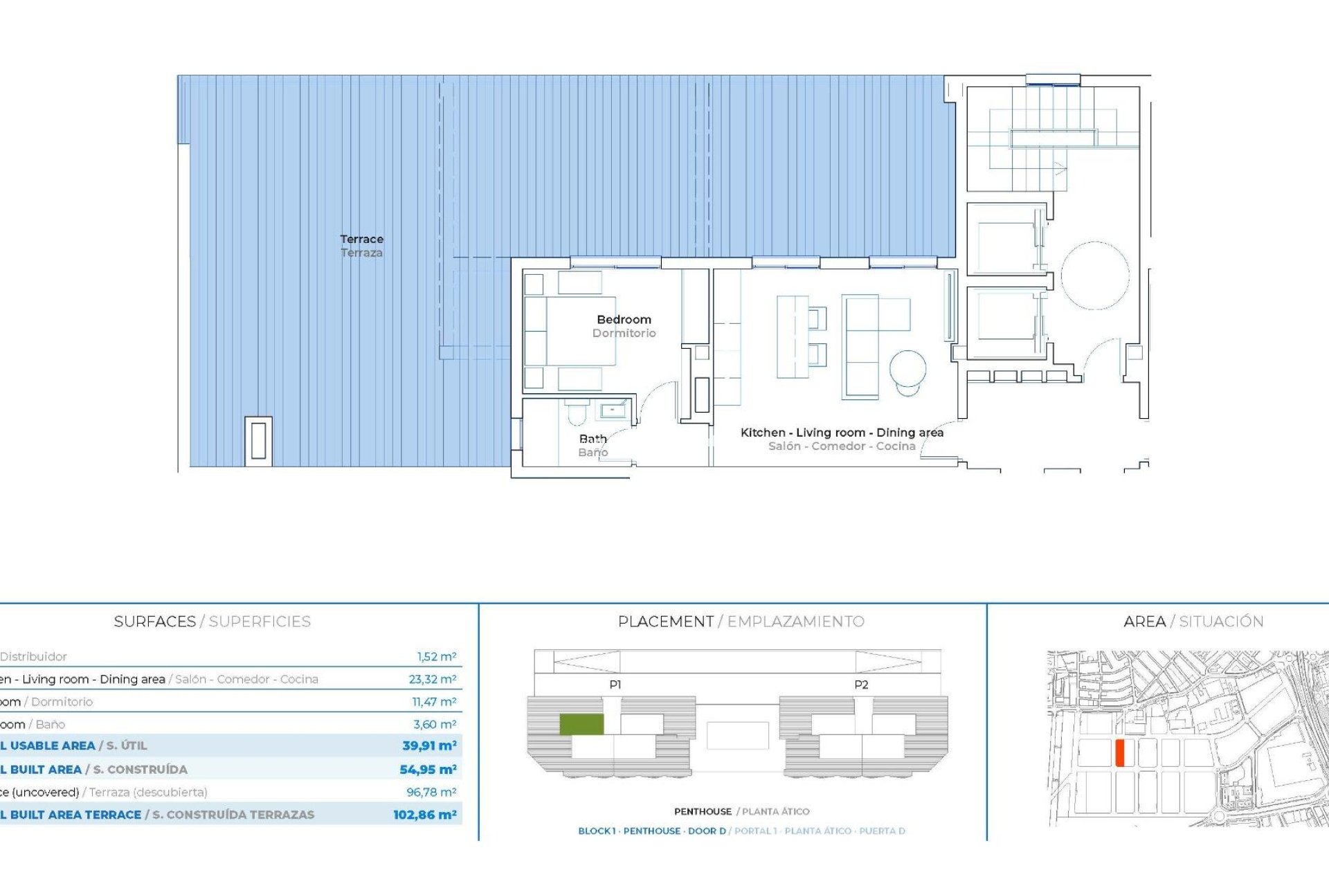
  • Metros 54m2
  • Habitaciones 1
  • Baños 1
  • Piscina
Habitaciones:1
Baños: 1
Construidos: 54m2
Útiles: 39m2
Piscina:
Distancia a la playa: 1800 Mts.
Calificación energética: B
Cerca de la ruta del autobús
Piscina comunitaria
Gimnasia
Barbacoa
Cerrado
Número de plazas de aparcamiento: 1
Cerca de escuelas
Cerca del centro comercial
Ascensor
Ubicación: Costera, Urbanización
Aire acondicionado: Sí
Terraza: 96 M2.
Playa: 1800 Metros
Habitaciones Dobles: 1
Espacio Construido Útil: 39 Msq.
Plaza de aparcamiento

Descripción

Mapa

Comienza una nueva vida

Realizar una consulta

Responsable del tratamiento: Red Palm Estate SL, Finalidad del tratamiento: Gestión y control de los servicios ofrecidos a través de la página Web de Servicios inmobiliarios, Envío de información a traves de newsletter y otros, Legitimación: Por consentimiento, Destinatarios: No se cederan los datos, salvo para elaborar contabilidad, Derechos de las personas interesadas: Acceder, rectificar y suprimir los datos, solicitar la portabilidad de los mismos, oponerse altratamiento y solicitar la limitación de éste, Procedencia de los datos: El Propio interesado, Información Adicional: Puede consultarse la información adicional y detallada sobre protección de datos Aquí.
Red Palm Estate
WhatsApp