Nouvelle construction » Appartements » Mija

Appartements modernes d'une chambre à Mijas Costa Mijas, Las Lagunas de Mijas

Les caractéristiques

Appartements modernes d'une chambre à Mijas Costa Mijas, Las Lagunas de Mijas

Appartements modernes d'une chambre à Mijas Costa

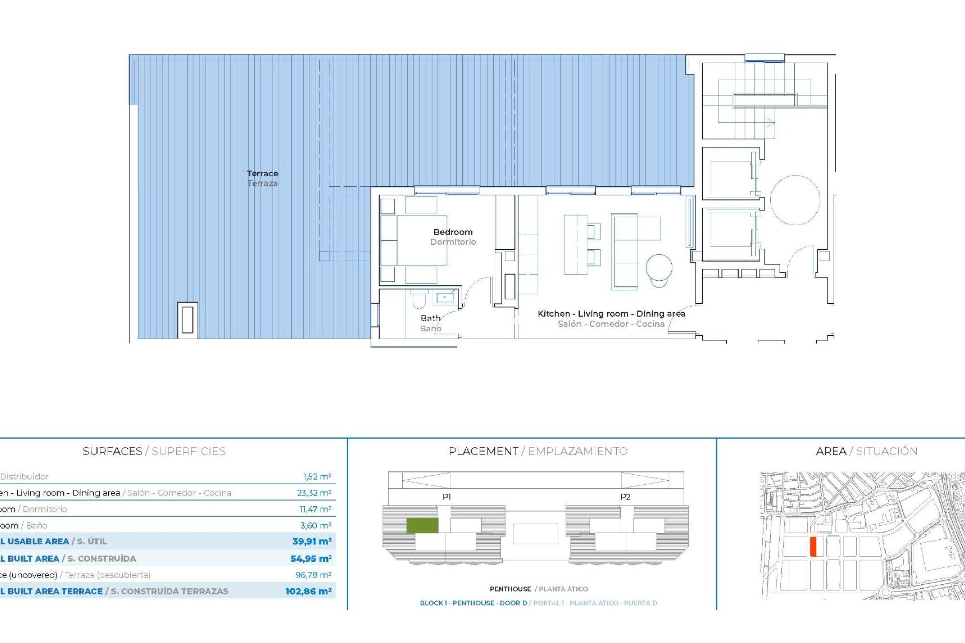
  • Mètres 54m2
  • Chambres 1
  • Salles de bain 1
  • Piscine Oui
Chambres:1
Salles de bain: 1
Construit: 54m2
Utile: 39m2
Piscine: Oui
Distance à la plage: 1800 Mts.
Énergie: B
À proximité de la ligne de bus
Piscine commune
Salle de sport
Un barbecue
Fermé
Nombre de places de stationnement : 1
Près des écoles
Près du centre commercial
Ascenseur/Ascenseur
Emplacement : Côtier, Urbanisation
Climatisation : Oui
Terrasse : 96 m².
Plage : 1800 mètres
Chambres doubles : 1
Espace de construction utilisable : 39 M².
Place de parking

La description

Carte

Commencez une nouvelle vie

Faire une enquête

Responsable del tratamiento: Red Palm Estate SL, Finalidad del tratamiento: Gestión y control de los servicios ofrecidos a través de la página Web de Servicios inmobiliarios, Envío de información a traves de newsletter y otros, Legitimación: Por consentimiento, Destinatarios: No se cederan los datos, salvo para elaborar contabilidad, Derechos de las personas interesadas: Acceder, rectificar y suprimir los datos, solicitar la portabilidad de los mismos, oponerse altratamiento y solicitar la limitación de éste, Procedencia de los datos: El Propio interesado, Información Adicional: Puede consultarse la información adicional y detallada sobre protección de datos Aquí.
Red Palm Estate
WhatsApp