Nybyggnation » Lägenheter » Marbella »

Lägenheter · Nybyggnation Marbella, El Ingenio

Egenskaper

Lägenheter · Nybyggnation Marbella, El Ingenio

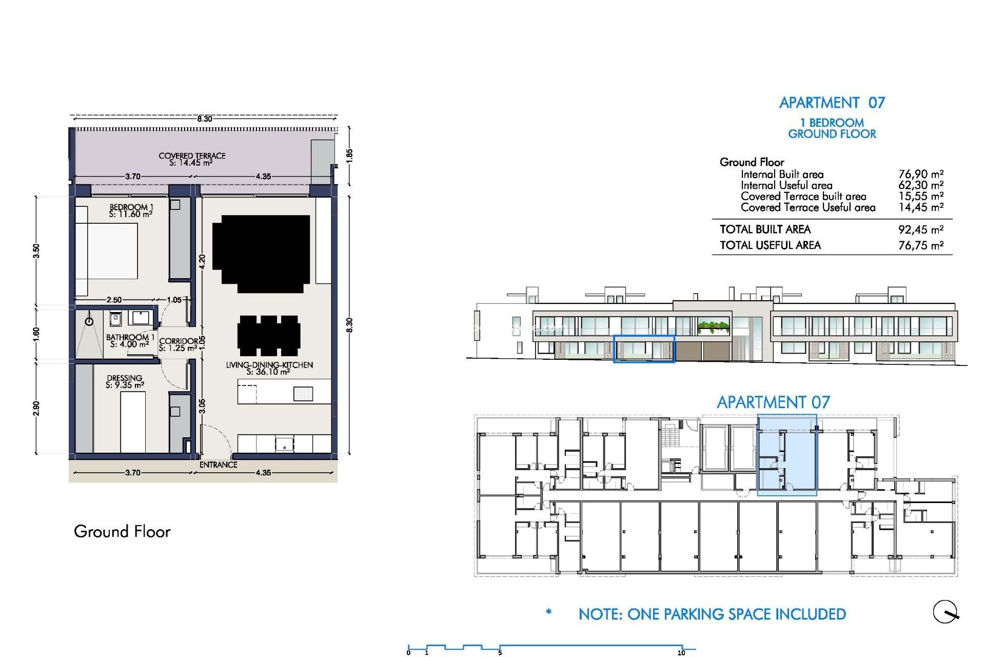
  • Meter 92m2
  • Sovrum 1
  • Badrum 1
Sovrum:1
Badrum: 1
Byggd: 92m2
Användbar: 76m2
Avstånd till strand: 800 Mts.
Energi~~POS=TRUNC: B
Nära busslinje
Centralvärme
Gated
Antal parkeringsplatser: 1
Nära skolor
Nära Commercial Center
Hiss/hiss
Strand: 800 meter
Plats: Kustnära, Urbanisering
Dubbelrum: 1
Terrass: 14 Msq.
Användbart byggutrymme: 76 Msq.
Parkeringsplats
Förvaring / Trastero

Beskrivning

Karta

Börja ett nytt liv

Responsable del tratamiento: Red Palm Estate SL, Finalidad del tratamiento: Gestión y control de los servicios ofrecidos a través de la página Web de Servicios inmobiliarios, Envío de información a traves de newsletter y otros, Legitimación: Por consentimiento, Destinatarios: No se cederan los datos, salvo para elaborar contabilidad, Derechos de las personas interesadas: Acceder, rectificar y suprimir los datos, solicitar la portabilidad de los mismos, oponerse altratamiento y solicitar la limitación de éste, Procedencia de los datos: El Propio interesado, Información Adicional: Puede consultarse la información adicional y detallada sobre protección de datos Aquí.
Red Palm Estate
WhatsApp