Nybyggda lägenheter vid Baviera Golf i Vélez Málaga, bara 1500 meter från havet
Exklusivt bostadsområde på Costa del Sol
Detta exklusiva bostadsområde med grindar ligger vid Baviera Golf i Vélez Málaga, bara 1500 meter från Medelhavet. Komplexet består av 115 moderna lägenheter med 2 och 3 sovrum, fördelade på 7 block och 13 entréer, utformade för att erbjuda komfort, avskildhet och en hög livskvalitet i en privilegierad miljö vid golfbanan.
Alla fastigheter har en privat parkeringsplats och förråd, vilket gör detta bostadsområde idealiskt för permanent boende, semesterboende eller investering på Costa del Sol.
Ljusa bostäder med terrasser, trädgårdar och fri utsikt
Tack vare tomtens naturliga lutning och en detaljerad arkitektonisk studie har bostäderna utformats med balanserade planlösningar, öppna vardagsrum och utmärkta lägen som ger rikligt med naturligt ljus och trevlig öppen utsikt.
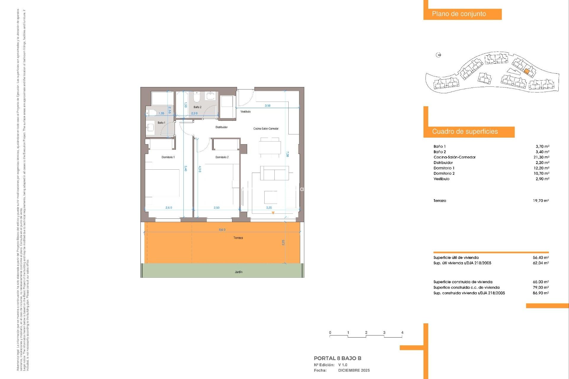
Köpare kan välja mellan lägenheter på bottenvåningen med privat terrass och trädgård, lägenheter på mellanvåningen med rymliga terrasser eller takvåningar med stora öppna terrasser och panoramautsikt.
Högkvalitativa specifikationer och personaliseringsalternativ
Lägenheterna levereras med högsta byggstandard och energiklass A, vilket garanterar effektivitet och hållbarhet. Funktioner inkluderar förstärkta säkerhetsdörrar, förinstallation för luftkonditionering och hiss i alla byggnader.
Köken levereras omöblerade, vilket gör det möjligt för köpare att anpassa ytbehandlingar och vitvaror efter sina önskemål mot en extra kostnad. Ett brett utbud av anpassningsalternativ finns tillgängligt för att anpassa varje bostad efter individuella smaker och behov.
Enastående gemensamma utrymmen för avkoppling och välbefinnande
Boende kan njuta av anlagda trädgårdar, en gemensam pool, ett fitnessutrymme och en klubb, vilket skapar en komplett bostadsmiljö med fokus på komfort och gemenskap.
Utmärkt läge nära La Caleta de Vélez och stranden
Bostadsområdet ligger bara 500 meter från La Caleta de Vélez, där du hittar skolor, vårdcentraler, idrottsanläggningar, apotek, stormarknader och restauranger. Stranden ligger mindre än 2 km bort, och marinan i Caleta de Vélez Marina erbjuder vattenaktiviteter och restauranger vid vattnet.
Avstånd till viktiga sevärdheter
Baviera Golf: första linjen
La Caleta de Vélez 0,5 km
Stranden 1,5 km
Torre del Mar 3 km
Málagas centrum 35 km
Málagas flygplats 40 km
Med direkt tillgång till motorväg A7 garanterar detta läge utmärkta förbindelser över hela Costa del Sol.
Ditt nya hem vid golfbanan och havet
Njut av lugnet, utsikten över golfbanan och närheten till stranden i ett av de mest attraktiva områdena i Vélez Málaga. Kontakta oss idag för att få mer information eller för att boka en privat visning av detta exceptionella nybyggnadsprojekt.
410