Nybyggda villor med privat pool nära La Serena Golf i Los Alcazares
Exklusivt boutique-bostadsprojekt nära golf och strand
Upptäck detta exklusiva bostadsprojekt med endast åtta fristående nybyggda villor, idealiskt beläget mellan La Serena Golf och den charmiga kuststaden Los Alcazares. Bostäderna ligger bara 1 500 meter från stränderna vid Mar Menor och erbjuder den perfekta kombinationen av golf, hav och medelhavsliv.
Läget gör att boende kan njuta av gångavstånd till både golfbanan och stadskärnan, där ett brett utbud av restauranger, butiker, kaféer och nödvändiga tjänster finns. Los Alcazares är känt för sin avslappnade atmosfär, långa strandpromenad och grunda, varma vatten, vilket gör det till ett populärt resmål för både semesterfirare och fastboende.
Moderna villor med flexibla planlösningar
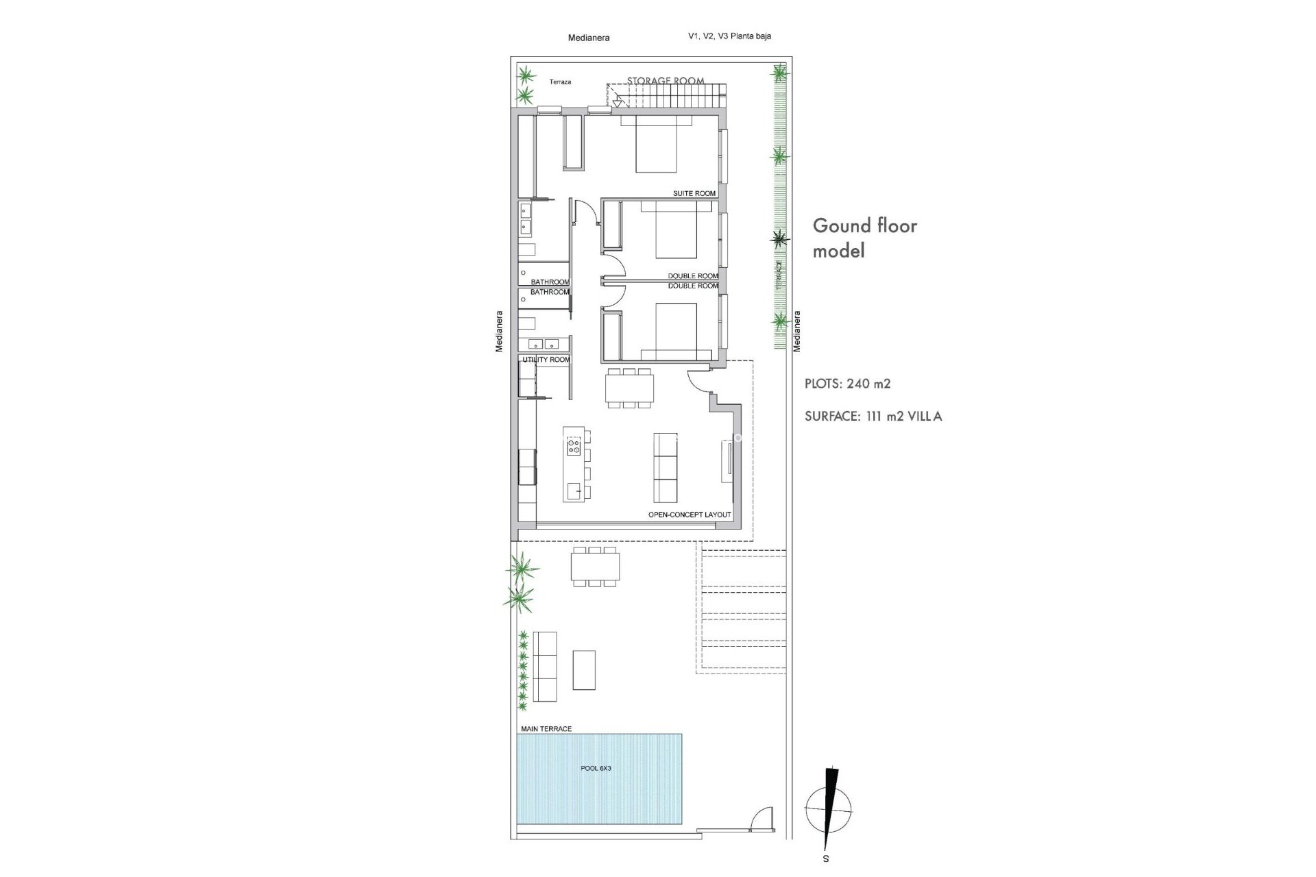
Dessa moderna villor finns i konfigurationer med två eller tre sovrum, med alternativ för planlösningar i en eller två våningar. Byggda på privata tomter från 200 m² är varje bostad utformad för att maximera utrymme, komfort och naturligt ljus.
Alla villor har en privat pool och parkering på tomten, vilket skapar en privat och funktionell utomhusmiljö som är idealisk för att njuta av det soliga klimatet året runt.
Villorna i en plan har ett privat solarium på taket, perfekt för solbad eller avkoppling med fri utsikt. Villorna i två plan har rymliga terrasser på övervåningen, vilket ger ytterligare utomhusutrymmen.
Öppen planlösning och kontakt med utomhusmiljön
Interiörens planlösning fokuserar på en öppen planlösning, med ljusa vardagsrums- och matplatser som smidigt ansluter till moderna kök. Stora fönster låter naturligt ljus fylla rummen samtidigt som de erbjuder direkt tillgång till terrasser och poolområden.
Denna design förstärker den livsstil som kombinerar inomhus- och utomhusliv, vilket kännetecknar livet på Costa Calida, vilket gör dessa villor idealiska både för vardagsliv och för att ta emot gäster.
Högkvalitativa ytbehandlingar och moderna funktioner
Villorna är byggda enligt höga standarder med kvalitetsmaterial och pålitliga varumärken. Funktionerna inkluderar en förstärkt säkerhetsdörr från DIERRE, helt inbyggda garderober och moderna kök utrustade med vitvaror från BOSCH.
Ytterligare specifikationer inkluderar ett aerotermiskt system för varmvatten, motoriserade fönsterluckor och en automatiserad infartsgrind. Varje detalj har noggrant övervägts för att erbjuda komfort, effektivitet och bekvämlighet.
Förstklassigt läge på Costa Calida
Los Alcazares erbjuder ett utmärkt läge med enkel tillgång till stränder, golfbanor och transportförbindelser. Mar Menor-stränderna ligger bara 1,5 km bort, medan La Serena Golf ligger inom gångavstånd.
Andra viktiga avstånd inkluderar Murcia Corvera flygplats 35 km, Cartagena 25 km, staden Murcia 50 km och Alicante flygplats 90 km.
Perfekt investering eller möjlighet till semesterbostad
Dessa nybyggda villor erbjuder en sällsynt möjlighet att äga en modern fastighet i ett utmärkt läge nära både havet och golf.
Kontakta oss idag för mer information eller för att boka en visning och säkra din nya villa i Los Alcazares.
410