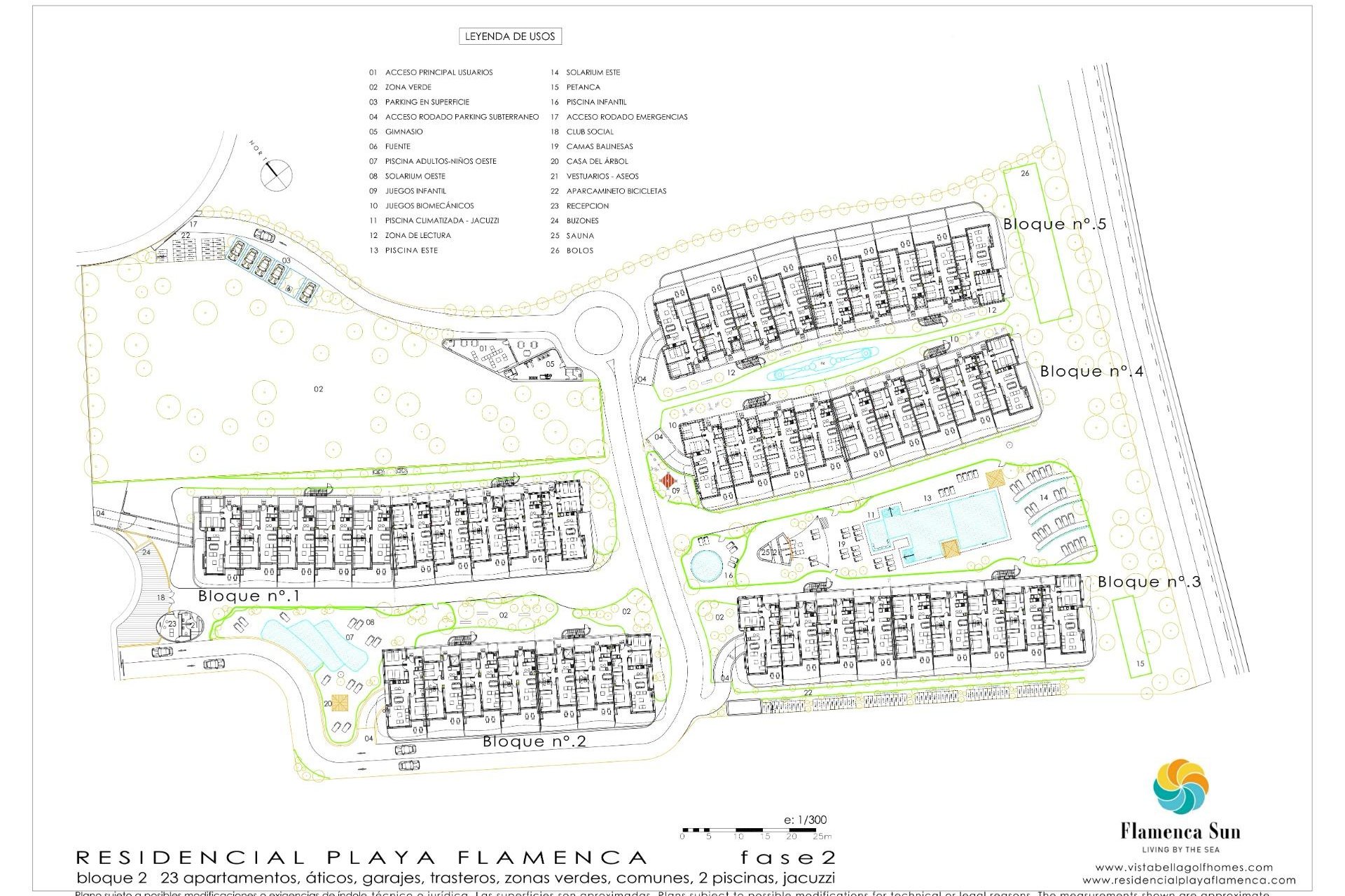
Upptäck ett exklusivt nyproduktionsprojekt i Playa Flamenca, Orihuela Costa, utformat för dig som söker ett modernt och välbeläget boende med stor potential både för eget bruk och som investering på Costa Blanca. Projektet utvecklas i flera etapper, vilket ger möjlighet att förvärva nyproducerade bostäder i olika byggfaser med god värdeutvecklingspotential.. . Bostadsområdet har redan ett första hus som är färdigställt och helt slutsålt, med gemensam pool i drift. Hus 2 är i slutfasen, hus 3 är under uppförande (invändiga väggar), och hus 4 — där dessa bostäder ingår — befinner sig i grund- och stomfas. Detta gör hus 4 till ett mycket intressant alternativ för den som vill köpa till ett konkurrenskraftigt pris i ett område under stark utveckling.. . Bostäderna har en modern, funktionell och ljus design med rymliga terrasser som är perfekta för att njuta av det medelhavska klimatet året runt. De finns med 2 eller 3 sovrum och erbjuder välplanerade ytor, öppna kök som kan anpassas efter egen smak samt kvalitetsmaterial som PVC-fönster med dubbelglas, klinkergolv och förinstallation av luftkonditionering. Parkeringsplats och förråd ingår.. . När projektet är färdigställt kommer området att erbjuda flera gemensamma pooler, gröna trädgårdsområden och ytor för avkoppling, allt inom ett privat och tryggt bostadsområde.. . Läget är en av de stora fördelarna, endast 500 meter från stranden och nära alla bekvämligheter. Det ligger nära Mercadona och Centro Comercial La Zenia Boulevard samt omges av restauranger, butiker, nöjen, vårdcentraler, skolor och golfbanor.. . Sammanfattningsvis en bostad som kombinerar läge, kvalitet och investeringspotential på bästa sätt.. . Pris: 395 000 €*. Skatter och köpkostnader ingår INTE (enligt gällande lagstiftning).. En detaljerad specifikation av tillkommande kostnader lämnas före bokning.. *Priset kan innehålla skrivfel; vänligen kontrollera med byggherren.