Nybyggnation » Lägenhet » Jávea » Pue

Lägenhet · Nybyggnation Jávea, Pueblo

Egenskaper

Lägenhet · Nybyggnation Jávea, Pueblo

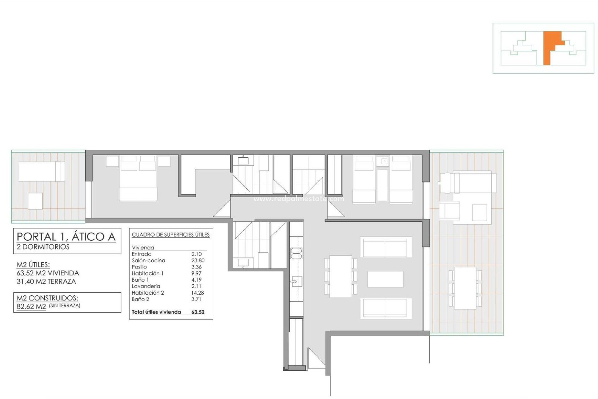
  • Meter 82m2
  • Sovrum 2
  • Badrum 2
  • Pool Ja
Sovrum:2
Badrum: 2
Byggd: 82m2
Användbar: 63m2
Pool: Ja
Avstånd till strand: 1300 Mts.
Energi~~POS=TRUNC: A
Nära busslinje
Gemensam pool
Gated
Antal parkeringsplatser: 1
Nära skolor
Nära Commercial Center
Hiss/hiss
Plats: Kustnära, Urbanisering
Dubbelrum: 2
Användbart byggutrymme: 63 Msq.
Terrass: 31 Msq.
Strand: 1300 meter
Parkeringsplats
Förvaring / Trastero

Beskrivning

Karta

Börja ett nytt liv

Responsable del tratamiento: Red Palm Estate SL, Finalidad del tratamiento: Gestión y control de los servicios ofrecidos a través de la página Web de Servicios inmobiliarios, Envío de información a traves de newsletter y otros, Legitimación: Por consentimiento, Destinatarios: No se cederan los datos, salvo para elaborar contabilidad, Derechos de las personas interesadas: Acceder, rectificar y suprimir los datos, solicitar la portabilidad de los mismos, oponerse altratamiento y solicitar la limitación de éste, Procedencia de los datos: El Propio interesado, Información Adicional: Puede consultarse la información adicional y detallada sobre protección de datos Aquí.
Red Palm Estate
WhatsApp