Nybyggda lägenheter 100 meter från havet i Rincon de la Victoria, Torre de Benagalbon
Modernt bostadsområde på Costa del Sol
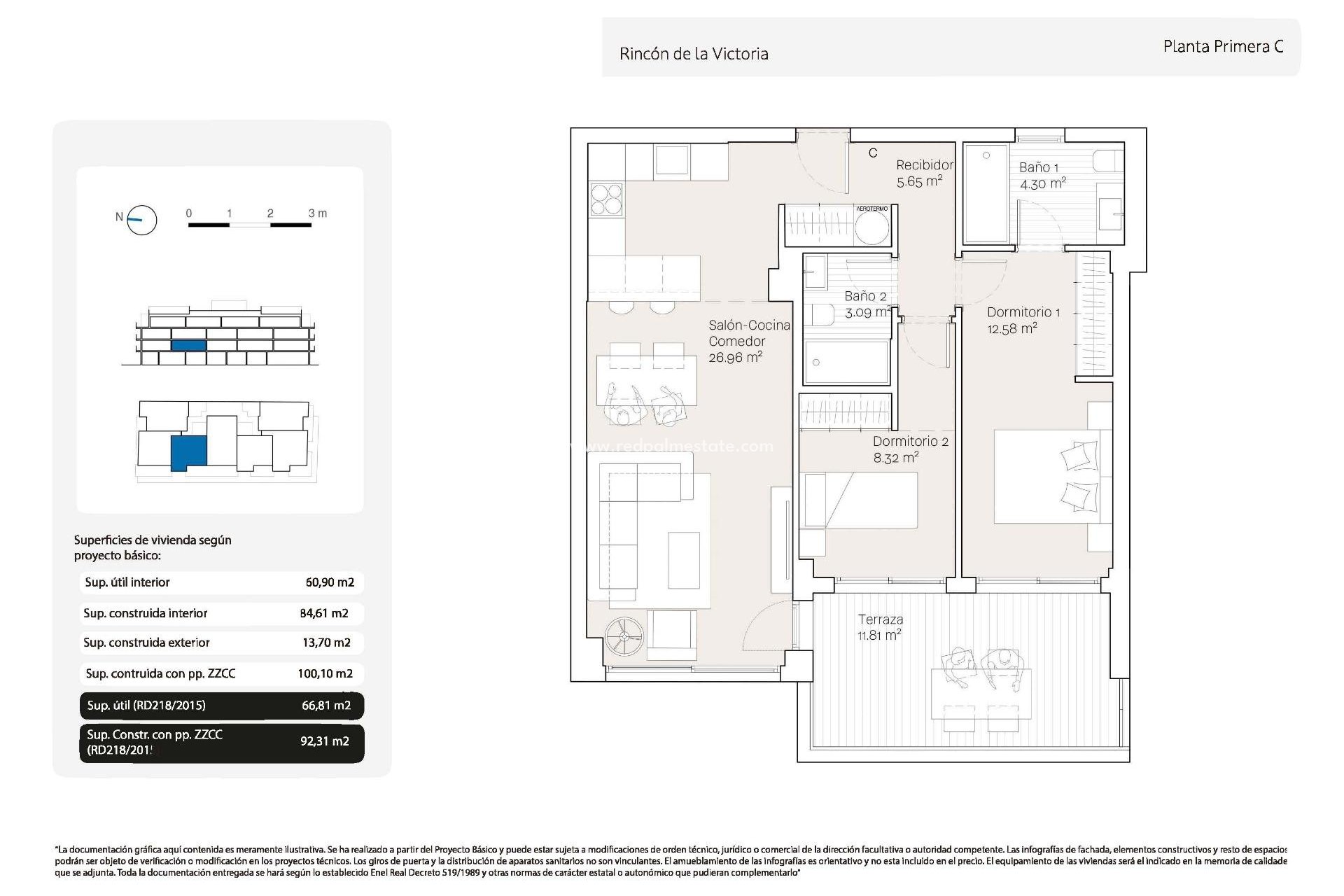
Upptäck detta exklusiva nybyggda bostadsområde i Torre de Benagalbon, ett kustområde i Rincon de la Victoria. Beläget bara 100 meter från havet erbjuder området 28 moderna lägenheter och takvåningar med 1, 2 och 3 sovrum, utformade för att njuta av medelhavslivet i en privilegierad miljö.
Rincon de la Victoria är en traditionell kuststad på östra Costa del Sol, känd för sin avslappnade atmosfär, långa stränder, strandpromenad och utmärkta lokala gastronomi. Med alla dagliga tjänster, skolor, idrottsanläggningar och shoppingområden i närheten är det en idealisk plats för både permanent boende och semesterbostäder. Staden Malaga ligger bara 20 minuter bort och erbjuder kulturella attraktioner, shoppingdistrikt och en livlig småbåtshamn.
Ljusa lägenheter med rymliga terrasser
Den arkitektoniska designen följer en ren och modern estetik som förstärker det naturliga ljuset och de öppna bostadsutrymmena. De flesta bostäderna har generösa utomhusterrasser, vilket skapar en sömlös koppling mellan interiör och exteriör.
Interiörens layout är noggrant utformad för att ge bekväma och funktionella utrymmen. Takvåningarna har ett privat solarium, perfekt för att sola eller njuta av havsutsikten i total avskildhet.
Varje bostad har en privat parkeringsplats och förråd, vilket ger extra bekvämlighet och mervärde.
Kvalitetsdetaljer och energieffektiva system
Bostadsområdet är utrustat med moderna installationer för att säkerställa komfort och effektivitet, inklusive elektriska fönsterluckor, videointercomsystem och aerotermisk teknik för varmvatten och klimatkontroll. Köken levereras omöblerade, med möjlighet att välja olika ytbehandlingar mot en extra kostnad, så att köparna kan anpassa sin bostad efter eget tycke.
Boende kan njuta av en gemensam takpool med solarium och vacker havsutsikt, en idealisk plats för att koppla av under Costa del Sols sol.
Utmärkt läge och avstånd
Strand 0,1 km
Málagas hamn 20 km
Málagas centrum 20 km
Málagas flygplats 30 km
Anoreta Golf 5 km
Säkra ditt hem vid havet
Detta nybyggnadsprojekt i Rincón de la Victoria erbjuder modern design, närhet till havet och utmärkta förbindelser till Málaga och resten av Costa del Sol. Kontakta oss idag för att få mer information eller för att boka en visning av dessa exklusiva lägenheter bara några steg från stranden.
410