Nybyggnation » Lägenheter » rincon de la vi

Lägenheter · Nybyggnation rincon de la victoria, Torre de Benagalbón

Egenskaper

Lägenheter · Nybyggnation rincon de la victoria, Torre de Benagalbón

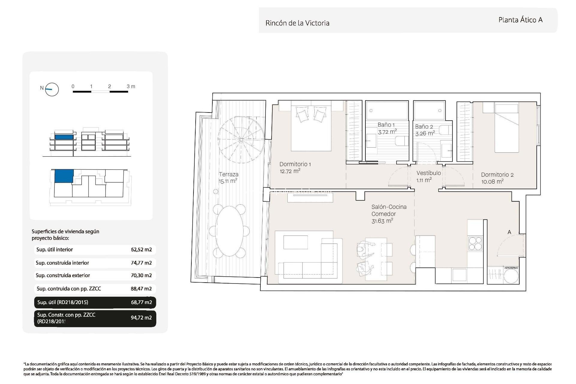
  • Meter 94m2
  • Sovrum 2
  • Badrum 2
  • Pool Ja
Sovrum:2
Badrum: 2
Byggd: 94m2
Användbar: 68m2
Pool: Ja
Avstånd till strand: 100 Mts.
Energi~~POS=TRUNC: B
Nära busslinje
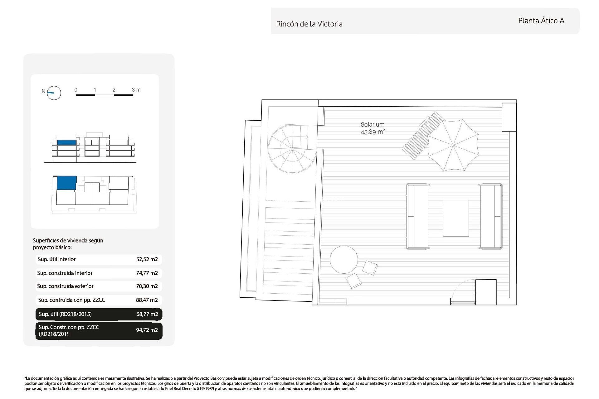
Solarium: Ja
Gemensam pool
Gated
Antal parkeringsplatser: 1
Nära skolor
Nära Commercial Center
Hiss/hiss
Luftkonditionering: Förinstallerad
Dubbelrum: 2
Användbart byggutrymme: 68 Msq.
Plats: Kustnära
Strand: 100 meter
Terrass: 60 Msq.
Parkeringsplats
Förvaring / Trastero

Beskrivning

Karta

Börja ett nytt liv

Responsable del tratamiento: Red Palm Estate SL, Finalidad del tratamiento: Gestión y control de los servicios ofrecidos a través de la página Web de Servicios inmobiliarios, Envío de información a traves de newsletter y otros, Legitimación: Por consentimiento, Destinatarios: No se cederan los datos, salvo para elaborar contabilidad, Derechos de las personas interesadas: Acceder, rectificar y suprimir los datos, solicitar la portabilidad de los mismos, oponerse altratamiento y solicitar la limitación de éste, Procedencia de los datos: El Propio interesado, Información Adicional: Puede consultarse la información adicional y detallada sobre protección de datos Aquí.
Red Palm Estate
WhatsApp