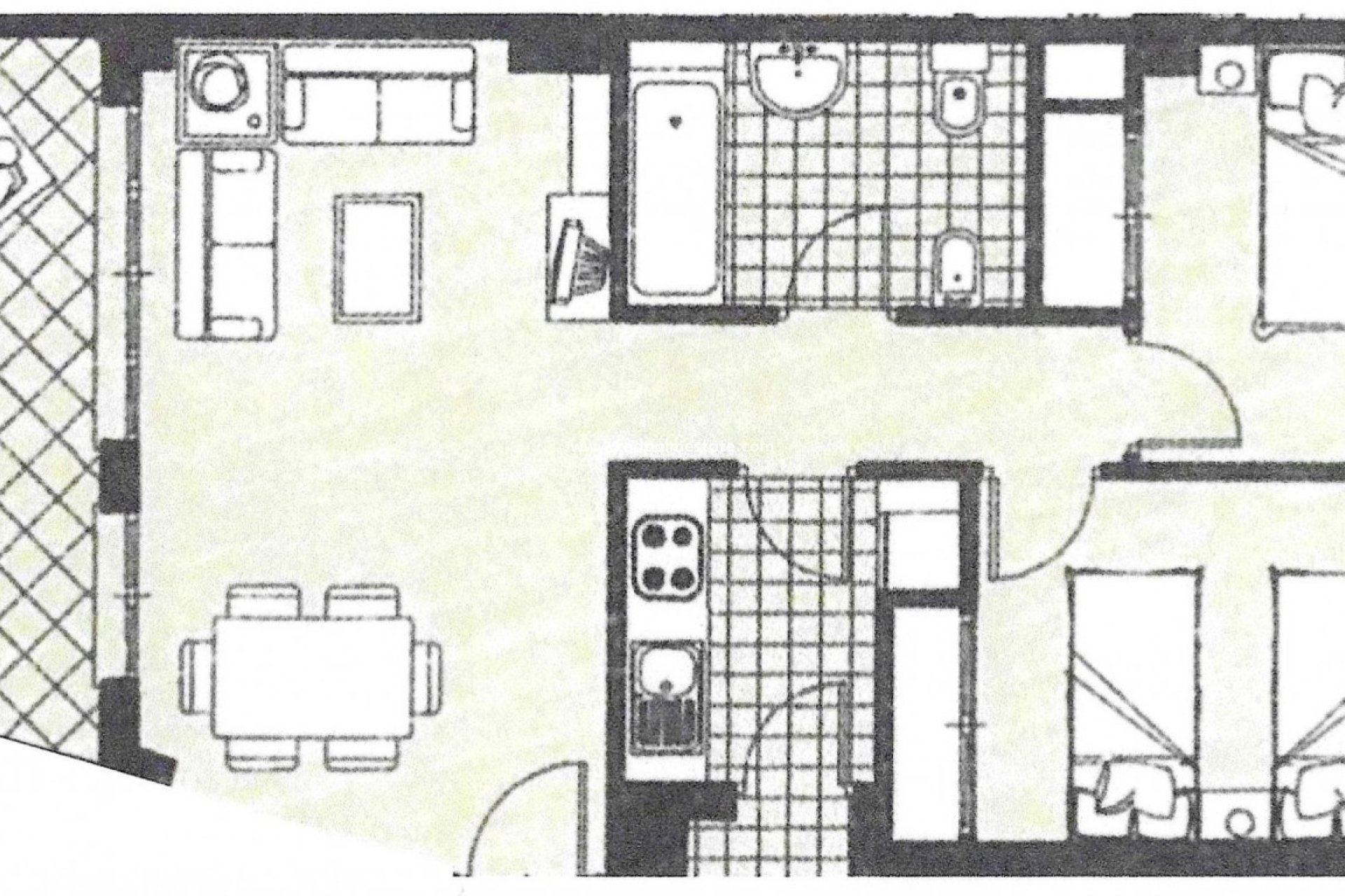
Två sovrum, ett badrum, golflägenhet vid frontlinjenDenna lägenhet på första våningen ligger i fas 4 av denna 18-håls golfanläggning designad av Jack Niklaus och ligger ungefär tio minuters promenad från anläggningens centrum med restaurang, bar, stormarknad, kafé och vackra trädgårdar som tillhör familjen Riquelmes hacienda, varifrån anläggningen fått sitt namn.Det finns 19 pooler på resorten, varav den närmaste ligger bara ett stenkast bort.Lägenheten kommer in i vardagsrummet/matsalen med stora skjutdörrar som leder ut på terrassen som har omgärdats med skjutdörrar som möjliggör användning året runt och är kaklad för att matcha fastighetens insida.Det finns vacker utsikt över och nerför golfbanan till bergen i fjärran.Hallen leder till de två sovrummen. Varje sovrum har inbyggda dubbla garderober med skjutdörrar som erbjuder gott om förvarings- och lådutrymme samt fristående franska balkonger.Köket består av ett urval av underskåp, bänkskivor och överskåp och är utrustat med ugn, spishäll, köksfläkt, tvättmaskin, diskmaskin och kyl/frys.Badrummet består av toalett, bidé, kommod med handfat och spegel ovanför. Det finns en hörnduschkabin och gott om plats för att omvandla denna till en duschkabin i full bredd. Det är en av de större badrumsdesignerna i Hacienda Riquelme.Denna lägenhet lämpar sig perfekt för modernisering till en öppen planlösning i amerikansk stil enligt "Remodelled Apartment" på vår webbplats.Den vänliga och typiska spanska byn Sucina med sina barer, restauranger och kyrktorget ligger bara några minuter bort med bil.Murcias internationella flygplats ligger cirka 20 minuter bort med bil och Alicantes flygplats cirka 1 timme och 15 minuter med bil.De historiska städerna Murcia och Cartagena ligger båda cirka 40 minuter bort med bil.Costa Calidas stränder som löper längs Medelhavskusten ligger bara 20 minuters bilresa bort.Besök GALLERIET på vår webbplats för att se fotografier från platser att besöka i närområdet och bortom.