Nybyggnation » Villa » Polop » Urbani

Villa · Nybyggnation Polop, Urbanizaciones

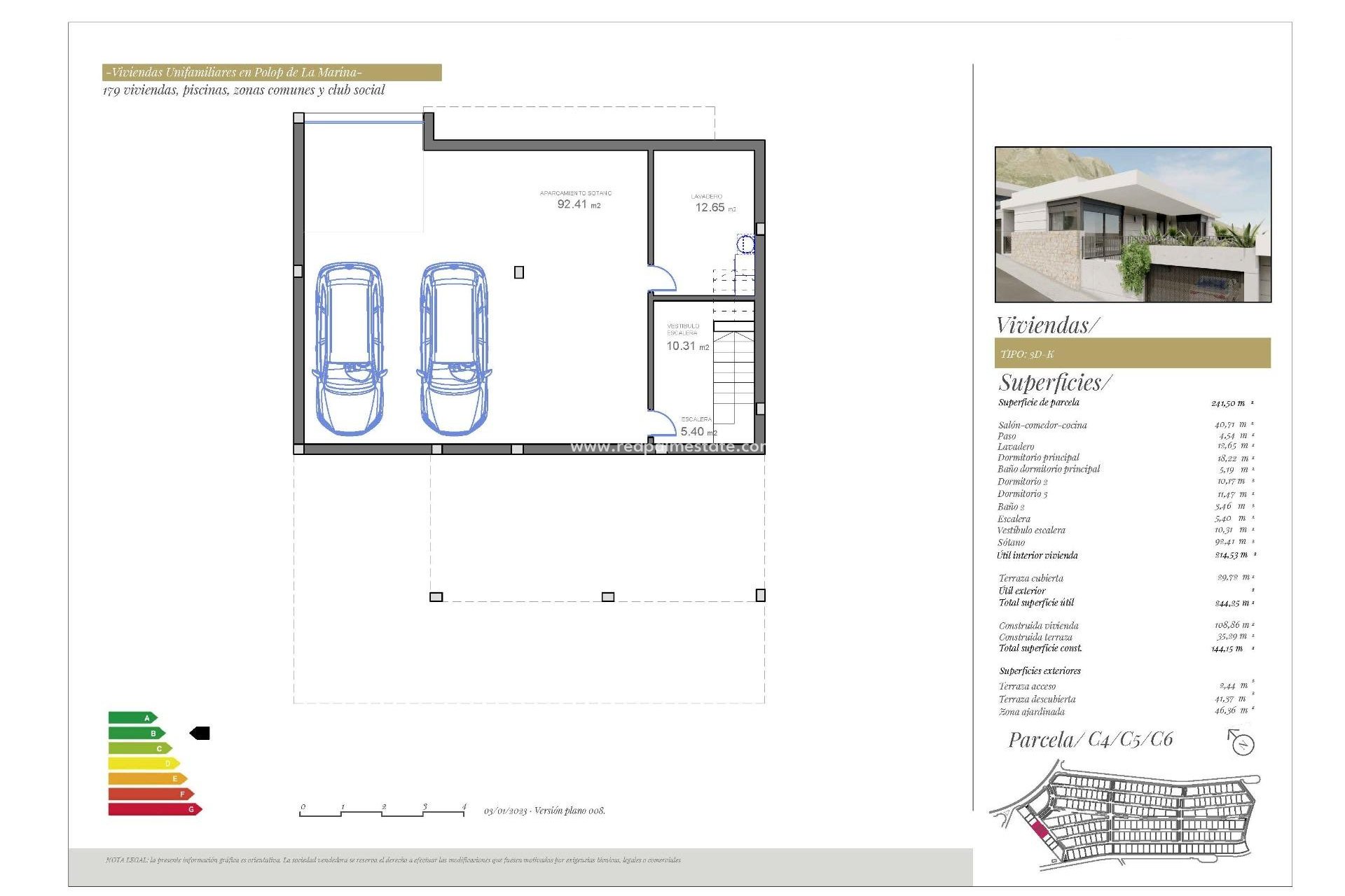
Egenskaper

Villa · Nybyggnation Polop, Urbanizaciones

  • Meter 200m2
  • Tomt 241m2
  • Sovrum 3
  • Badrum 2
  • Pool Ja
Sovrum:3
Badrum: 2
Byggd: 200m2
Användbar: 108m2
Tomt: 241m2
Pool: Ja
Avstånd till strand: 8500 Mts.
Energi~~POS=TRUNC: X
Trädgård
Privat pool
Solarium: Ja
Gemensam pool
Nyckeln är klar
Gated
Antal parkeringsplatser: 1
Utsikt: Havet
Nära skolor
Nära Commercial Center
Dubbelrum: 3
Luftkonditionering: Förinstallerad
Underbyggnad / källare
Nära träd
Strand: 8500 meter
Plats: Landsbygd, Berg, Urbanisering
Parkeringsplats
Terrass: 113 Msq.
Användbart byggutrymme: 108 Msq.

Beskrivning

Karta

Börja ett nytt liv

Responsable del tratamiento: Red Palm Estate SL, Finalidad del tratamiento: Gestión y control de los servicios ofrecidos a través de la página Web de Servicios inmobiliarios, Envío de información a traves de newsletter y otros, Legitimación: Por consentimiento, Destinatarios: No se cederan los datos, salvo para elaborar contabilidad, Derechos de las personas interesadas: Acceder, rectificar y suprimir los datos, solicitar la portabilidad de los mismos, oponerse altratamiento y solicitar la limitación de éste, Procedencia de los datos: El Propio interesado, Información Adicional: Puede consultarse la información adicional y detallada sobre protección de datos Aquí.
Red Palm Estate
WhatsApp