NYBYGGDA VILLOR I LA NUCIA
Nybyggda bostadsområden med bekväma och lyxiga villor med privata pooler i La Nucia.
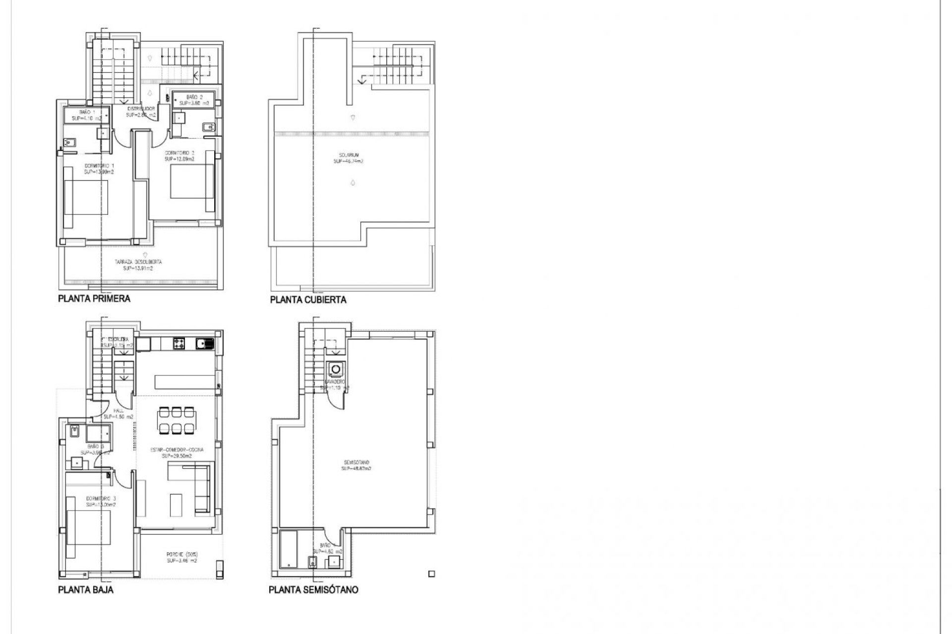
Villorna består av 3 stora dubbelrum med inbyggda och fodrade garderober, ett rum ligger på bottenvåningen och de andra två på första våningen.
Den består av 4 helt färdiga badrum med glasskärmar, porslinstoaletter och termostatkranar i duscharna, ett på första våningen, ett annat i garaget och de andra 2 en suite i rummen på första våningen.
Ljust vardagsrum med stora fönster som ger tillgång till den privata tomten med pool och konstgräs där du kan njuta och koppla av.
Fullt utrustat amerikanskt kök med vägg- och underskåp, högklassiga vitvaror och en ö med underskåp, SILESTONE-bänkskiva med inbyggd diskbänk i rostfritt stål och designad fläktkåpa i rostfritt stål.
Installation av luftkonditionering och uppvärmning genom AEROTHERMAL kanaler med 2 oberoende maskiner (dubbel zon).
Komfort och design PORCELANOSA ger exklusiva ytbehandlingar, såsom flytande golv, naturstensgolv och stengods av högsta kvalitet. hela villan har inre och yttre LED-belysning och elektriska fönsterluckor.
Residential ligger i ett exklusivt område av stor kvalitet och med alla bekvämligheter; terrass, solarium, privat garage för 2 fordon, trädgårdsområden, urbanisering, pool och allt du kan tänka dig.
Bostad som är engagerad i miljön, utrustad med solpaneler för produktion av tappvarmvatten, LED-belysning och THERMAL-ACOUSTIC isolering.
La Nucía är en kommun i comarca Marina Baixa i Alicante. Den gränsar till kommunerna Altea, Callosa d'En Sarrià, Benidorm, Polop och L'Alfàs del Pi.
La Nucia ligger i en fruktdal mellan Benidorm och Callosa d'En Sarrià, 3 km från Alteas kust. Stadskärnan ligger på en udde med utsikt över Medelhavet, 51 km norr om Alicante och 8 km norr om Benidorm.
AVSTÅND:
- Tillträde från motorväg A.
- 5 minuter från Terra Mitica.
- 5 minuter från skolan ELIANS.
- 5 minuter från stormarknader, kaféer och alla typer av tjänster.
- 10 minuter från Benidorm Beach.
- 15 minuter från Playa del Albir.
- 20 minuter från slottet Guadalest.
- 40 km från flygplatsen Alicante-Elche.
410