Nybyggda bostäder bara 200 meter från stranden i Puerto de Mazarrón
Exklusivt kustliv i Costa Cálida
Vi presenterar ett nytt bostadsområde med moderna bostäder i Puerto de Mazarrón, beläget bara 200 meter från den vackra Playa Negra. Beläget i ett av de mest eftertraktade kustområdena i Murcia-regionen, erbjuder detta projekt en exceptionell möjlighet att njuta av medelhavslivet nära havet, viktiga bekvämligheter och natursköna omgivningar.
Puerto de Mazarrón är känt för sina fantastiska stränder, kristallklara vatten, charmiga småbåtshamn och avslappnade atmosfär. Med utmärkta tjänster, friluftsmöjligheter och ett varmt klimat året runt är det en idealisk destination för både permanent boende och semesterresor.
Modern design och funktionella planlösningar
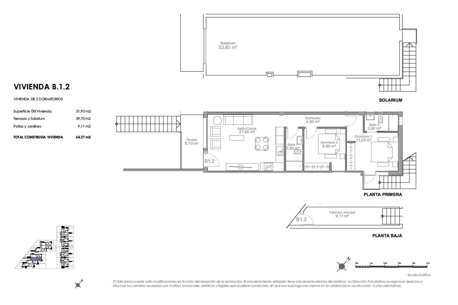
Detta exklusiva bostadsområde består av 30 moderna bostäder med 2 sovrum och 1 eller 2 badrum, noggrant utformade för att erbjuda komfort, stil och effektivitet. Det låga komplexet omfattar lägenheter på bottenvåningen med privata terrasser och trädgårdar, samt lägenheter på första våningen med terrasser och privata takterrasser. Husen har privata parkeringsplatser antingen på fastigheten eller inom bostadsområdet.
Lägenheterna är utformade för att maximera det naturliga ljuset, med öppna vardagsrum, stora fönster och exklusiva ytbehandlingar. Den första fasen erbjuder anpassningsbara lägenheter med funktionella planlösningar som kan anpassas efter dina livsstilsbehov.
Bostäderna på bottenvåningen har en privat trädgård, bakgård och parkering på tomten eller gemensam parkering.
Bostäderna på översta våningen har en privat entré på bottenvåningen, terrass på första våningen och solarium på taket, samt tilldelad parkering.
Tillval inkluderar privata pooler på terrasserna på bottenvåningen eller jacuzzier på solariumen.
Högkvalitativa specifikationer
Varje fastighet har
Förstärkt entrédörr
Förinstallation för luftkonditionering
Kompletta badrum med möbler, spegel och duschväggar
Utomhusutrymmen utformade för grillning, pergolor och avkopplingsområden
Detta bostadsområde erbjuder en säker, familjevänlig och etablerad miljö, inom gångavstånd från stormarknader, skolor, sjukvård, parker och stranden.
Utmärkt läge i Puerto de Mazarrón
Avstånd till viktiga sevärdheter
Playa Negra 0,2 km
Mazarrón Marina 2 km
Mazarrón Park Shopping Centre 5 km
Cartagena 35 km
Murcia City 70 km
Murcia Corvera Airport 45 km
Golfbanor Camposol och Hacienda del Álamo 25–35 km
Njut av vattensporter, vandring och cykling i den närliggande Sierra de las Moreras och upptäck det bästa av Costa Cálidas livsstil.
Gör Medelhavet till ditt hem
Missa inte chansen att säkra en nybyggd fastighet bara några steg från stranden i Puerto de Mazarrón. Kontakta oss idag för information om tillgänglighet, detaljer och visningsbokningar.
410