LYXIG NYBYGGD VILLA I MORAIRA
Nybyggd lyxvilla med de bästa kvaliteterna, med gångavstånd till de vackra stränderna och Morairas centrum.
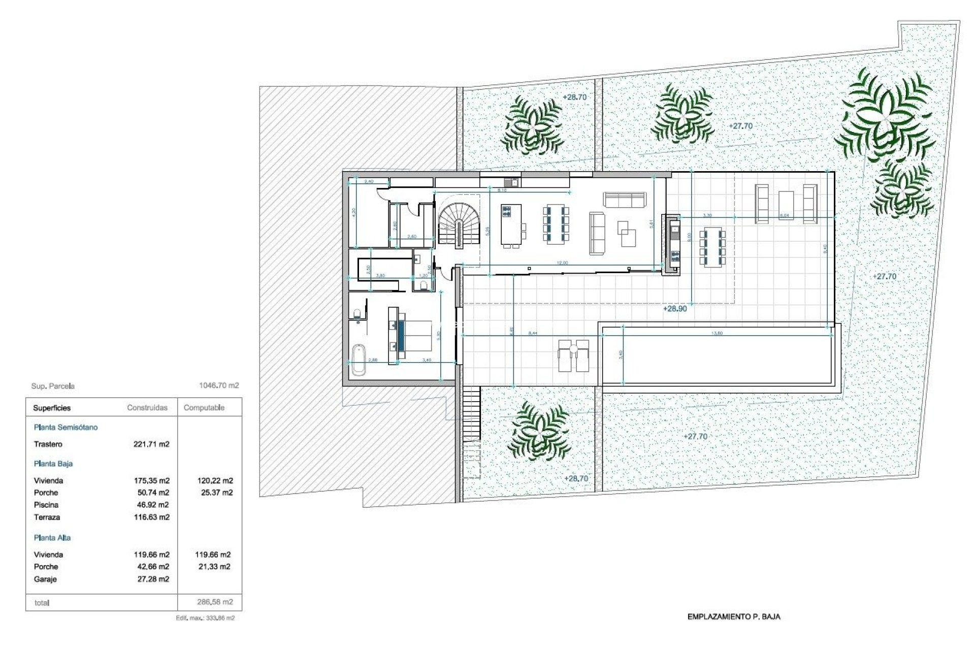
Denna lyxvilla är fördelad på 3 våningar: på bottenvåningen (147,30m2) finns ett stort ljust vardagsrum bredvid det öppna köket med en kokö, en gästtoalett och ett sovrum med eget badrum. På utsidan av denna våning hittar vi poolen och grillplatsen.
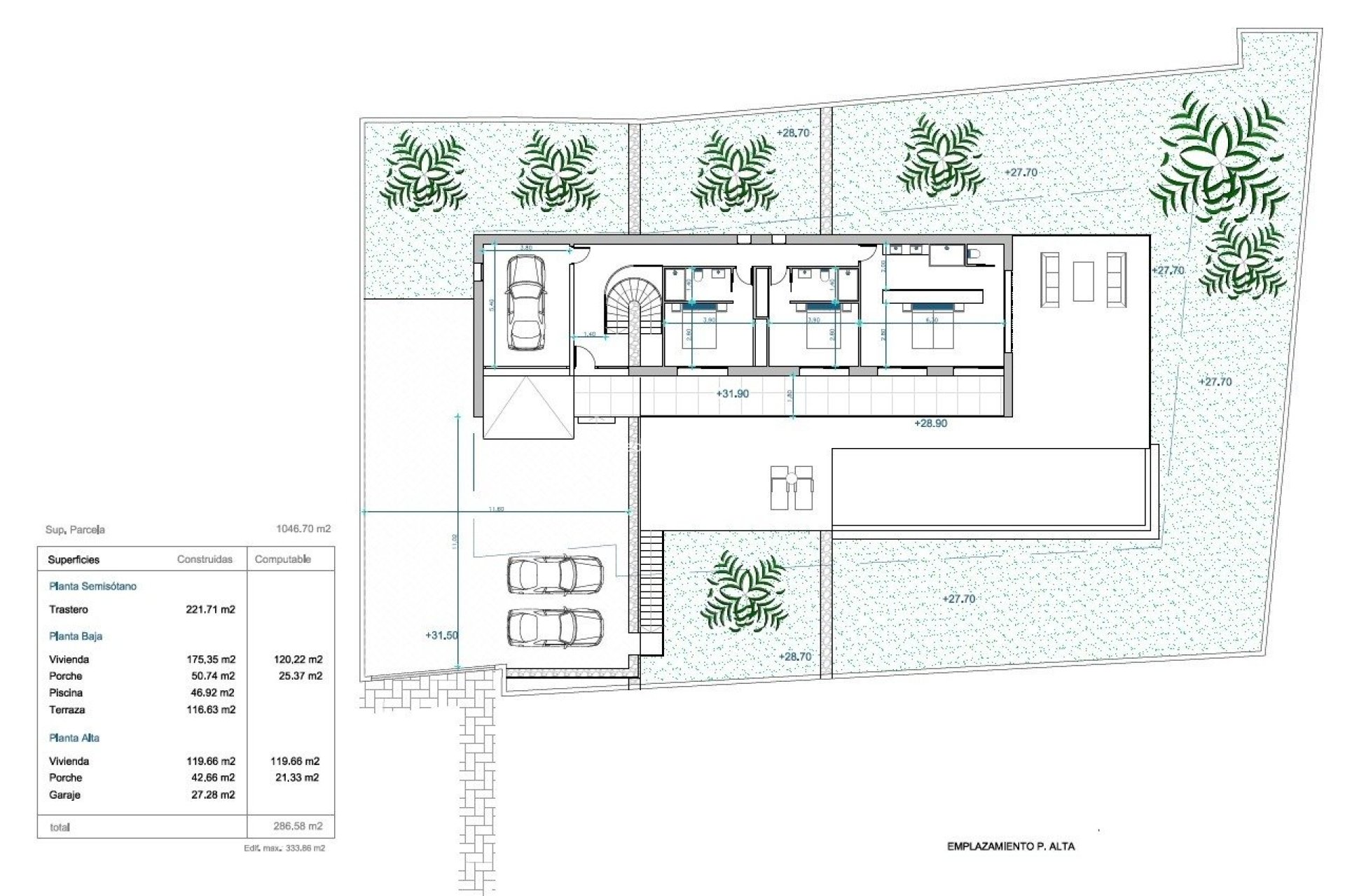
Sedan går vi upp till övervåningen (133,65m2) där vi hittar 3 rymliga rum med sina badrum en suite.
Slutligen källarvåningen, där det leder till ett dubbelgarage och tvättstuga.
EXTRAS: Tekniska snickerier med säkerhetsglas, komplett kök med Siemens-apparater, badrum och kranar av märket Roca, LED-belysning, aerotermiskt system för varmvatten och golvvärme, kanaliserad luftkonditionering (varm och kall) i hela huset, solpaneler, inbyggda garderober, elektriska fönsterluckor, interiört larm, förinstallation av utvändigt larm och övervakningskameror. Rektangulär pool med överflödssystem på 12x4,5 meter, grillplats på 22 m2, tvättstuga, färdig trädgård.
Automatiska dörrar.
Energiklass A.
Sydorientering.
Moraira är en liten stad med bra restauranger, barer och gott om stormarknader runt omkring.
Det finns en mycket trevlig strand precis intill staden som är bra för familjer.
Från strandpromenaden har man en fantastisk utsikt över Penon Ifach på andra sidan bukten i Calpe. Kustvägen dit är väl värd att gå med spektakulära vyer.
Moraira ligger ungefär 1 timme och 15 minuter norrut på A7 från Alicantes flygplats och är ganska lätt att ta sig till. Det är ungefär lika långt eller lite mindre söderut från Valencias flygplats.
410