NYBYGGT BOSTADSOMRÅDE I ESTEPONA
Nybyggt bostadsområde med lägenheter med 2 och 3 sovrum beläget i Estepona där du kommer att njuta av fantastisk havsutsikt.
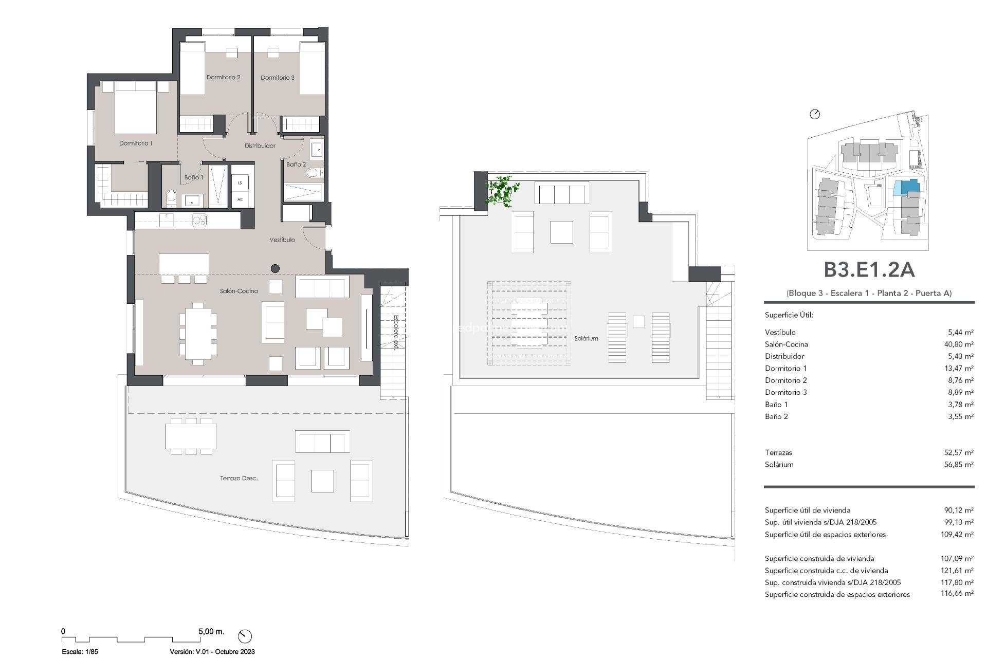
Anläggningen består av 3 trevåningshus med:
- Bottenvåning med trädgård och terrasser
- Mellanvåning
- Takvåningar med solarium och stora terrasser
Bostäderna har underjordisk parkering och förråd.
Residential erbjuder bostäder utformade för att ge maximal komfort till sina ägare. Med ett urval av högkvalitativa material och en mycket noggrann design är detta en utveckling som inte kommer att gå obemärkt förbi.
Det sticker ut för sina rymliga interiörer med stora fönster genom vilka du kan njuta av den underbara havsutsikten och det får också naturligt ljus.
De gemensamma utrymmena har utformats för att ge ett utrymme där man kan njuta och koppla av.
Du kommer att hitta:
- Rymliga grönområden som är idealiska för vila och koppla av från rutiner
- Gemensam pool med avantgardistisk design
- Område för avkoppling
- Utrymme för coworking
- Gym
Med sina kullerstensgator, vitkalkade byggnader med blommor har Estepona en unik charm som har gjort det till ett populärt resmål.
I närområdet finns några av de mest prestigefyllda golfbanorna i Europa, det mest kompletta utbudet av restauranger och hotell, fantastiska stränder och exklusiva kommersiella områden.
Komplexet kännetecknas av sina utmärkta reseförbindelser, eftersom det bara är 5 minuter med bil från Estepona, 10 minuter från Puerto Banús och 20 från Marbella.
410