LYXIGA NYBYGGDA VILLOR MED HAVSUTSIKT I BENAHAVIS
Residential är den perfekta symbiosen mellan lyx och hållbarhet. Projektet har i hög grad påverkats av den ständiga dialogen med naturen för att efterlikna den utan att förändra dess tillstånd. Ett nytt koncept med tyst, lugn och vänlig lyx som inte avstår från hållbarhet finns i vår design.
En uppsättning av 16 premiumvillor belägna söder om El Madroñal, en av de mest eftertraktade platserna i Benahavís. Detta ambitiösa projekt förenar den exceptionella omgivningen med dess oändliga vyer och lugnet i att bo i ett säkert utrymme.
Välkommen till en fristad där varje detalj talar om elegans, där utsikten skapar en duk av lugn, och där säkerhet och läge konvergerar för att definiera kärnan i en verkligt exceptionell levnadsupplevelse.
I detta bostadsområde är vi lyxen som inte märks, men som tydligt finns där. I det här projektet har vi kombinerat utrymme, intimitet och frihet för att bygga något som går utöver ett enkelt hem. Här kommer du att upptäcka en livsstil där det extraordinära inte är att ha allt, utan allt du fortfarande kan leva.
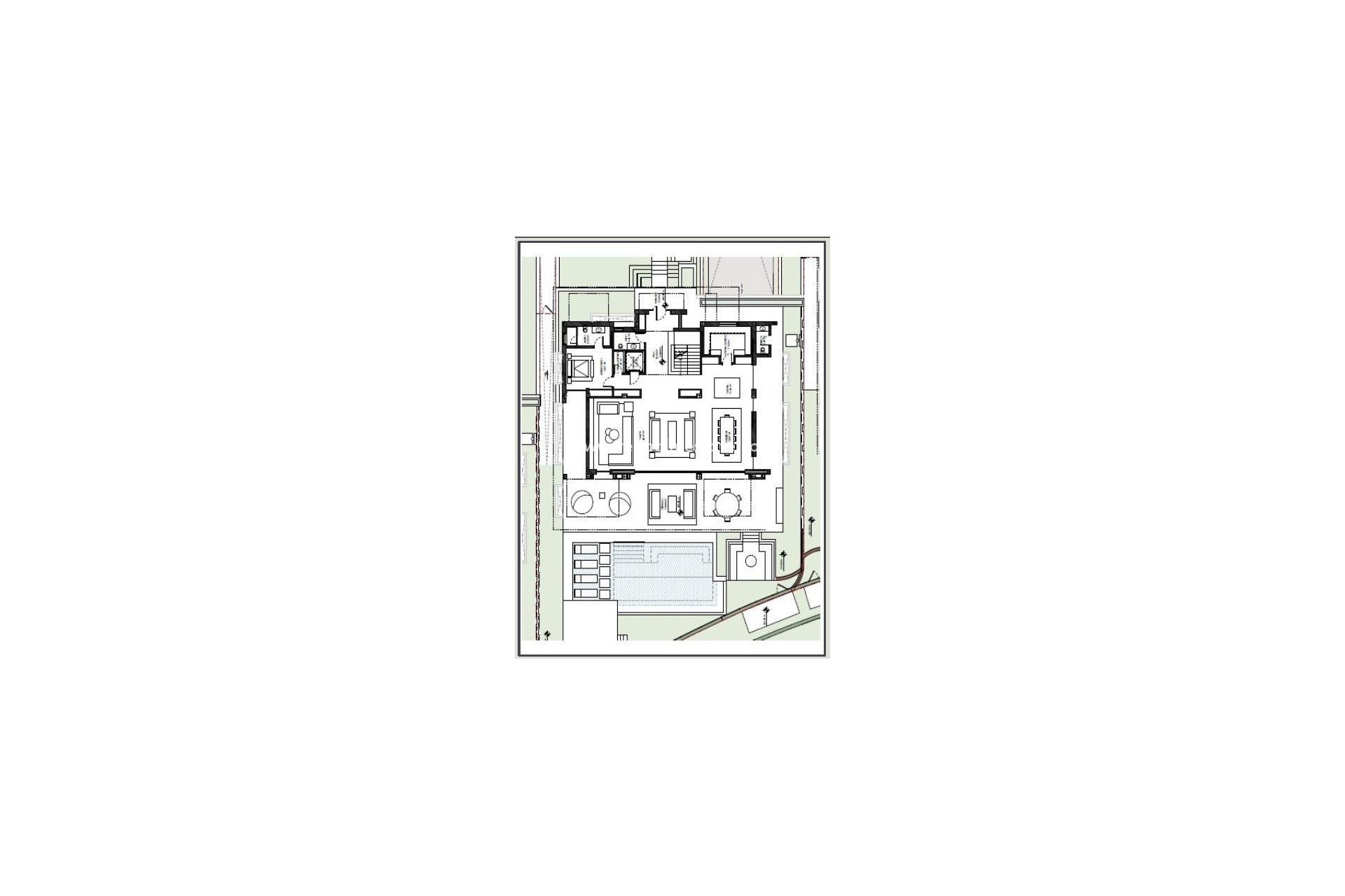
Utrymmen att leva i. Det var så vi tänkte oss det här projektet från början och det var så vi skapade ett harmoniskt scenario med det funktionella och, ännu viktigare, det intima.
Residential är en unik fristad som smälter samman med naturen och inbjuder varje boende att överskrida barriären mellan det naturliga och det beboeliga. En arkitektonisk övning som kan omdefiniera gränserna för design, omfamna landskapet och fånga dess skönhet från insidan och ut.
Utgångspunkten var att bygga hus utöver det vanliga, med högsta kvalitet i detaljerna och en unik personlighet som utmärker dem. Bostädernas själ definieras av en oavbruten koppling till miljön, som om det omgivande naturliga landskapet vore ett konstverk som förhöjer och kompletterar livet i dessa utrymmen.
410