Nybyggnation » Villa » Estepona » El

Villa · Nybyggnation Estepona, El Paraiso Golf

Egenskaper

Villa · Nybyggnation Estepona, El Paraiso Golf

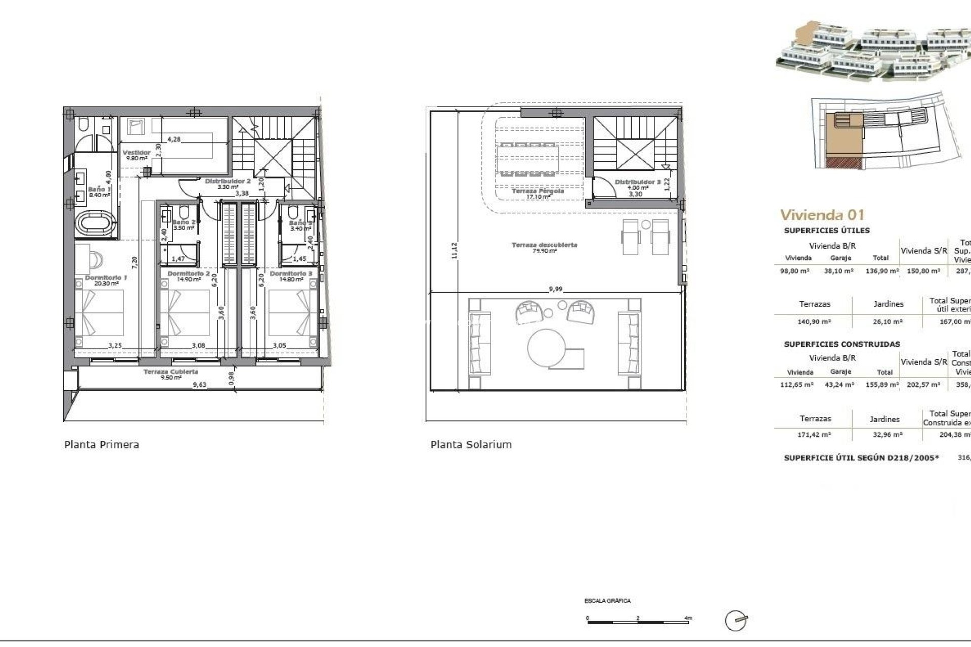
  • Meter 358m2
  • Tomt 26m2
  • Sovrum 4
  • Badrum 4
  • Pool Ja
Sovrum:4
Badrum: 4
Byggd: 358m2
Användbar: 287m2
Tomt: 26m2
Pool: Ja
Avstånd till strand: 2500 Mts.
Energi~~POS=TRUNC: B
Utsikt: Havet
Nära skolor
Nära Commercial Center
Luftkonditionering: Förinstallerad
Antal parkeringsplatser: 2
Underbyggnad / källare
Dubbelrum: 4
Strand: 2500 meter
Plats: Urbanisering
Terrass: 140 Msq.
Användbart byggutrymme: 287 Msq.
Förvaring / Trastero
Parking - Space - Garage - Double Garage
Trädgård
Solarium: Ja
Gemensam pool
Gated
Nära Golf / Golf Resort Property

Beskrivning

Karta

Börja ett nytt liv

Responsable del tratamiento: Red Palm Estate SL, Finalidad del tratamiento: Gestión y control de los servicios ofrecidos a través de la página Web de Servicios inmobiliarios, Envío de información a traves de newsletter y otros, Legitimación: Por consentimiento, Destinatarios: No se cederan los datos, salvo para elaborar contabilidad, Derechos de las personas interesadas: Acceder, rectificar y suprimir los datos, solicitar la portabilidad de los mismos, oponerse altratamiento y solicitar la limitación de éste, Procedencia de los datos: El Propio interesado, Información Adicional: Puede consultarse la información adicional y detallada sobre protección de datos Aquí.
Red Palm Estate
WhatsApp