Nybyggnation » Villa » Aspe » Poligon

Villa · Nybyggnation Aspe, Poligono 19

Egenskaper

Villa · Nybyggnation Aspe, Poligono 19

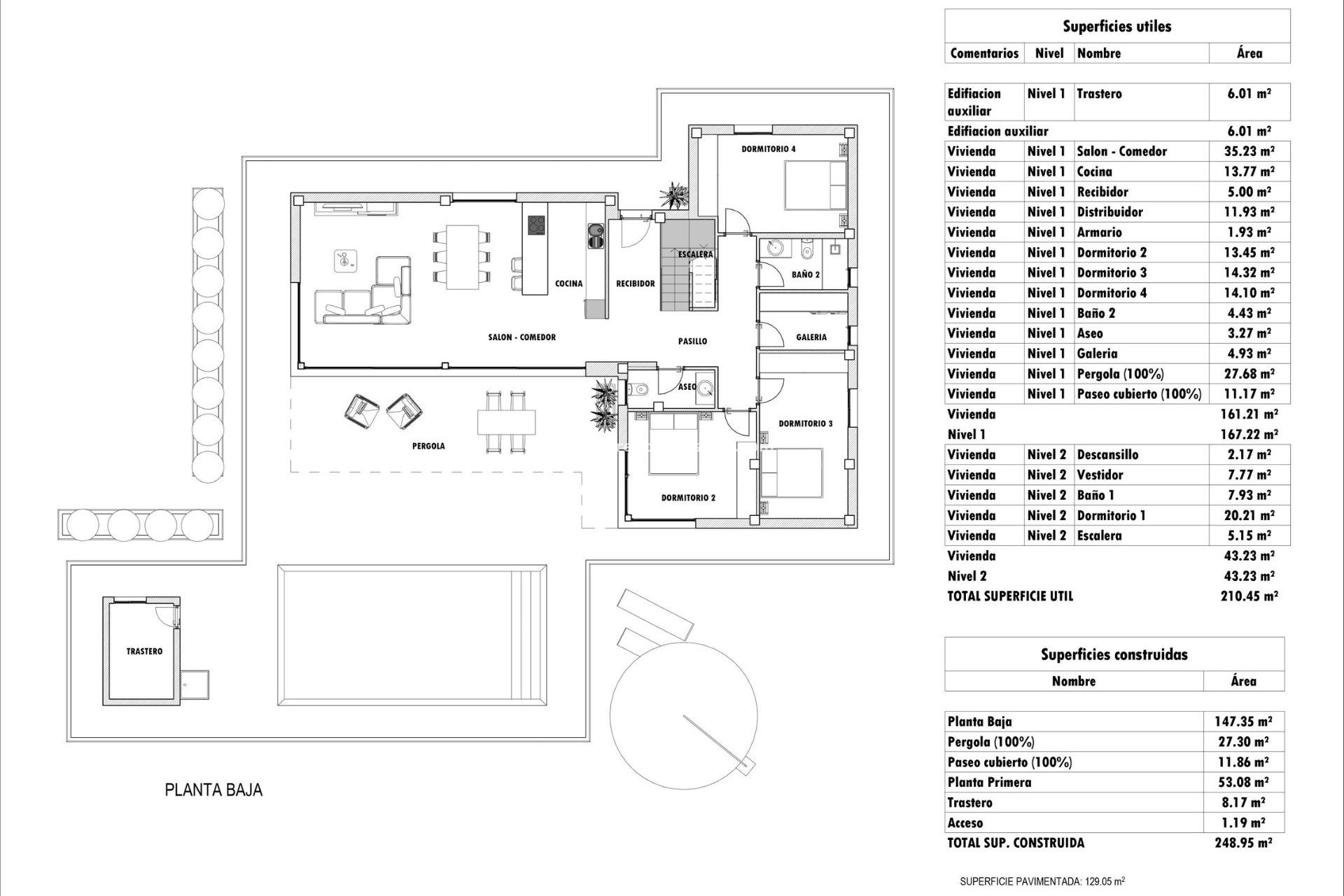
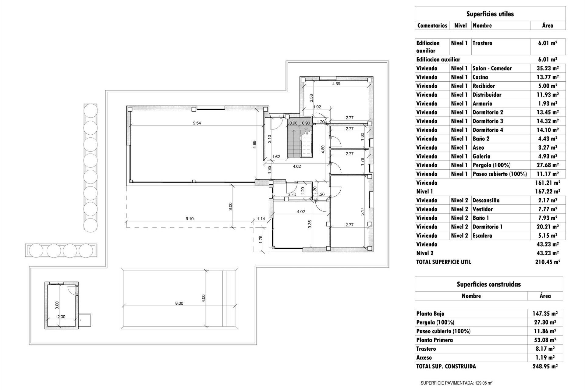
  • Meter 248m2
  • Tomt 13.172m2
  • Sovrum 4
  • Badrum 3
  • Pool Ja
Sovrum:4
Badrum: 3
Byggd: 248m2
Användbar: 210m2
Tomt: 13.172m2
Pool: Ja
Avstånd till strand: 25000 Mts.
Energi~~POS=TRUNC: B
Trädgård
Privat pool
Gated
Antal parkeringsplatser: 1
Nära skolor
Luftkonditionering: Förinstallerad
Dubbelrum: 4
Terrass: 38 Msq.
Plats: Landsbygd, Berg
Parkeringsplats
Strand: 25000 meter
Användbart byggutrymme: 210 Msq.
Förvaring / Trastero

Beskrivning

Karta

Börja ett nytt liv

Responsable del tratamiento: Red Palm Estate SL, Finalidad del tratamiento: Gestión y control de los servicios ofrecidos a través de la página Web de Servicios inmobiliarios, Envío de información a traves de newsletter y otros, Legitimación: Por consentimiento, Destinatarios: No se cederan los datos, salvo para elaborar contabilidad, Derechos de las personas interesadas: Acceder, rectificar y suprimir los datos, solicitar la portabilidad de los mismos, oponerse altratamiento y solicitar la limitación de éste, Procedencia de los datos: El Propio interesado, Información Adicional: Puede consultarse la información adicional y detallada sobre protección de datos Aquí.
Red Palm Estate
WhatsApp