Lyxiga nybyggda lägenheter i västra Marbella – elegant kustliv nära Puerto Banús
Ett landmärke i det nya distriktet Marbella West
Upptäck ett exklusivt bostadsprojekt i Marbella West, ett nyplanerat distrikt som är utformat för att sätta nya standarder för hållbart stadsboende på Costa del Sol. Beläget mellan Nueva Andalucía och San Pedro de Alcántara, ligger detta projekt bara 1,4 km från stranden och en kort bilresa från den prestigefyllda marinan Puerto Banús.
Området Marbella West kombinerar stora grönområden, allmänna tjänster, lyxigt boende, högt rankade skolor och låg bebyggelse som bevarar utsikten och det naturliga ljuset – och erbjuder en livsstil som balanserar sofistikering och lugn.
Exklusiva lägenheter med modern design
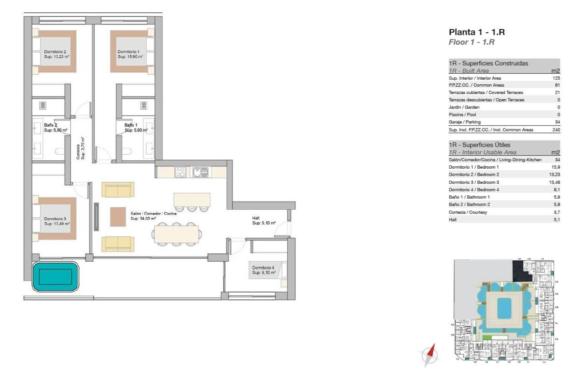
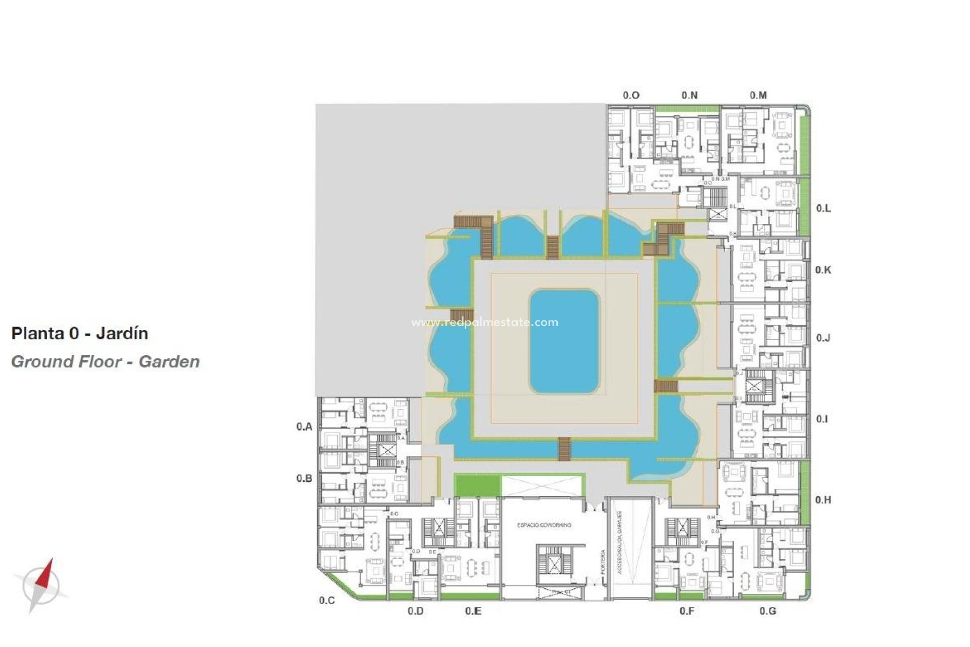
Denna gated community består av 101 nybyggda bostäder, från eleganta studior till rymliga lägenheter med 4 sovrum. Varje bostad är omsorgsfullt utformad för att maximera naturligt ljus och utomhusliv och har öppen planlösning och stora terrasser.
Fastighetstyper:
Lägenheter på bottenvåningen med privata trädgårdar och vissa enheter med pooler i strandstil
Lyxiga takvåningar med panoramautsikt från takterrasser och privata pooler
Alla enheter har högkvalitativa ytbehandlingar och ljusa, rymliga planlösningar
Förstklassiga bekvämligheter i resortstil
Varje del av projektet är skapad för att öka välbefinnandet och komforten. Boende kan njuta av ett brett utbud av lyxiga gemensamma faciliteter, inklusive:
Infinitypool på taket med panoramautsikt
Pool i strandstil med sand på trädgårdsnivå
Uppvärmd inomhuspool och fullt utrustat gym
Spa med bastu och omklädningsrum
Social klubb och coworking-utrymme
24-timmars säkerhet, concierge och reception
Medelhavsinspirerade trädgårdar
Underjordisk parkering med laddstationer för elbilar och privat förråd
Utmärkt läge med bra förbindelser
Projektet har ett strategiskt läge med oslagbar tillgång till Marbellas viktigaste sevärdheter:
Puerto Banús: 4 km
San Pedro de Alcántara: 2 km
Nueva Andalucía: 3 km
La Quinta Golf: 4,5 km
Guadalmina Golf: 5 km
Marbella centrum: 10 km
Málaga flygplats: 60 km (cirka 40 minuter via direkt motorväg)
En smart investering i hjärtat av Costa del Sol
Denna anläggning är mer än bara ett bostadsområde – det är en livsstil. Oavsett om du söker ett åretruntboende, en semesterbostad eller en investering med hög potential, erbjuder denna resort elegans, lugn och bekvämlighet i ett av Marbellas mest lovande nya områden.
Kontakta oss idag för att boka en privat visning och säkra din plats i denna exklusiva nya anläggning.
410