New Build » Apartment » Orihuela Costa &raq

NEW BUILD RESIDENTIAL AT PLAYA FLAMENCA!!! Orihuela Costa, Playa Flamenca

€365.000
Ref. TLRS-99784

Features

NEW BUILD RESIDENTIAL AT PLAYA FLAMENCA!!! Orihuela Costa, Playa Flamenca

NEW BUILD RESIDENTIAL AT PLAYA FLAMENCA!!!

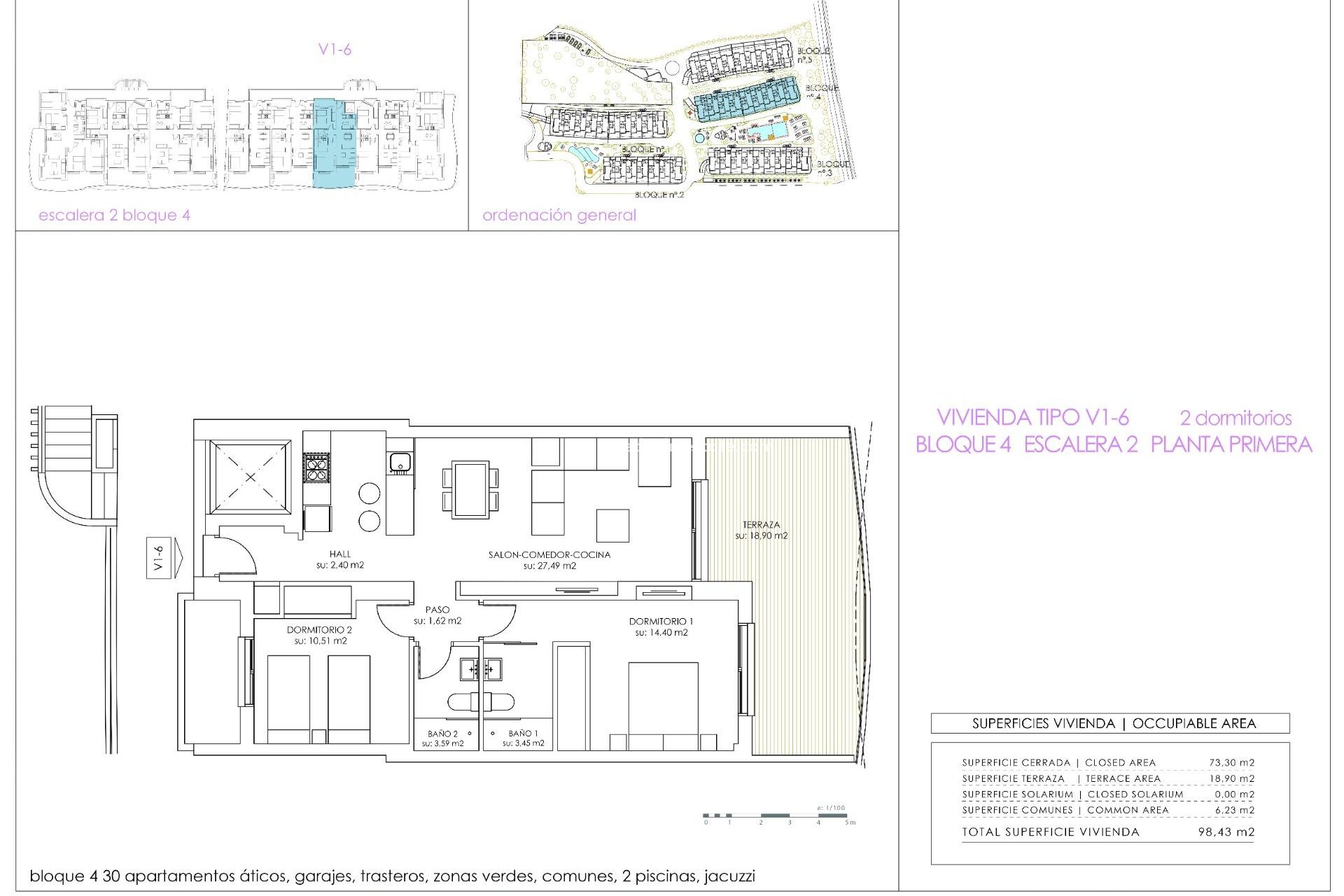
  • Meters 73m2
  • Bedrooms 2
  • Bathrooms 2
  • Pool Yes
Bedrooms:2
Bathrooms: 2
Built: 73m2
Usable: 65m2
Pool: Yes
Distance to beach: 500 Mts.
Energy Rating: B
Near Trees
Useable Build Space: 65 Msq.
Beach: 500 Meters
Parking - Space
Storage / Trastero
Near bus route
Communal pool
Gated
Number of Parking Spaces: 1
Near Schools
Near Commercial Center
Elevator/Lift
Location: Coastal, Urbanisation
Air Conditioning: Pre-Installed
Double Bedrooms: 2
Terrace: 18 Msq.

Description

Map

Start a new life

Make an enquiry

Responsable del tratamiento: Red Palm Estate SL, Finalidad del tratamiento: Gestión y control de los servicios ofrecidos a través de la página Web de Servicios inmobiliarios, Envío de información a traves de newsletter y otros, Legitimación: Por consentimiento, Destinatarios: No se cederan los datos, salvo para elaborar contabilidad, Derechos de las personas interesadas: Acceder, rectificar y suprimir los datos, solicitar la portabilidad de los mismos, oponerse altratamiento y solicitar la limitación de éste, Procedencia de los datos: El Propio interesado, Información Adicional: Puede consultarse la información adicional y detallada sobre protección de datos Aquí.
Red Palm Estate
WhatsApp