Obra nueva » Apartamento » Orihuela Costa &

RESIDENCIAL DE OBRA NUEVA EN PLAYA FLAMENCA !!! Orihuela Costa, Playa Flamenca

Características

RESIDENCIAL DE OBRA NUEVA EN PLAYA FLAMENCA !!! Orihuela Costa, Playa Flamenca

RESIDENCIAL DE OBRA NUEVA EN PLAYA FLAMENCA !!!

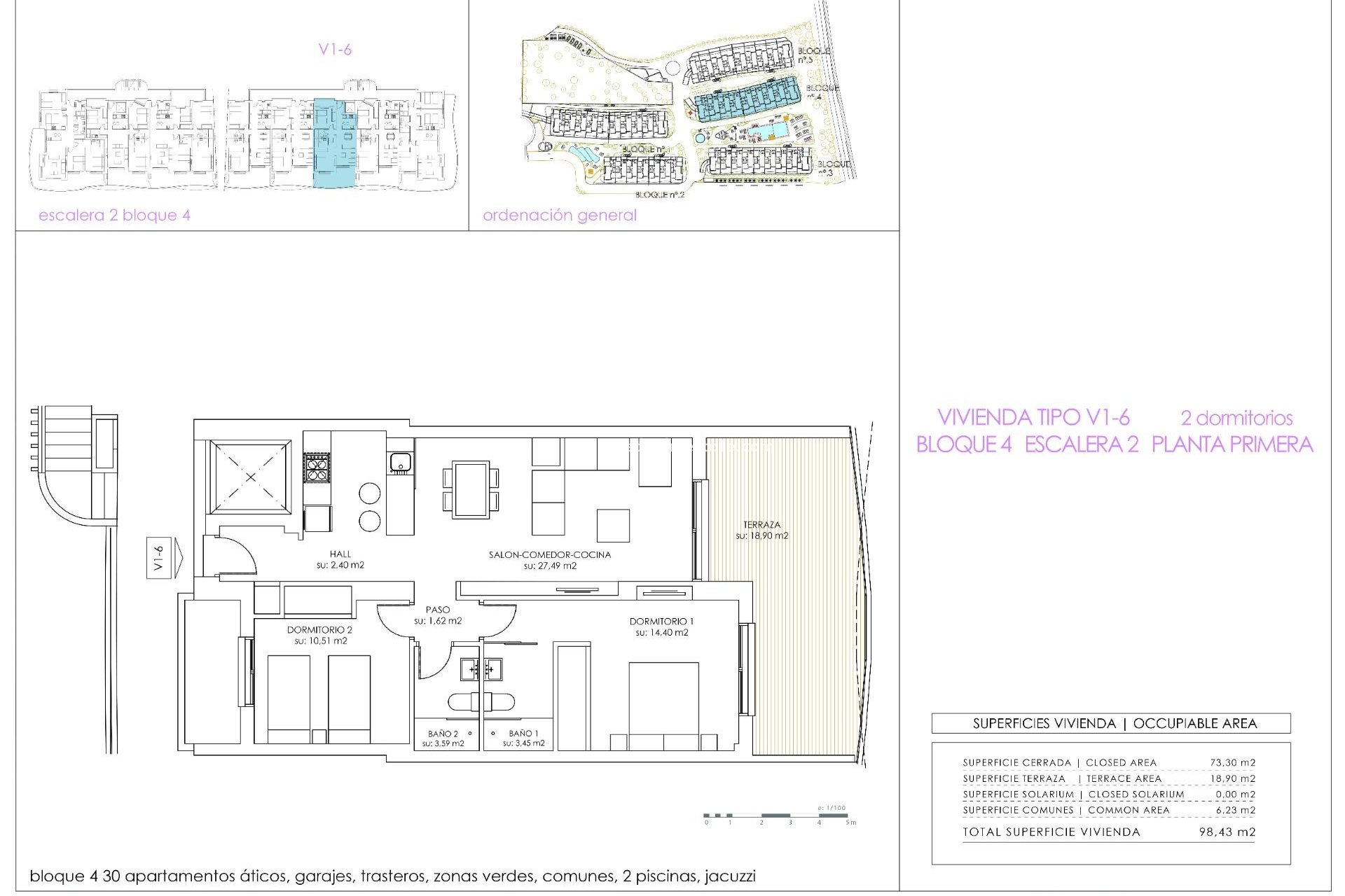
  • Metros 73m2
  • Habitaciones 2
  • Baños 2
  • Piscina
Habitaciones:2
Baños: 2
Construidos: 73m2
Útiles: 65m2
Piscina:
Distancia a la playa: 500 Mts.
Calificación energética: B
Cerca de la ruta del autobús
Piscina comunitaria
Cerrado
Número de plazas de aparcamiento: 1
Cerca de escuelas
Cerca del centro comercial
Ascensor
Ubicación: Costera, Urbanización
Aire Acondicionado: Preinstalado
Habitaciones Dobles: 2
Terraza: 18 M2.
Cerca de árboles
Espacio útil de construcción: 65 Msq.
Playa: 500 Metros
Plaza de aparcamiento
Almacenamiento / Trastero

Descripción

Mapa

Comienza una nueva vida

Realizar una consulta

Responsable del tratamiento: Red Palm Estate SL, Finalidad del tratamiento: Gestión y control de los servicios ofrecidos a través de la página Web de Servicios inmobiliarios, Envío de información a traves de newsletter y otros, Legitimación: Por consentimiento, Destinatarios: No se cederan los datos, salvo para elaborar contabilidad, Derechos de las personas interesadas: Acceder, rectificar y suprimir los datos, solicitar la portabilidad de los mismos, oponerse altratamiento y solicitar la limitación de éste, Procedencia de los datos: El Propio interesado, Información Adicional: Puede consultarse la información adicional y detallada sobre protección de datos Aquí.
Red Palm Estate
WhatsApp