Maisons de ville neuves avec solarium et garage en sous-sol à Bigastro Vega Baja
Programme exclusif de seulement deux maisons modernes
Ce projet immobilier haut de gamme comprend seulement deux maisons de ville dans la paisible commune de Bigastro, située dans la région de Vega Baja, sur la Costa Blanca Sud. Conçues avec un agencement pratique sur plusieurs niveaux, ces maisons allient espace, confort et efficacité énergétique dans un cadre résidentiel bien desservi.
Bigastro est connue pour son atmosphère calme, son caractère espagnol traditionnel et son excellent accès aux villes, plages et services voisins. Elle offre un style de vie détendu tout en étant proche de tout ce dont vous avez besoin au quotidien, ce qui en fait un lieu idéal pour une résidence permanente ou pour les vacances.
Aménagement spacieux sur quatre niveaux
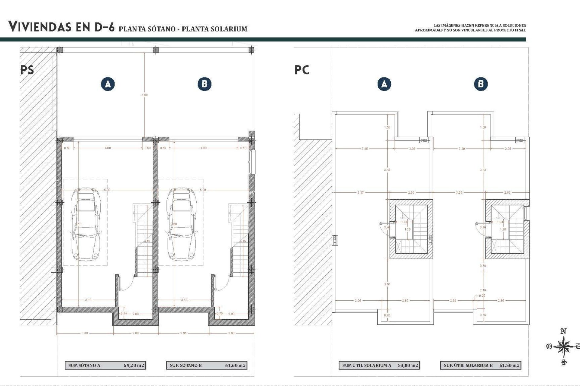
Chaque propriété est répartie entre le sous-sol, le rez-de-chaussée, le premier étage et le solarium sur le toit, offrant ainsi de généreux espaces de vie intérieurs et extérieurs.
Le sous-sol de 59 m² est conçu comme un garage privé avec une porte d'accès motorisée, offrant un parking sécurisé et un espace de rangement supplémentaire.
Au rez-de-chaussée, vous trouverez un salon lumineux et ouvert avec cuisine, des toilettes pour invités et deux terrasses, l'une à l'avant et l'autre à l'arrière, permettant à la lumière naturelle et à la ventilation de circuler tout au long de la journée.
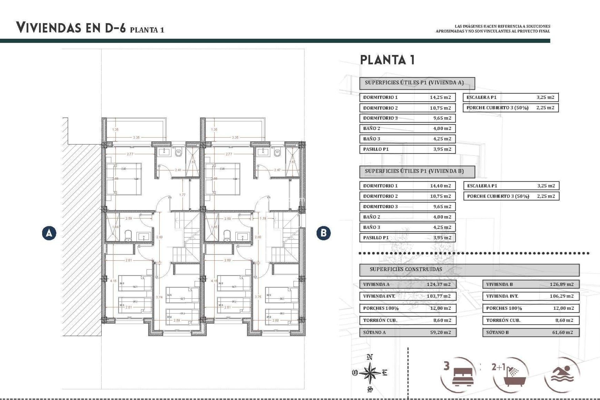
Le premier étage comprend 3 chambres et 2 salles de bains, dont une attenante, ainsi qu'une terrasse supplémentaire. Au dernier étage, un solarium privé d'environ 40 m² sur le toit offre un espace idéal pour se détendre, prendre un bain de soleil ou créer un espace de détente en plein air.
Caractéristiques de qualité et systèmes à haute efficacité énergétique
Ces maisons sont construites avec des matériaux modernes et des détails bien pensés pour assurer confort et efficacité, notamment
Porte d'entrée renforcée
Système aérothermique pour l'eau chaude
Panneaux solaires photovoltaïques
Volets électriques dans le salon et les chambres
Pré-installation de la climatisation gainable
Porte de garage motorisée
Les résidents ont également accès à la piscine commune de l'urbanisation, ce qui ajoute une valeur supplémentaire pour les loisirs et la détente.
Emplacement bien desservi, à proximité des plages et des services
Centre-ville de Bigastro à 0,5 km
Ville d'Orihuela à 5 km
Plages de Guardamar del Segura à 15 km
Centre commercial Zenia Boulevard à 20 km
Hôpital Vega Baja à 10 km
Aéroport international d'Alicante à 48 km
Plusieurs terrains de golf à moins de 15 km
L'autoroute AP 7 toute proche permet de rejoindre rapidement Alicante, Murcie et les villes côtières environnantes.
Une excellente opportunité dans un quartier résidentiel en pleine expansion
Avec ses commerces de proximité, ses écoles, ses installations sportives, ses parcs et ses restaurants, Bigastro est de plus en plus prisée par les acheteurs nationaux et internationaux à la recherche d'une bonne qualité de vie et d'une bonne desserte.
Contactez-nous dès aujourd'hui pour obtenir plus d'informations ou pour organiser une visite de ces maisons de ville neuves exclusives à Bigastro.
410