Promoción con tan solo 2 viviendas adosadas de obra nueva en Bigastro.
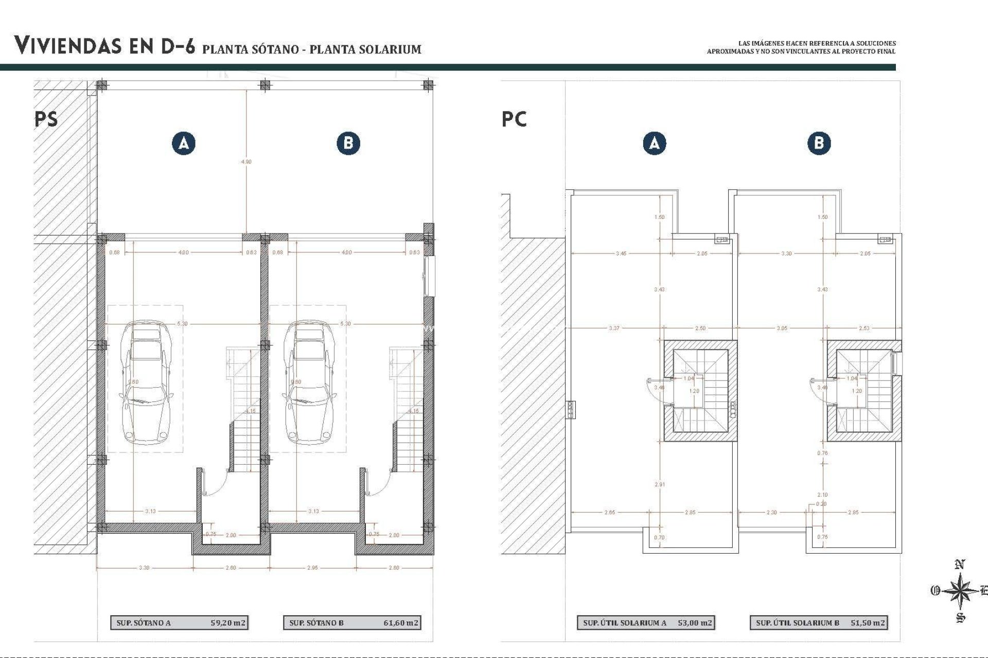
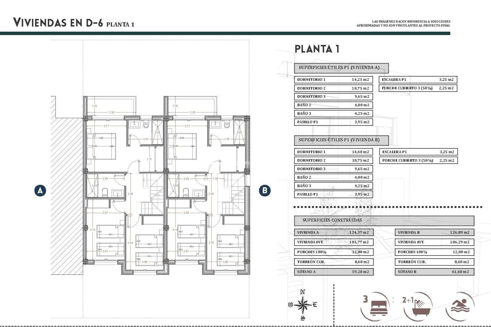
Cada vivienda consta de sótano para garaje de 59m2, planta baja con salón-cocina, aseo y 2 terrazas (frontal y trasera), planta primera con 3 dormitorios y 2 baños (uno de ellos ensuite) y 1 terraza y planta azotea con solarium de unos 40m2.
Puerta de entrada blindada, agua caliente por aerotermia, placa solar fotovoltaica, persianas eléctricas en salón y dormitorios, pre instalación de aire acondicionado por conductos y puerta de garaje motorizada.
Tienen acceso a la piscina comunitaria de la urbanización a la que pertenecen estas viviendas.
Ubicación privilegiada con excelentes conexiones
Bigastro es una encantadora localidad de la comarca de la Vega Baja, conocida por su ambiente tranquilo, sus servicios locales y sus excelentes conexiones de transporte. Desde esta zona residencial, los residentes pueden llegar fácilmente a
Centro de Bigastro 0,5 km
Orihuela 5 km
Playas de Guardamar del Segura 15 km
Centro Comercial Zenia Boulevard 20 km
Aeropuerto Internacional de Alicante 48 km
Hospital Vega Baja a 10 km
La autopista AP 7 proporciona un rápido acceso a Alicante, Murcia y las localidades costeras de los alrededores, lo que convierte a Bigastro en un lugar ideal tanto para vivir como para desplazarse al trabajo.
Una zona en crecimiento con todos los servicios esenciales
Bigastro cuenta con supermercados, colegios, instalaciones deportivas, parques y una gran variedad de tiendas y restaurantes locales. Su combinación de comodidad, entorno tranquilo y excelentes conexiones lo ha convertido en una opción residencial cada vez más popular tanto para los compradores locales como para los internacionales.
Asegúrese hoy mismo su nueva vivienda en Bigastro
Tanto si busca un moderno refugio vacacional como una cómoda residencia para todo el año, este nuevo proyecto de construcción en Bigastro es una oportunidad que no debe dejar pasar. Póngase en contacto con nosotros ahora para obtener más información o concertar una visita.
410