Nouvelle construction » Villa » Fuente Álam

VILLA CLÉ EN MAIN À FUENTE ALAMO, MURCIA Fuente Álamo, Las Palas

Les caractéristiques

VILLA CLÉ EN MAIN À FUENTE ALAMO, MURCIA Fuente Álamo, Las Palas

VILLA CLÉ EN MAIN À FUENTE ALAMO, MURCIA

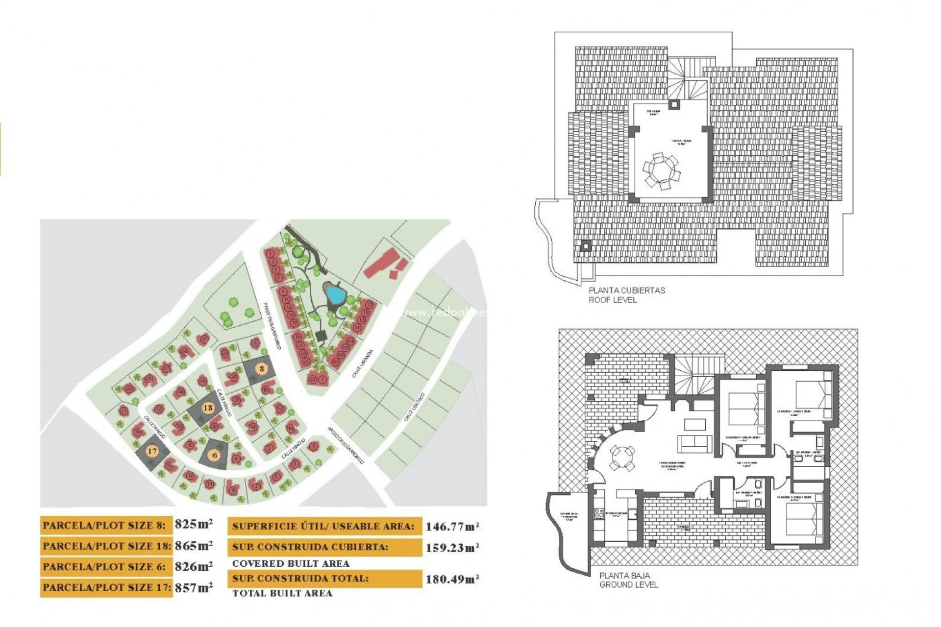
  • Mètres 180m2
  • Intrigue 850m2
  • Chambres 3
  • Salles de bain 2
Chambres:3
Salles de bain: 2
Construit: 180m2
Utile: 144m2
Intrigue: 850m2
Distance à la plage: 7500 Mts.
Énergie: B
Terrasse : 45 m².
Localisation : rurale
Place de parking
Espace de construction utilisable : 144 m².
Plage : 7500 mètres
Stockage / Trastero
Jardin
Solarium : Oui
Clé prête
Fermé
Nombre de places de stationnement : 1
Chambres doubles : 3
Climatisation : Pré-installée

La description

Carte

Commencez une nouvelle vie

Faire une enquête

Responsable del tratamiento: Red Palm Estate SL, Finalidad del tratamiento: Gestión y control de los servicios ofrecidos a través de la página Web de Servicios inmobiliarios, Envío de información a traves de newsletter y otros, Legitimación: Por consentimiento, Destinatarios: No se cederan los datos, salvo para elaborar contabilidad, Derechos de las personas interesadas: Acceder, rectificar y suprimir los datos, solicitar la portabilidad de los mismos, oponerse altratamiento y solicitar la limitación de éste, Procedencia de los datos: El Propio interesado, Información Adicional: Puede consultarse la información adicional y detallada sobre protección de datos Aquí.
Red Palm Estate
WhatsApp