Obra nueva » Villa » Fuente Álamo » L

VILLA LLAVE EN MANO EN FUENTE ALAMO, MURCIA Fuente Álamo, Las Palas

Características

VILLA LLAVE EN MANO EN FUENTE ALAMO, MURCIA Fuente Álamo, Las Palas

VILLA LLAVE EN MANO EN FUENTE ALAMO, MURCIA

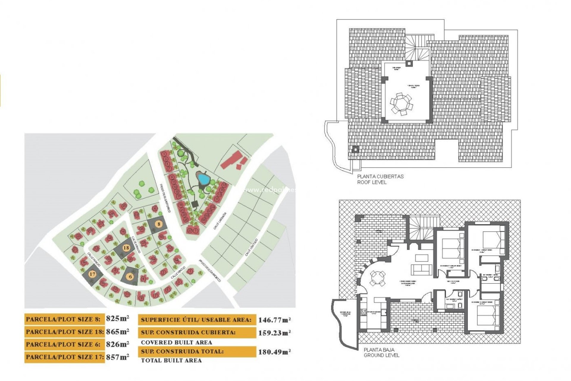
  • Metros 180m2
  • Parcela 850m2
  • Habitaciones 3
  • Baños 2
Habitaciones:3
Baños: 2
Construidos: 180m2
Útiles: 144m2
Parcela: 850m2
Distancia a la playa: 7500 Mts.
Calificación energética: B
Jardín
Solárium: Sí
Llave lista
Cerrado
Número de plazas de aparcamiento: 1
Propiedad cerca de golf/resort de golf
Habitaciones Dobles: 3
Aire Acondicionado: Preinstalado
Ubicación: Costera
Terraza: 45 M².
Plaza de aparcamiento
Espacio Construido Útil: 144 Msq.
Playa: 7500 Metros
Almacenamiento / Trastero

Descripción

Mapa

Comienza una nueva vida

Realizar una consulta

Responsable del tratamiento: Red Palm Estate SL, Finalidad del tratamiento: Gestión y control de los servicios ofrecidos a través de la página Web de Servicios inmobiliarios, Envío de información a traves de newsletter y otros, Legitimación: Por consentimiento, Destinatarios: No se cederan los datos, salvo para elaborar contabilidad, Derechos de las personas interesadas: Acceder, rectificar y suprimir los datos, solicitar la portabilidad de los mismos, oponerse altratamiento y solicitar la limitación de éste, Procedencia de los datos: El Propio interesado, Información Adicional: Puede consultarse la información adicional y detallada sobre protección de datos Aquí.
Red Palm Estate
WhatsApp