New Build Townhouses with Sea Views near Miraflores Golf Calahonda
Boutique Residential in a Prime Calahonda Location
This exclusive new construction project consists of a boutique collection of only 13 two and three bedroom townhouses and corner townhouses set on an elevated plot near Miraflores Golf in Calahonda. The area is known for its peaceful residential atmosphere while offering excellent access to beaches, golf courses and everyday services. Calahonda sits between Marbella and Fuengirola making it one of the most convenient and established locations on the Costa del Sol.
Sea View Homes with Privacy and Orientation
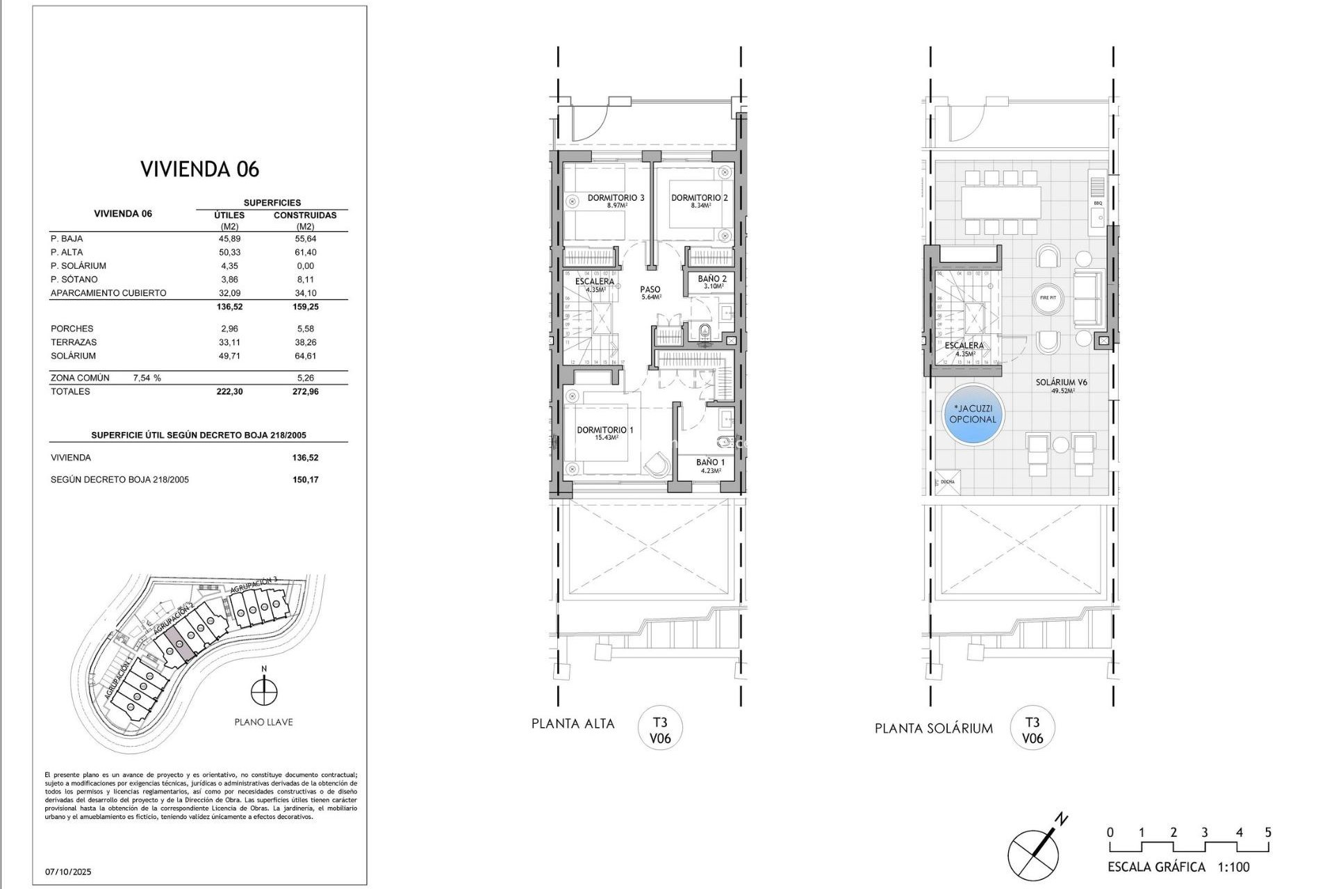
Each home enjoys open sea views from all living levels thanks to its elevated position and careful orientation. The rooftop solariums offer impressive panoramic views over the Mediterranean coastline creating a private outdoor retreat for every homeowner. Orientation and architectural screening ensure a perfect balance between privacy and uninterrupted views.
Spacious Terraces and Open Plan Living
The townhouses are designed to extend living spaces outdoors with generous terraces ideal for dining relaxing or enjoying the sea breeze. Open plan interiors connect the kitchen dining area and living room with direct access to terraces, creating bright and airy spaces with continuous sightlines towards the sea. Some homes also include private gardens on the ground floor.
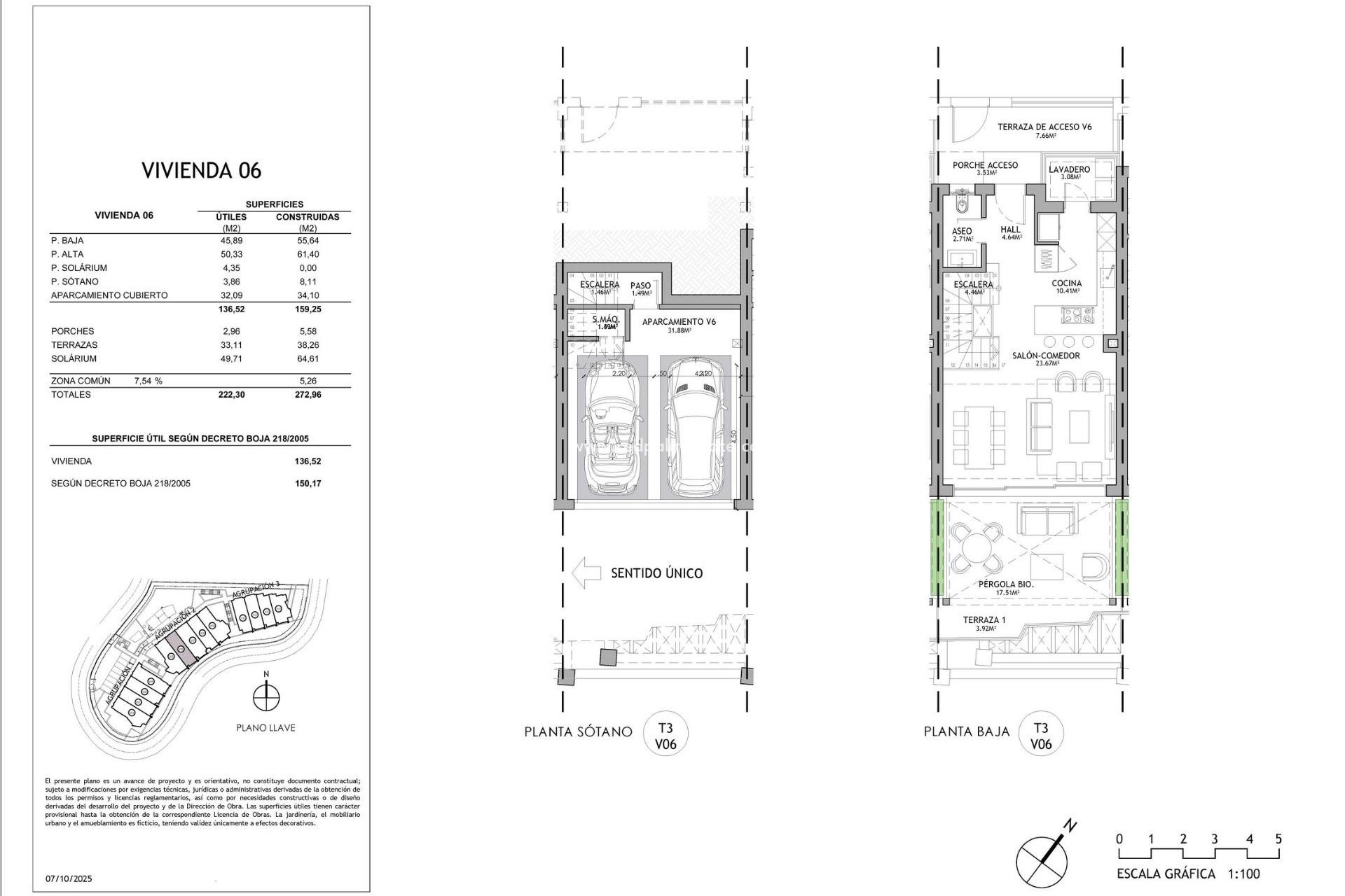
Flexible Layouts for Modern Living
Homes are distributed over two floors plus a private rooftop solarium. The ground floor features an open plan living and dining area with integrated kitchen, laundry room and guest toilet. The upper floor offers two or three double bedrooms and two bathrooms, including a master bedroom with en suite bathroom. Several rooftop solariums include a studio providing additional versatile space for a home office or leisure area.
Premium Specifications and Comfort Features
All properties are built with high quality materials and modern systems. Features include fully installed air conditioning heating by aerothermal system and fully equipped kitchens with Siemens appliances. Floor to ceiling windows maximize natural light and enhance the connection between indoor and outdoor spaces. Most units include two underground parking spaces and selected homes also offer a private storage room.
Resort Style Communal Areas
At the heart of the community is a residents swimming pool with spacious sun terraces designed to create a calm resort style environment. This shared space is ideal for relaxing after a round of golf or enjoying the Mediterranean climate with family and friends.
Excellent Connectivity and Nearby Amenities
Miraflores Golf is approximately 1 km away making this development ideal for golf enthusiasts. Calahonda beaches are around 1.4 km from the residences and offer a wide range of beach bars and water activities. Marbella and La Cala de Mijas are both within easy driving distance while Malaga Airport is well connected via the main coastal road.
Key Distances to Points of Interest
Miraflores Golf: 1 km
Calahonda beach: 1.4 km
La Cala de Mijas: 6 km
Marbella: 15 km
Puerto Banus marina: 18 km
Malaga Airport: 35 km
Secure Your Sea View Home on the Costa del Sol
Contact us today for more information or to arrange a private viewing of these exclusive new build townhouses near Miraflores Golf in Calahonda.
410