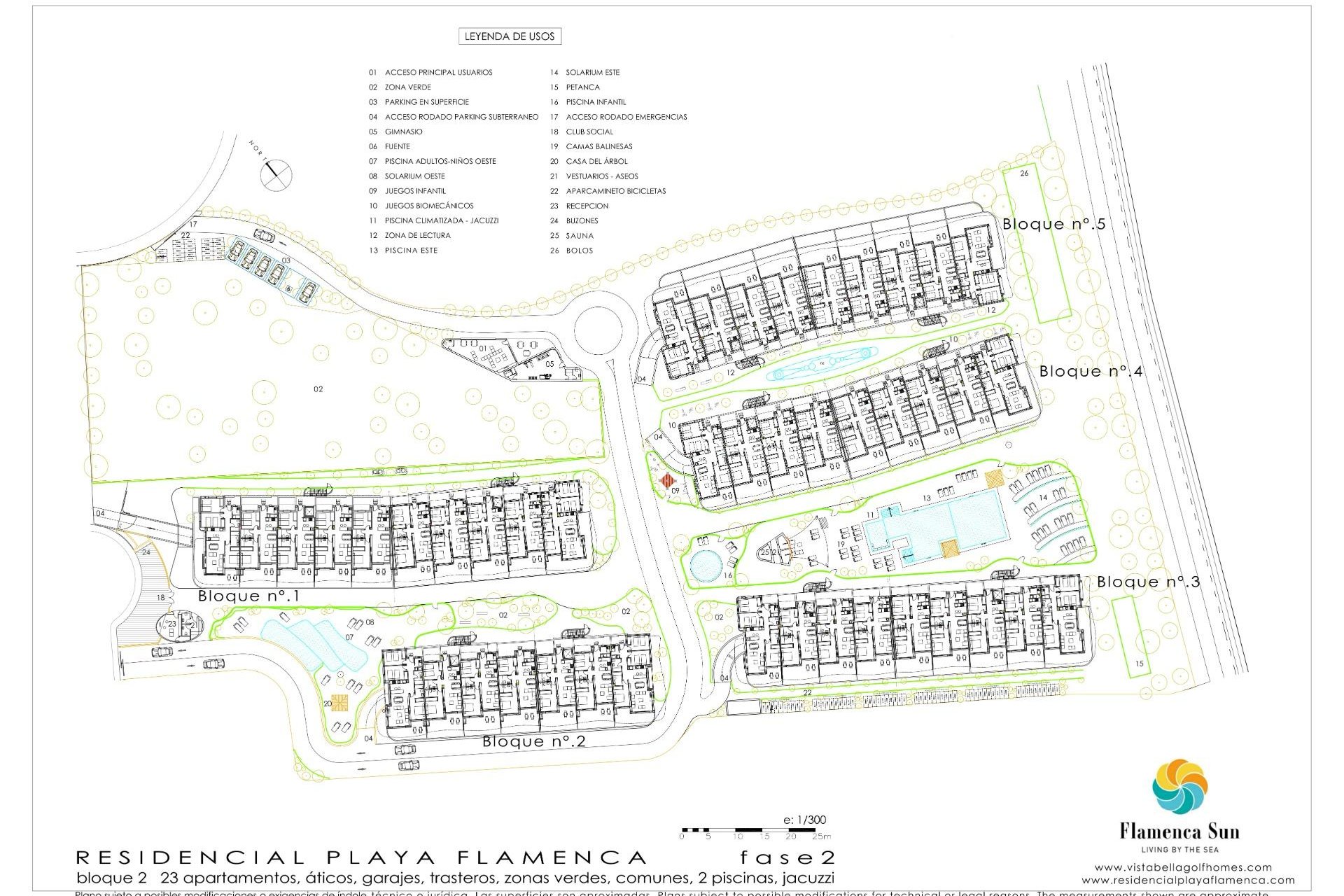
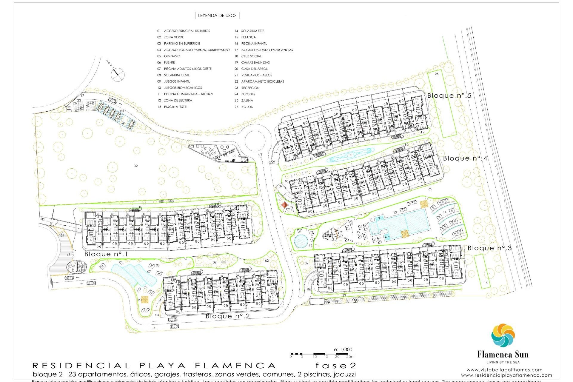
Discover an exclusive new-build residential development in Playa Flamenca, Orihuela Costa, designed for those seeking a modern, well-located home with strong potential both for personal use and investment on the Costa Blanca. This is a multi-phase project, offering the opportunity to acquire brand-new properties at different stages of construction, with excellent potential for capital growth.. . The development already features a fully completed and sold first block, with a communal swimming pool in operation. Block 2 is in the final stages of finishing, Block 3 is currently under internal partitioning, and Block 4 — to which these properties belong — is in the foundation and structural phase. This makes Block 4 a particularly attractive opportunity for buyers looking to secure a property at a competitive price within a rapidly developing environment.. . The apartments have been designed with a contemporary, functional layout and abundant natural light, featuring spacious terraces ideal for enjoying the Mediterranean climate all year round. Available in 2 and 3-bedroom configurations, they offer well-distributed living spaces, open-plan kitchens ready to be customised, and high-quality finishes such as PVC exterior carpentry with double glazing (Climalit), ceramic flooring, and pre-installation for air conditioning. Each property also includes a parking space and storage room.. . Once completed, the residential complex will offer several communal swimming pools, landscaped gardens and areas designed for relaxation and outdoor living, all within a private and secure urbanisation.. . One of its key advantages is its location, just 500 metres from the beach and within easy reach of all essential amenities. It is very close to Mercadona and Centro Comercial La Zenia Boulevard, as well as surrounded by supermarkets, restaurants, leisure areas, medical centres, schools and golf courses, making it ideal both as a holiday home and for year-round living.. . In summary, a property opportunity that combines location, build quality and future value, ideal for those seeking a home by the sea or a high-demand investment.. Don’t miss the chance to live in a privileged environment. Contact us today for more information and to schedule your visit!. . Price: €395,000*. Taxes and purchase costs NOT included (according to applicable regulations).. A detailed breakdown of additional costs will be provided prior to reservation.. *The price may be subject to typographical errors; please confirm with the developer.