New Build Detached Villas for Sale in Aguilas Murcia Just 500 m from the Beach
Exclusive New Villas in the Residential Area of Los Jardines
Discover this boutique development of only nine new build detached villas located in the peaceful residential area of Aguilas on the beautiful Costa Calida. Situated in the sought after neighborhood of Los Jardines, these modern homes combine contemporary architecture, spacious interiors and a prime coastal location just 500 meters from Las Delicias beach.
Aguilas is a charming Mediterranean town known for its crystal clear beaches, traditional Spanish atmosphere and more than 300 days of sunshine each year. The town offers a wide range of services including shops, restaurants, schools and health centers, making it an excellent choice for both permanent living and holiday homes. The area of Los Jardines stands out for its quiet streets, green areas and convenient access to the town center.
Spacious Modern Design with Three Levels
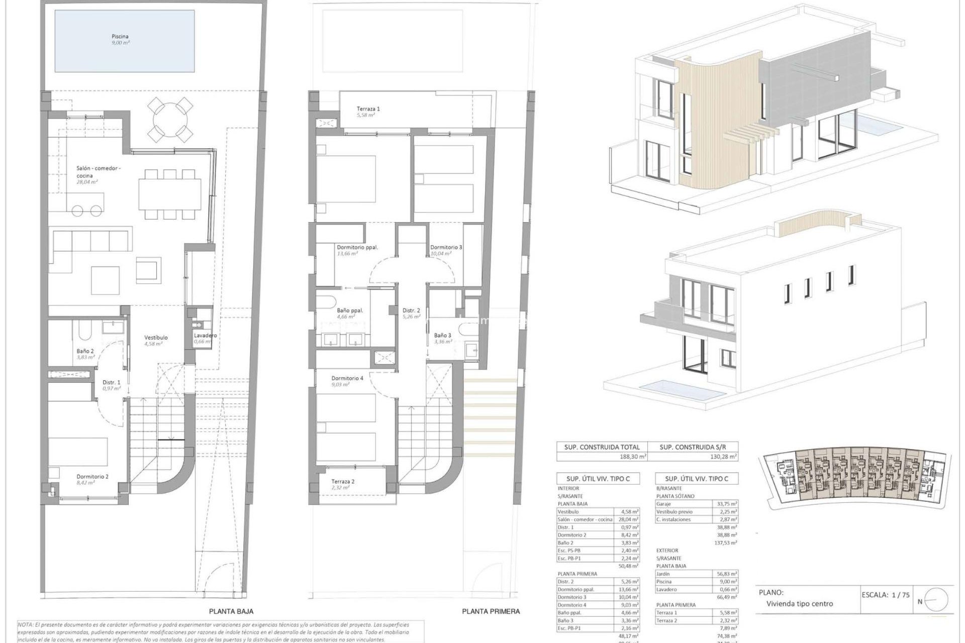
Each villa offers a built area from 190 m2 and has been carefully designed to maximize comfort, natural light and functionality. The homes are distributed over two main floors plus a basement level.
The ground floor features a bright open plan living room, dining area and modern kitchen. A large corner glass window connects the interior space with the private garden and swimming pool, creating a seamless indoor outdoor lifestyle. This level also includes one bedroom, a bathroom and a laundry area located on the terrace.
On the first floor you will find three spacious bedrooms and two bathrooms, one of them en suite. Two of the bedrooms have direct access to private terraces, perfect for enjoying the Mediterranean climate and open views.
The basement level offers a private garage with space for one or two cars, a storage room and direct internal access to the main floor.
High Quality Construction and Modern Features
These villas have been designed with quality materials and modern finishes to ensure comfort and efficiency.
Armored entrance door
Pre installation for ducted air conditioning
Exterior carpentry with thermal break and double glazing
Glass railings that enhance the modern design
Private garden and swimming pool
The development provides a perfect balance between privacy, style and functionality, ideal for families or buyers looking for a spacious home near the sea.
Excellent Location Near Beaches and Services
The villas enjoy an excellent location with easy access to beaches, golf courses and key destinations in the region.
Las Delicias Beach 0.7 km
Puerto Deportivo de Aguilas 2 km
Aguilon Golf 18 km
Region de Murcia International Airport 75 km
Cartagena 110 km
Aguilas is also famous for its marina, water sports, coastal promenades and cultural events such as its internationally recognized carnival.
A Perfect Mediterranean Home Awaits You
These new build villas in Aguilas offer modern comfort, generous space and an unbeatable coastal lifestyle on the Costa Calida. Contact us today for more information or to arrange a visit and discover your new home by the sea.
410